这座房子位于葡萄牙南部的阿尔加维,是作为远离繁华都市的避难所而建造的。房子的外墙几乎全玻璃化,内部可以欣赏到场地周围无尽的松树景观,而外墙边缘的木板条(确保浴室的私密性)则强化了房子的木质特征,并增强了它与自然景观的融合。
Located in the Algarve, south of Portugal, this house was built as a refuge from the bustle of the busy city. With its façades almost fully glazed, the interior of the house allows endless vistas of pine trees that are all around the site, whereas the façade edges with wooden slats (ensuring privacy for the bathrooms) reinforce the wooden character of the house and enhance its integration in the natural landscape.





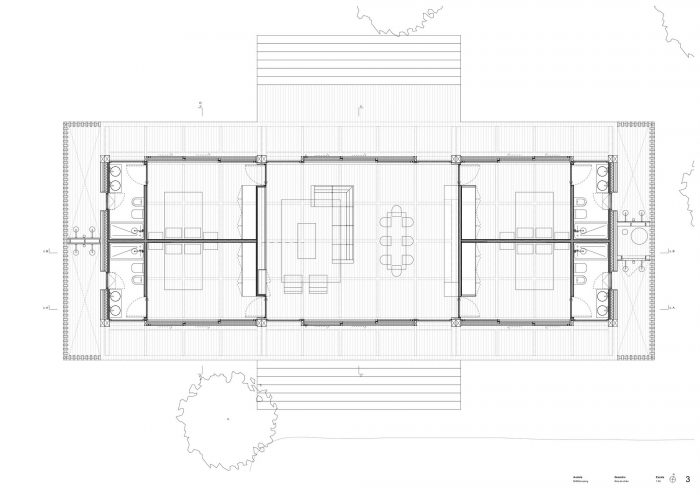
这座160平方米的房子具有优雅的规则形状,沿单层延伸,尊重通常的1,60米格局,这也是所有Mima房子所共有的,再次证明了Mimahousing所使用的基础系统允许构思出在特性方面彼此有很大差异的房子,尽管计划的恒定规则性和房子形状的简单性。
With an elegant regular shape that extends along a single floor, this 160 square meter house respects the usual 1,60m grid, common to all Mima houses, proving once again that the base system used by Mimahousing allows for the conception of houses that differ substantially from one another in terms of character, despite the constant regularity of the plans and the simplicity of the house shapes.



这座房子因其平面的对称性而特别有趣。从地面抬高1.20米,露出木质地基和结构,房子的核心通过宽大的木质楼梯与地面相接。厨房和起居区位于房子的中心,木质天花板上有1,60米的格子,西装卧室位于相对的边缘,每边两个,作为对称的方案。
This house is particularly interesting for the symmetry of its plan. Elevated from the ground in 1,20m, revealing its wooden foundations and structure, the core of the house grasps the ground through wide wooden stairs. The kitchen and living area are located at the centre of the house, with a 1,60m grid underlined in the wooden ceiling, and the on suit bedrooms are on the opposite edges, two on each side, as symmetrical scheme.

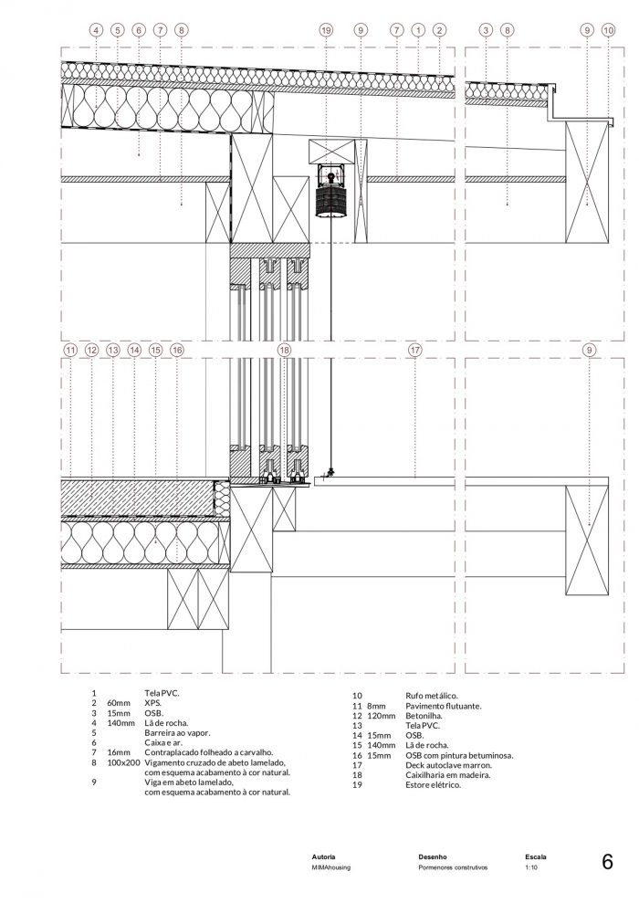
房子的结构框架由北欧松木搭建而成,并采用互锁细木工作。木框采用坎巴拉木。边缘的大量百叶窗是由经过热处理的松木制成的。外部用镀锌防水板进行细部处理;内部表面用松木和橡木进行处理,墙面用石膏加精制的白色石膏。
The structural framing for the house was built out of Nordic pine and was constructed using interlocking joinery. The wooden frames are in kambala wood. The extensive louvres in the edges are made out of thermo treated pine wood. Exteriors are detailed with zinc flashing; interior surfaces are finished with pine and oak wood, and the walls are in gypsum with a refined white plaster.

















建筑师:Marta Brandao, Mário Souza
年份:2021年
照片:José Campos
建筑团队:Mário Sousa, Marta Brandão
合作:Rui Lima, Frederico Leite
国家:葡萄牙
Architects: Marta Brandao, Mário Souza
Year: 2021
Photographs: José Campos
Architecture Team:Mário Sousa, Marta Brandão
Colaboration:Rui Lima, Frederico Leite
Country:Portugal