在大阪北雪区的一个住宅区里,房子位于一个狭长的场地上,有不同的地面层。客户是一位日本料理的厨师,要求使用各种传统的日本装饰材料。有效地利用场地的不同地面层,提供了不同的视角和多样的宽阔空间。
In a residential area in the Hokusetsu district of Osaka, the house is located on a long, narrow site with different ground levels. The client, a chef of Japanese cuisine, requested to use various traditional Japanese finishing materials. Effective use of the site's different ground levels offers different viewpoints and varied and expansive spaces.




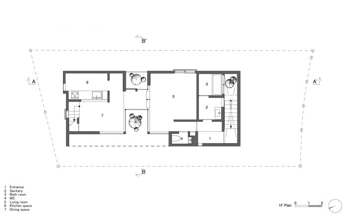
入口处从右侧带有植物的阶梯式石板路进入,然后沿着楼梯进入浮动的建筑内。从禁止任何施工的场地边界后退1.5米的地方被用作花园带。通过让它从一楼的起居室、餐厅和厨房空间可见,我们让这个有限的空间有了扩张感和多样化的视野。
The entrance is accessed from a stepping stone pathway with plantings on the right and then up a staircase that penetrates into the floating building. The 1.5-meter setback from the site boundary where any construction is prohibited is utilized as a garden strip. By making it visible from the first-floor living, dining, and kitchen spaces, we gave this limited space a sense of expansion and diverse views.


一楼的下沉式客厅作为招待客人的空间,长椅上可以看到桥下延伸的花园。从房间里面看,这个受溪流启发的花园看起来好像通向遥远的地方。两个小院子位于起居室和更私人的厨房兼餐厅之间。
The sunken living room on the first-floor functions as a space for entertaining guests, and the bench offers a view of the garden that extends under the bridge. From inside the room, this garden inspired by streams looks as if leading somewhere far away. Two small courtyards are situated between the living room and the more private kitchen-cum-dining area.



桥接在花园上的走廊,让人联想到花园小路,可以俯瞰花园和天空,通向二楼的每个私人房间。这三个花园为房子提供了深度和广度。
The corridor bridged over the garden, reminiscent of a garden path, overlooks the garden and the sky, leading to each private room on the second floor. The three gardens provide depth and expansiveness to the house.











Architects: FujiwaraMuro Architects
Area : 114 m²
Year : 2022
Photographs :Yoshikawa Naoki
Manufacturers : Aica, K-Mew, Wood Job
Lead Architects : Shintaro Fujiwara, Yoshio Muro
City : Suita
Country : Japan