薄荷屋项目是为卡尚的一个普通家庭进行的典型房屋改造,没有历史建筑价值,预算非常有限。客户对这次改造的主要要求是将浴室从院子里移到室内空间,如果可能的话,增加一间卧室,并完全拆除旧建筑的元素,这些元素随着时间的推移已经使他们疲惫不堪。
The mint house project was a renovation of a typical house - without historical architectural value - for an average family in Kashan, with a very limited budget. The main client’s request for this renovation was moving the bathroom from the yard to the interior space, adding a bedroom if possible and complete removal of the elements of the old building, that had tired them over time.




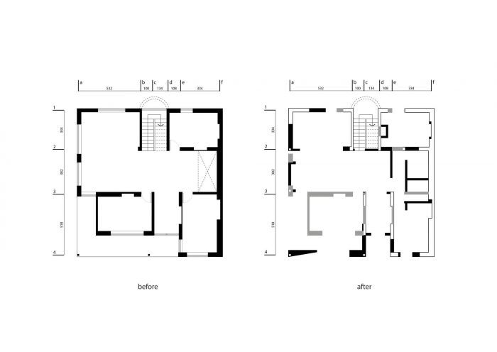
在拆除过程中,我们发现了浪费的地下空间,多年来一直没有使用。但不幸的是,客户坚持要填补这个空间。我们能做的是以物易物的交易。尽可能地移除楼上的旧元素,并获得保留地下室的许可来代替。在底层的重建中,由于旧的空间组织项目的效率低下,我们试图根据客户的意愿来组织新的空间,尽量减少对内墙的破坏,并增加一些有限的墙。
During the demolition, we came across wasted underground space that had been unused for years. But unfortunately, the client insisted on filling this space. What we could do was a barter deal. Remove old upstairs elements as much as possible and get permission to keep the basement instead. In the reconstruction of the ground floor, due to the inefficiency of the old spatial organization of the project, we tried to organize the new space according to the wishes of the client by minimizing the destruction of the internal walls and adding a few limited walls.

由于项目的旧结构只是承重墙,为了拆除中间的墙体,项目中位于轴线4的两根柱子(4b,4a)被替换成新的柱子,并在这一层增加了三根柱子(3c,3a,2a)。为了将公共空间(客厅和厨房)与私人空间(卧室和浴室)分开,该计划被定义为两个部分,即东边和西边。因此,西部的卧室被拆除,移到了东部。厨房和客厅位于西部的同一方向。然后,位于院子里的浴室和厕所空间通过拆除中间的天窗被移入建筑内,而天窗是完全不用的。
Due to the fact that the old structure of the project was only a load-bearing wall, to remove the middle walls, two columns in the project on axis 4 (4b, 4a) were replaced with new columns and three columns (3c, 3a, 2a) were added in this floor. In order to separate the public spaces (living room and kitchen) from private spaces (bedrooms and bathrooms), the plan was defined in two parts, east, and west. As a result, the bedroom in the western part was demolished and moved to the east. The kitchen and living room were located in the same direction in the western part. Then, the bathroom and toilet spaces, which were located in the yard, were moved into the building by removing the middle skylight, which was completely unused.



由于项目面积有限,很难增加第三间卧室。机会是通过建筑的楼梯,提供了通往屋顶的通道。雇主坚持要保持从室内到屋顶的通道,这激发了通过楼梯形成第三间房的想法 通过保留旧楼梯的楼板和拆除楼梯,一个卧室被定义为3层。休息空间、工作空间和睡眠空间。一个涂有薄荷绿的房间,与项目的名称相呼应。
The limited project area made it difficult to add a third bedroom. The opportunity was the staircase that provided access to the roof through the building. The employer's insistence on maintaining access to the roof from the interior sparked the idea of forming a third room through the staircase! By keeping the landings of the old staircase and demolishing the stairs, a bedroom was defined in 3 levels. Rest space, workspace, and sleep space. A room painted in mint green, with respect to the name of the project.

项目的地下室是另一个被忽视的潜力,进入它的通道被封锁了多年。在这部分的重建中,我们保留了建筑的基本特征,(拱形屋顶和带石基的墙壁),并在地下室前面创建了一个小的地下花园,为地下室提供光线,它可以与居住空间合并使用。
The basement of the project was another potential that was neglected and access to it was blocked for years. In the reconstruction of this section, we preserved the basic features of the building, (arched roof and walls with stone base), and created a small subterranean garden in front of the basement to provide light to the basement, which can be merged and used along with the living space.

被忽视的地下室被重新改造成一个40平方米的套房,拥有公共和私人空间,适合家庭中年轻的专业儿子的现代生活方式。最后,反映项目内部的凸出的外墙形成了两个独立的体量,上面覆盖着具有简单纹理的水泥罩。
The overlooked basement was revived into a 40 sqm suite with public and private spaces that fit the contemporary lifestyle of a young professional son of the family. Finally, the projecting facade, which reflects the interior of the project was formed in two independent volumes covered with a cement cover with a simple texture.


















Architects: White on White Studio
Area: 200 m²
Year: 2021
Photographs: Mohammad Hassan Ettefagh
Lead Architects: Faezeh Arefnazari, Ruhollah Rasooli
Contractor :Hossein Khodaverdian
City:Kashan
Country:Iran