背景。2020年,在全球Covid-19大流行期间,许多家庭重新评估了他们的生活方式。这所房子的主人保持着一种 "游牧 "的生活方式,所以他们在厄瓜多尔的停留时间很短,而且是零星的。他们在这些访问期间居住的空间是一个65平方米的小套房,其中他们有一个带完整浴室的房间和一个多功能空间,包括他们两个女儿的 "卧室"。在封锁之后,这个家庭决定,他们的逗留时间应该更长,空间应该更好地让他们进行日常活动。
Background. In 2020, during the global Covid-19 pandemic, many families re-evaluated their way of living. The owners of this house maintained a “nomadic” lifestyle so their stays in Ecuador were short and sporadic. The space they inhabited during these visits was a small 65m2 suite, in which they had a room with a full bathroom and a multifunctional space that included a "bedroom" for their two daughters. After the lockdown, the family decided that their stays should be longer and that space should better allow them to perform their daily activities.





该委员会。具体要求是扩大他们现有的房子的社交区域,包括为女儿们提供舒适和独立的卧室,并利用该地的景观。作为一个特殊的要求,工程必须立即开始,而且必须在不超过三个月内建成。
这个想法。"我们想到了一个工业化的预制件,它与环境很好地融合在一起,巧妙地坐落在地面上,附着在现有建筑上"。
The commission. The specific request was to expand their existing house for social areas, include comfortable and independent bedrooms for the daughters, and take advantage of the view of the site. As a special requirement, the work had to start immediately and had to be built in no more than three months.
The idea. "We thought about an industrially prefabricated piece that blends well with the environment and subtly sits on the ground, attaching itself to the existing construction."

自然环境被理解为建筑的外壳,它被置于俯瞰山谷的斜坡之上。没有对土壤的干扰,也没有植被的退化。
新作品的制造和安装是快速的,而对现有建筑的干预是迅速和有效的。一旦这些过程完成,每个空间所需的所有家具和镶板将被安装。
The natural environment is understood as an envelope of the building which is placed over the slope overlooking the valley. There is no soil disturbance nor vegetation degradation.
The new piece is manufactured and installed quickly while the intervention in the existing building is prompt and efficient. Once these processes are finished, all the furniture and paneling required for each space will be installed.

该项目。提出了一个由两个门廊支撑的金属通道系统。这些通道作为地板和屋顶的结构,是热绝缘的,并允许植被生长。这个结构只需要一个最小的地基,这使得它几乎没有对土壤的干扰,而且制造和组装的时间非常短。
The project. A system of metal channels supported by two porticoes is proposed. These channels work as the structure for both the floor and the roof which is thermally insulated and allows for vegetation to grow. This structure requires a minimal foundation, which allows almost no soil disturbance and very little time for its manufacturing and assembly.



这个结构的三个开口是用钢化玻璃覆盖的。地板和天花板上的元素框住了视野,让环境的性质围绕着这个空间。现有的植被产生了足够的隐私,以保持整个周边的透明度。
The three openings of this structure are covered with tempered glass. Floor and ceiling elements frame the view and allow the nature of the environment to surround the space. The existing vegetation generates enough privacy to maintain transparency around the entire perimeter.

同时,现有建筑前立面的墙壁被取消,以创造一个与新建筑相连接的空间。这个空间是一系列用胶合板搭建的规则模块,从头到尾产生了存储、装饰表面,以及朝向卧室的可渗透和半透明的屏幕。在这个家具的前面安装了五块相同材料的滑动板,可以根据用户的需要放在任何地方。
At the same time, the walls of the front façade of the existing construction are eliminated to create a space that links to the new construction. This space is a series of regular modules build with plywood panels that run from end to end to generate storage, decorative surfaces, as well as a permeable and semi-transparent screen towards the bedrooms. Five sliding panels of the same material are installed at the front of this furniture and can be placed anywhere according to the needs of the users.

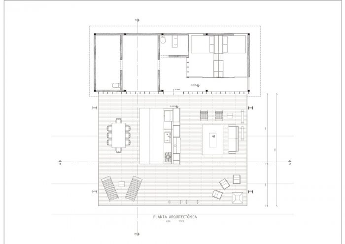
一件家具被放置在新空间的中心。对着客厅,这个家具是一个金属元素,包含存储空间和一个模块,炉子和电视都嵌入其中。朝向餐厅,这个元素包含了厨房,而材料变成了胶合板和不锈钢表面。
A single piece of furniture is placed in the center of the new space. Towards the living room, this piece of furniture is a metal element that contains storage space and a module in which the stove and the television are embedded. Towards the dining room, this element contains the kitchen while the material changes to plywood paneling and stainless-steel surfaces.

厨房由一个模块组成,其中包含所有的电器和橱柜,以及一个可以作为台面和餐桌的岛。这个中心家具允许整个空间的流动和连续的流通,并且所有的装置都集中在这个单元内。
The kitchen consists of one module, which contains all the appliances and cabinets, as well as an island that works as a countertop and a dinette. This central piece of furniture allows for fluid and continuous circulation throughout the space, and for all the installations to be centralized inside this piece.


关于对现有建筑的干预,卧室和浴室是由胶合板和金属板制成的轻型镶板配置的。这种镶板含有热隔音材料,以提高卧室和浴室的舒适度。在这些区域内,放置了单件家具,其中包含书桌、存储空间和一张墨菲床,以利用卧室的内部空间。
房子的社交区和厨房有一个地暖系统,在不影响外墙透明度的情况下保持空间的舒适温度。
Regarding the intervention in the existing construction, the bedrooms and bathrooms are configured by light paneling made of plywood and metal sheets. This paneling contains thermal acoustic insulation to improve comfort in bedrooms and bathrooms. Within these areas, there is placed a single piece of furniture that contains a desk, storage space, and a murphy bed to take advantage of the internal space of the bedrooms.
The house has an underfloor heating system in the social area and kitchen to maintain comfortable temperatures in the space without sacrificing the transparency of the facades.

该工程在三个月内完成,并准备好居住。没有植被被破坏,也没有材料被浪费。拆除外墙后,所有可以再利用的材料都被分类,以便日后使用,瓦砾被用来改善建筑周围地区的地面。门和窗也被小心翼翼地存放起来。房子有一个化粪池,用于处理废水,这使它独立于污水处理系统,还有一个雨水系统,改善了周围地区的雨水排放。
The work was completed in three months and ready to be inhabited. No vegetation was damaged, and no material was wasted. All material that could be reused from the demolition of the façade was sorted for later usage and the rubble was used to improve the ground in areas surrounding the building. Doors and windows were also carefully stored. The house has a septic tank for wastewater, which makes it independent from the sewage system, and a stormwater system that improves the drainage of rainwater in the surroundings.





Architects: RAMA estudio
Area: 190 m²
Year: 2021
Photographs: Jag Studio
Manufacturers: Armando Rondal y Hermanos, Carlos Castro, Falco, Hierro Hogar, Jefferson Pérez, José Pillajo, LopezMetalworks, Maderas Guerrero, Ricardo Páez, Termipisos
Lead Architects: Carolina Rodas – Felipe Donoso – Carla Chávez
Construction: RAMA estudio
Design Team:Felipe Donoso, Carolina Rodas, Carla Chávez, Jefferson Camacho, Ma. Fernanda Ayala, Daniel Merchán.
Structural Engineer:Ing. Pedro Ospina Larrea
Country:Ecuador