该住宅的设计来自一个基本前提:最大限度地利用土地来完成一个巨大的项目。因此,我们的策略是定位特定的区域和垂直循环,使其余的空间享有极大的灵活性和宽广的视觉范围,使结构和体积受益。
The design of the residence came from a basic premise: maximum use of land for a huge program. Thus, the strategy was to locate specific areas and vertical circulation In a way that the rest of spaces enjoy extreme flexibility and a Wide visual range, profiting the structure and volume.

内部创造的空间,事实上,是在增加了三个小 "盒子 "后留下的。家庭影院、厨房和楼梯之间的辩证相互依存关系在住宅中得到了确立,并划定了一个区域,正如本文旁边的草图所显示的。
一个影子
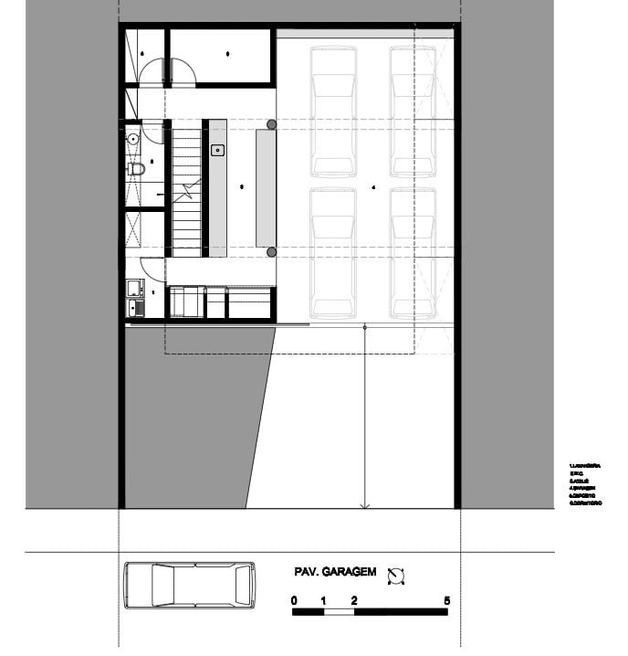
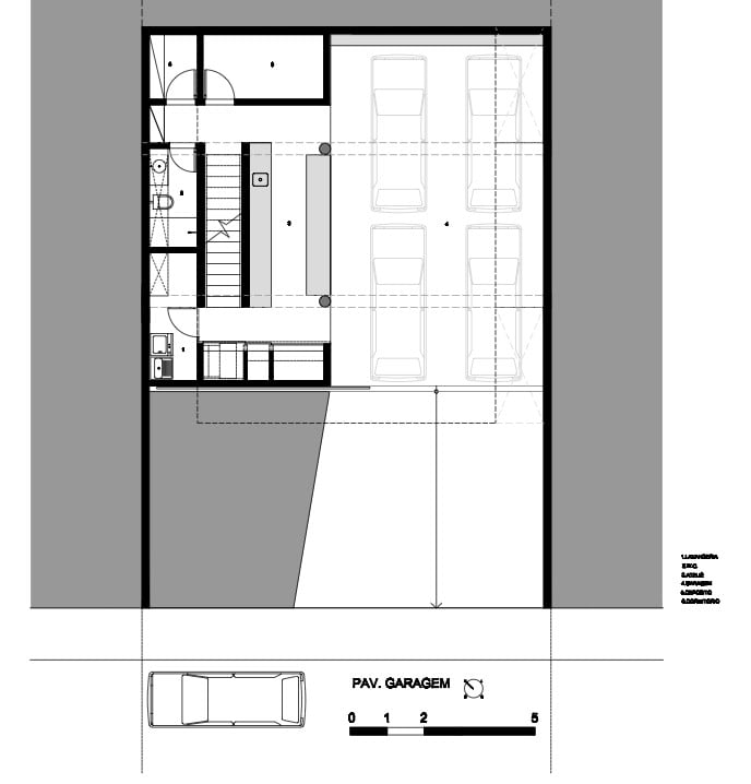
与车库相邻的服务区,低于街道水平四英尺。上面是与房子的其他功能有关的容器。一个阴影将它们分开。
外部的阴影转化为内部空间的光线。这个范围允许下面的环境的照明和通风,并给巨大的上部体积一个极端的光线视觉。
The space created inside, in fact, is what remains after adding three small "boxes". Dialectic interdependence between home theater, kitchen and stairway is established in the residence and demarcates a territory, as seen illustrated in the sketch next to this text.
A shadow
The service, adjacent to the garage, is four feet below street level. Above is the container with the other functions of the house. A shadow separates them.
The shadow on the outer part translates into light in the inner space. The range allows the lighting and ventilation of the environments below and gives an extreme light visual to the massive upper volume.

该结构是构思中的主角。通过这个缝隙的通道作为独立的元素分布在房屋的几何结构中。
酒吧上的集装箱
一个集装箱放置在两个 "酒吧 "上,并在访问和使用它们的直接环境中脱颖而出。这个棱形的体量包含了两层楼的住宅项目和一个屋顶花园。
集装箱的开口在正面和背面非常灵活,而在侧墙则相当脆弱。这是由周围的环境造成的,因为邻居们的普遍做法是在他们的私人场地边界上进行建设。正因为如此,该项目位于周边的一侧,提供了一个更灵活的内部空间和高度上的视觉交流。
The structure is the protagonist in the conception. Accesses through this gap were distributed as independent elements of the geometry of the house.
Container on bars
A container rests on two “bars” and stands out in access and uses of their immediate surroundings. The prismatic volume contains the program of the residence on two floors plus a roof garden.
The container openings are extremely flexible in the front and back facades, while quite tenuous on the side walls. This is a consequence of the immediate surroundings because the common practice of the neighbors is constructing on the border of their private grounds. Because of this, the program is located in the perimeter side providing a more flexible interior space and visual communication in height.

这种由两根金属梁提供的过渡允许车库的地板扩展到场地的最大边界。在不影响通风和照明的情况下,最大的占用率完全由该范围保证
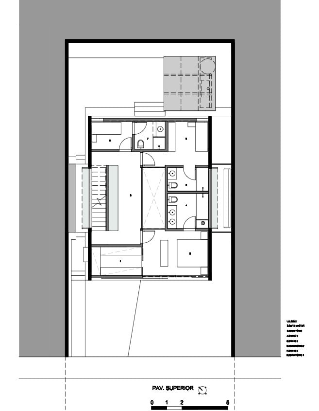
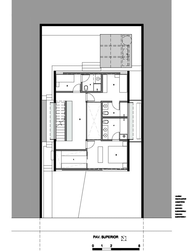
垂直连接
从上到下连接房屋,房屋内楼梯旁边的右墙为四个高度层之间的流体交换提供了垂直连接,同时为每个高度层的不同活动提供空间。在车库层、上层和顶层露台,它分别产生了工作室、办公室和支持,而在主楼层,一个大型水族馆将这面墙变成了一个棱镜。
This transition provided by two metal beams allows the floor of the garage to spread to the maximum boundary of the site. Maximum occupancy without affecting ventilation and lighting guaranteed exactly by that range
Vertical connection
Connecting the house from top to bottom, the right wall next to the staircase inside the house offers vertical connections to the exchange of fluids between the four height levels, while providing space for a different event in each. On the garage floor, superior and top terrace, it generates the studio, office and support respectively, while in the main floor a large aquarium turns that wall in a prism.

钻研的计划
这座房子是由一连串带有战略孔的自由水平板设计的。在这些8x11米的计划中,这些孔允许垂直循环和天顶光的进入。自然光从水箱旁边进入,穿过上层楼,到达社会层。
屋顶花园
屋顶花园除了作为城市的一个视角外,还有助于住宅的可持续发展,因为它有助于冷却下面的区域,即宿舍。
雕塑元素从这个观察平台涌现出来,打破了秩序。水箱的平滑曲线和大量的体积,以及覆盖通道的尖角三角形,在色度和形式上形成对比。
Drilled plans
The house was designed by a succession of free horizontal slabs with strategic holes. In these 8x11 meters plans, these holes allow vertical circulation and the entry of zenith light. Natural light enters next to the water tank, passes through the upper floor and reach the social floor.
Roof garden
Besides being a viewpoint to the city, the roof garden contributes to the sustainability of the residence because it helps cooling the area immediately below, the dorms
Sculptural elements emerge from this observation platform disrupting the order. The smooth curve and mass volume of the water tank and the pointed triangle that covers the access contrasts in chromaticism and formality.








































































Architects: FCstudio
Area : 226 m²
Year : 2010
Photographs :Nelson Kon
City:SAO PAULO
Country:Brazil