爱是一种建设行为。
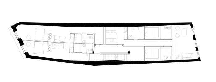
MISS’OPO诞生于将亲密关系的喜悦转移到一个更全面的生活项目的愿望,一个公共性质的项目。方案、六套公寓、一个餐厅空间、一个门厅/商店/画廊、一个多功能空间和技术区域分布在整个建筑中,就像老房子里的房间。
Love is an act of construction.
MISS’OPO is born from the desire to transport the Joy of intimacy to a more comprehensive life project, one of a public nature. The Programme, six apartments, a restaurant space, a foyer/shop/gallery, a multipurpose space and technical areas are distributed throughout the building as if rooms in an old house.



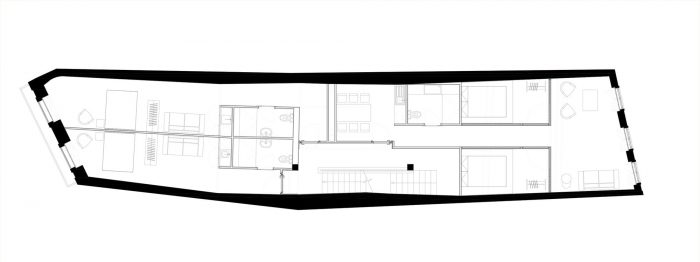
公寓是卧室,酒吧是厨房,餐厅是花园,门厅/商店/画廊是休息室,等等。家的光环,庇护所的建立,让建筑回到了它的原始功能,即居住。同时,我们也尊重并整合了它最近的时期,颂扬了它的原始和工业特征,这也是对1970年代大幅实施的纺织单位的现时提醒。
The apartments are the bedrooms, the bar the kitchen, the dining room the garden, the foyer/shop/gallery the lounge, and so on. The Aura of the Home, of Shelter, was built, giving back to the building its original function, that of habitation. Alongside this, we have also respected and integrated its more recent period, extolling its raw and industrial character, a present reminder of the textile unit which was dramatically implemented in the 1970s.

修复是对历史的尊重,重新解释其内容,是我们有兴趣探索的主题。这个构思-建造的过程占用了我们两年的全部精力。在新的狂热中,当我们建造并填满这个房子时,我们清空了另一个房子。
Restoration as respect for history, reinterpreting its content, was the theme we were interested in exploring. This process of conception-construction took up all our energies for two years of our lives. In the frenzy of the new, while we built and filled the House, we emptied the other one.

























Architects: Gustavo Guimarães
Area : 760 m²
Year : 2012
Photographs :Carlos Trancoso, Mariana Lopes
Contractor : Gustavo Guimarães Lda.
Fire Engineering : GPIC
Mew (Mechanical, Elec, Water) : Fernanda Valente, GPIC
Awards : Selected for the 1st edition of “Respect for Architecture” Oporto 2012
Client : Miss’Opo
Design Team : Cláudia Reis, Teresa Bento, Miguel Fernandes, Carla Cruz
City : Porto