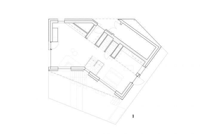
MK5是ORTRAUM建筑事务所的最新项目,为事务所的一位合伙人和他的五口之家所建。该住宅位于赫尔辛基市中心以东的约拉斯半岛上,占地500平方米,呈西南倾斜。该建筑的特点是在规划中采用了一个中央扭结,(根据芬兰的传统)避免了对邻居的直接视线,并将主要空间引向西面的海洋。该建筑与自然环境的关系激发了窗户的多样化摆放,框住了每个方向上不断变化的景色和日光质量。开放式的客厅从北面进入,位于底层,桑拿功能和建筑服务被放置在地下室。四间卧室位于楼上。规划的几何布局积聚在夹层,三个儿童房和主卧室在建筑的中心点相连,允许睡前有多种咨询选择。
MK5 is the latest project of ORTRAUM Architects, built for one of the partners of the office and his family of five. The house is placed on a south-west sloping 500m2 site, located on the Jollas Peninsula east of the Helsinki city centre. The architecture features a central kink inplan, which (according to the Finnish tradition) avoids a direct view towards the neighbours, andleads the main spaces to face the ocean towards the west. The building's relationship to the natural surroundings inspired the diverse placement of the windows, framing the changing views and daylight qualities in each direction. The open-plan living room is accessed from the north and located on the ground floor, sauna functions and building services are placed in the basement. The four bedrooms are located upstairs. The geometric layout of the plan accumulates on the mezzanine level, where the three children’s rooms and the master bedroom connect in the centre point of the building, allowing for multiple consultation options before bedtime.





MK5的结构由高度定制的CLT元素组成。 除了建筑的电气系统外,通风系统和照明设备也完全集成到CLT元素中。 西伯利亚落叶松木材被用于外墙、地板和家具。 定制的铜制部件用于窗户的框架。 外墙材料的选择是为了让建筑随着时间的流逝而自然形成斑点,并使其优雅地老化。在建筑的南面,垂直的电线从建筑的屋檐延伸到下面的露台平台,旨在让啤酒花攀爬者生长,以创造一个 "绿色屏幕",提供一个额外的隐私帘幕,远离道路。
The structure of MK5 consist of highly customized CLT elements. In addition to the building’s electrical system, the ventilation system and lighting fixtures are fully integrated into the CLT elements. Siberian Larch timber is used for the façade, the flooring, and the furniture. Custom fabricated copper parts frame the windows. The façade materials are chosen to allow the building to patinate naturally and age gracefully with time. On the south side of the building vertical wires are stretched from the building eaves to the terrace deck below, designed for hops climbers to grow to create a “green screen”, providing an extra curtain of privacy from the road.

ORTRAUM建筑事务所在实践中注重与客户和环境的全面合作,始终致力于为每个客户创造一个独特的解决方案。 除了这种个人参与之外,ORTRAUM还在每个项目中追求一种强有力的研究方法,专门开发新的预制构件类型,并扩展构件设计的可能性。
ORTRAUM Architects focus in their practice on working thoroughly with the client and the context, always with the aim of creating a unique solution for each of their customers. In addition to this personal engagement ORTRAUM also pursues a strong research approach in each project, specializing in the development of new prefabricated element typologies, and stretching the possibilities of element design.





















Architects: ORTRAUM
Area: 230 m²
Year: 2017
Photographs: Marc Goodwin
Manufacturers: Aurubis, RHEINZINK, VELUX Commercial, Hunton, Klas1-yhtiöt, Nikari, Paroc, Romanoff, Timberwise, CSW-Design, Emmahus, Heikki Aska, Helsingö, Houmio, Ilmar Koppel, Kalle Tuominiemi, Kruunukatto, Louhi Kivitasot, Oilon, Oy Skanno, +4
Structure Design:Asko Keronen
Hvac Design:Harri Ripatti, Leino Kuuluvainen
Architect In Charge:Martin Lukasczyk
City:Helsinki
Country:Finland