自然是空间的特征,手工制作仍然可以成为一种选择。穆萨拉比,木材,植被。自然的氛围,自然。每一个细节的舒适性都来自于温暖的物质性,总是与清醒的参考和柔和的语言对话。
The natural characterizes the space and the handmade can still be a choice. Muxarabi, wood, vegetation. Natural atmosphere, nature. Comfort in every detail are brought from a warm materiality that always dialogues with sober references and soft language.





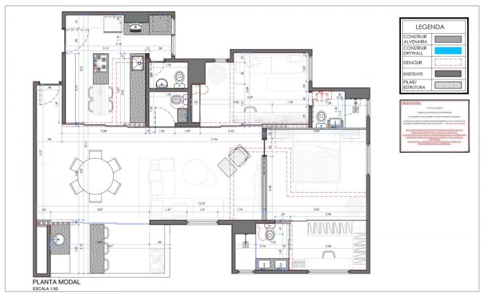
Muxarabi是主角,是巴西元素中的艺术,将手工制作的可能性具体化,与我们今天在建筑和室内的所有创新共存于大都市。这是一个功能性的背景,它阐明了通道和巩固了空间的多功能性。
Muxarabi is the protagonist, art in Brazilian elements, materializes the possibility of handcrafted joinery, coexisting in the metropolis with all the innovation we have today in architecture and interiors. It is a functional background, which articulates the accesses and consolidates the versatility of the space.

准则,创造了一个具有不同可能性和场景的综合环境。Muxarabi在房间里的这个主要和雕塑元素,是充满意义的,作为一个象征性的工具,在功能上有目的。在不同的开放系统中的作品;通往厕所的旋转门;整合厨房和客厅、办公室和家庭的滑动门。
Guidelines that create an integrated environment with different possibilities and scenes. This main and sculptural element of Muxarabi in the room, is full of meaning, as a symbolic tool, have purpose in the function. Works in different opening systems; pivoting door to the toilet; sliding doors that integrate kitchen and living room, office and home.

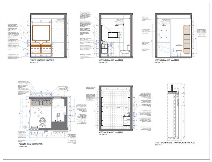
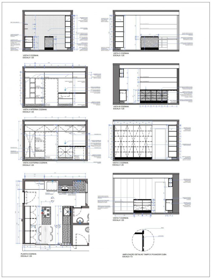
清晰和自然的基础被溶解在不同的材料中。陶瓷涂层,levigated花岗岩,稻草,皮革和植物。所有的细节都为这种氛围的叙述提供了素材,这种氛围寻求将户外、自然性带到每个元素中,带到每个新的环境中。
The clear and natural basis is dissolved in different materials. Ceramic coating, levigated granite, straw, leather and vegetation. All details feed the narrative of this atmosphere that seeks to bring the outdoors, naturalness, to each of the elements, to each new environment.



































Architects: flipê arquitetura
Area: 115 m²
Year: 2019
Photographs: Rodrigo Xavier
Manufacturers: André Ferri Desing, Breton, Color Mix, Estar Móveis, Inusual, Portinari para Stacatto, Selvvva, Tok Stock, Urban Arts, We Marcenaria, África Mármores
City:Real Parque
Country:Brazil