一个位于库里提巴的 "咖啡体验 "综合体。正是考虑到这一中心目标,五次获奖的咖啡师Leo Moço的旗舰店项目被创建,这是由与3Corações集团的新伙伴关系所促成的,它包括对旧的Barista咖啡吧进行改造。尽管周边和内部的墙壁被保留了下来,但该项目在其300平方米的相关空间中带有仓库/棚屋的新特征,专门用于品尝咖啡豆。
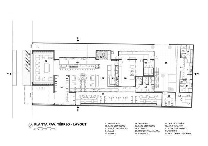
A “Coffee Experience” complex located in Curitiba. It is with this central goal in mind that the project for the five-time winner barista Leo Moço’s Flagship Store was created, which was made possible by a new partnership with the 3Corações Group, which consists of a retrofit of the old Barista Coffee Bar. Despite the perimeter and internal walls being preserved, the project carries a new trait of warehouse/shed in its 300 m² of correlated spaces dedicated to tasting coffee beans.





对内部环境的沉浸从咖啡店和收银台开始,它的天花板高度低于空间的其他部分,负责连接入口门和主要活动发生的大厅。从那里开始,一个长长的 "体验柜台 "将三个部分连接起来,目的是为了实现喝咖啡的新方式。特浓咖啡,由于有气势磅礴的Leva La Marzocco机器;饮料吧,饮料中含有咖啡成分;以及冲泡吧,专注于通过手动提取准备咖啡。
The immersion in the internal environment begins with the coffee store and the cashier, with a ceiling height lower than the rest of the space, responsible for connecting the entrance door with the hall where the main activities take place. From there, a long “experience counter” links three sections with the aim of a new way of drinking coffee: Espresso, due to the imposing Leva La Marzocco machine; Drinks Bar with drinks that have coffee in its composition; and a Brew Bar, focused in preparing coffee by manual extraction.

该项目在柜台旁边继续进行,有放置散装咖啡的空间和一台烘烤机,顾客可以参与烘烤过程,随后是一个食堂和面包店,以供应商店的日常需求。在后面,是厕所和会议室。
The project continues next to the counter, with space for bulk coffees and a roasting machine, where the customer can participate in the roasting process, followed by a cafeteria and bakery to supply the store’s daily demand. In the back, the toilets and a meeting room are located.


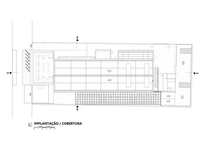
所有这些部分都由一个放置餐桌的大厅、看台和中央的 "Jabuticabeira树 "整合在一起,由于采用了自我支持的聚碳酸酯的侧面封闭系统,自然光渗透其中。在咖啡馆的前面还有一个空间,有更多的桌子和带坐垫的长椅,其区别在于可伸缩的屋顶,可以创造不同的氛围。
All of these sections are integrated by a large hall where the tables are placed, bleachers, and a central “Jabuticabeira Tree”, permeated by natural lighting due to the side closing system in a self-supporting alveolar polycarbonate. There is also a space with more tables and benches with cushions at the front of the coffee shop, whose differential is the retractable roof that allows the creation of different atmospheres.

如果在白天,这些空间保证了良好的自然采光,那么到了晚上,由于设计了人工照明,暴露了屋顶和内部最醒目的特征,这些空间就被改变了,创造了一个亲密和温馨的夜景。
If during the day good natural lighting is guaranteed in the spaces, at night these are transformed due to the artificial lighting designed to expose the roof and the most striking features of the interior, creating an intimate and welcoming night scene.

材料是这个项目的一个强有力的特征,负责以和谐的方式整合所有不同的环境。咖啡店气势恢宏的外墙本身暴露了内部的情况:自然和原始材料与较轻和半透明的材料之间的对比。值得注意的是,砖块的使用、醒目的绿色水力砖地板、天然木材和皮革在饰面中的使用,以及大元素的轻型金属结构,如屋顶、幕墙和管道。
Materiality is a strong feature of the project, being responsible for integrating all the different environments in a harmonious way. The coffee shop's imposing façade itself exposes what happens inside: a contrast between natural and raw materials, with lighter and more translucent ones. The use of bricks, the striking green hydraulic tile floor, the use of natural wood and leather in the finishes are noteworthy, as well as large elements of light, metallic structures, such as roofs, curtain walls and pipes.









Architects: Studio MG2
Area : 3229 ft²
Year : 2019
Photographs :Bia Nauiack
Manufacturers : Arteprima Revestimentos, Dsgnselo lightlab, Eliane, Guaraúna Revestimentos, Pastilhart , Perfilor, Plurigoma, Sabic Innovative Plastics, Stufaldi Patilhas Cerâmicas , Uniflex
Lead Architect : Rafael Gimenez Gonçalves
Co Author : Mariana Manzoni
Project Manager : Juliana Miashiro de Almeida
Design : Giovanna Pinhata e Beatriz Muraki
Builder : Caio Novaes Engenharia
Structural Project : Davlonta Engenharia
Electrical And Hydraulic Project : Eduardo Ribeiro Escritório de Projetos
City : Curitiba
Country : Brazil