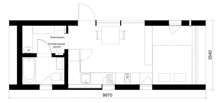
我们梦想创造一种房子,买家可以自己从仓库取货,在同一天自行安装,并立即开始使用,而不需要在整理、选择家具、厨房、餐具和装饰上浪费时间。我们的新产品 "TOPOL 27 "正是如此。我们把所有的功能都放在一个模块里,你不再需要用单独的块来组装房子。在27平方米的空间里,有5个功能区:卧室、厨房、客厅、浴室和更衣室--在最小的面积上获得最大的舒适空间。而这一切都在一辆车上到达并被安装在地基上。
We dreamed of creating a house that the buyer would be able to pick up from the warehouse on their own, install on their own on the same day and immediately begin using, without wasting time on finishing, selecting furniture, kitchens, dishes, and decor. Our new product "TOPOL 27" is exactly like that. We have put all the functions in one module and you no longer need to assemble a house from separate blocks. In 27 square meters, there are 5 functional areas: a bedroom, kitchen, living room, bathroom, and dressing room - a maximum of comfortable space on a minimum area. And all this arrives in one car and got installed on the foundation.



该项目是根据DublDomClub一百多间出租屋的生产和使用经验,作为商业产品而创建的。
The project was created as a product for business, based on the experience of production and use of more than a hundred rental houses of the DublDomClub.


该项目使用环保和耐磨的材料,适合在日常租赁条件下积极使用。天然橡木与黑色金属、石材厨房台面和玻璃相结合。在地板上,有一种耐磨和低过敏性的材料 "Forbo Flotex"。大量的玻璃和谐地连接了室内和自然环境。
The project uses eco-friendly and wear-resistant materials suitable for active use in daily rental conditions. Natural oak is combined with black metal, stone kitchen countertops, and glass. On the floor, there is a wear-resistant and hypoallergenic material «Forbo Flotex. A large amount of glass harmoniously connects the interior and the natural environment.

室内被设计成网络项目的通用解决方案。你所需要的一切,再无其他。每件物品都有自己的功能,各就各位,是房子的一个组成部分。这套方案包括家具、厨房、窗帘、碗碟、餐具、家用电器、室外和室内灯具以及露台。所有的装修工作都是在工厂完成的,所以你只需要铺床和在浴室放毛巾。
The interior was designed as a universal solution for network projects. Everything you need and nothing more. Each item has its own function, is in its place, and is an integral part of the house. The set includes furniture, a kitchen, curtains, dishes, cutlery, household appliances, outdoor and indoor lamps, and a terrace. All the decoration work is done at the factory, so you only need to make a bed and put towels in the bathroom.


大部分室内物品都是在连锁店里挑选的,这样可以快速更换,这对租赁业务很重要。昂贵的材料、石制厨房台面、木制窗户和门设置了高级的装饰和服务,强调了野性的大自然和舒适的现代室内环境之间的对比。紧凑的烤箱轻松地加热整个房间,创造舒适的环境,并可用于烹饪。
Most of the interior items are selected in chain stores so that they can be quickly replaced, which is important for the rental business. Expensive materials, stone kitchen countertops, wooden windows, and doors set a premium level of decoration and service, emphasizing the contrast between the wild nature and a comfortable modern interior. The compact oven easily heats the entire room, creates comfort, and can be used for cooking.

外观由黑色金属和木材制成。这种解决方案巧妙地融入任何环境,不支配自然,与大量相同的房屋看起来很和谐。
The exterior is made of black metal and wood. This solution delicately fits into any environment, does not dominate nature, and looks harmonious with a large number of identical houses.

这座房子坐落在普罗特瓦河岸的 "松树河 "乡村酒店里。床边的彩色玻璃窗朝向河流和另一边的森林。这个位置结合了对外界的开放性和私密性,从一侧向大自然开放,并将房间隐藏在路边好奇的目光中。
The house is set in the «Pine River» country hotel on the Protva Riverbank. The stained-glass window by the bed is turned towards the river and the forest on the other side. The location combines openness to the outside world and privacy, opening up to nature from one side and hiding the room from curious eyes from the roadside.
















Architects: BIO-architects
Area: 27 m²
Year: 2021
Photographs: Arseny Rossikhin
Lead Architects: Ivan Ovchinnikov, Olga Sandakova, Kirill Kazakov
City:Kaluga Oblast
Country:Russia