联合办公空间Mol.t的一个室内项目,位于福冈县博多站以东,步行5分钟。由于面积有限,该空间需要仔细规划才能有效运作。
An interior project for co-working space Mol.t, located a 5-minute walk east of Hakata Station in Fukuoka Prefecture. Due to its limited size, the space required careful planning to function effectively.





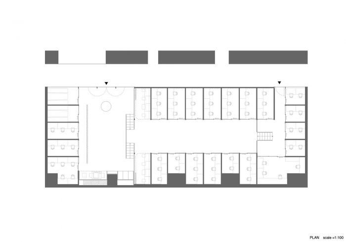
该空间打算供几个小规模的办公室使用,因此供两人、三人和六人使用的工作区被安排在一个盒子状结构中。每个工作区的地板下都有1400毫米高的存储空间,其设计是为了适应居住者行李的增加或减少,同时允许每个小组有效地使用工作区。
The space is intended to be used by several small-scale offices therefore work areas for two, three, and six people are arranged in a box-like structure. Storage space of 1400 mm high is provided under the floor of each work area and was designed to accommodate the increase or decrease of occupants’ luggage while allowing each group to use the work area efficiently.

此外,我们还计划在每个办公室隔出的区域外允许各种工作方式,包括休息室、讲座、会议室和集中工作的卡座。
In addition, we planned to allow for various working styles outside the areas partitioned off for each office, including a lounge, lectures, meeting rooms, and booths for concentrating on work.







Architects: SAKUMAESHIMA
Year : 2022
Photographs :Masaaki Inoue | Bouillon foto
Manufacturers : COMANY INC., Kvadrat, Marmoleum, Panasonic, Toli Corporation
City : Fukuoka
Country : Japan