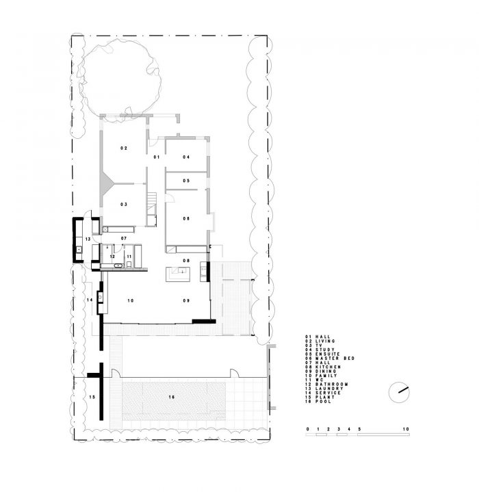
Mosh House的扩建是一个简单形式的集合,旨在拥抱户外。
The extension to the Mosh House is an assembly of simple forms designed to embrace the outdoors.


我们想灌输的精神是案例研究建筑师的乐趣和魅力,特别是皮埃尔-柯尼希和克雷格-埃伍德,以及密斯-凡德罗和手冢建筑师的影响。
The spirit that we wanted to instil was the fun and glamour of the Case Study Architects, particularly Pierre Koenig and Craig Ellwood, with influence from Mies van der Rohe and Tezuka Architects.

我们用最小的、明确定义的关键元素来工作,因为我们知道客户会欣赏这种清晰的、没有杂乱的感觉。
We worked with minimal, clearly defined key elements knowing that the clients would appreciate the clarity and lack of clutter.

我们通过使用材料、连续的形式、在墙后滑动的玻璃门和谨慎的连接点,减轻了内部和外部之间的区别。随着门的打开,定义的房间成为一个开放的庇护所。
We mitigated the distinction between inside and out through the use of materials, continuous forms, glass doors sliding behind walls and discreet junctions. With the doors open, the defined room becomes an open shelter.
















Architects: Foomann Architects
Area: 740 m²
Year: 2011
Photographs: Derek Swalwell
Builder: Provan Built
Engineer:D. M. Landy and Associates
City:Elwood
Country:Australia