"给母亲的房子 "是Förstberg Ling完成的第一个房子,这个项目于2013年开始,是林雪平住房展览的一部分,Vallastaden 2017。这座房子被设想为Björn的母亲Maria的住所和工作室,她是图书管理员,也是一位热心的织工。
"House for Mother" is the first house completed by Förstberg Ling, a project started in 2013 as a part of the housing exhibition in Linköping, Vallastaden 2017. The house is conceived as a dwelling and studio for Björn's mother Maria, librarian and an enthusiastic weaver.



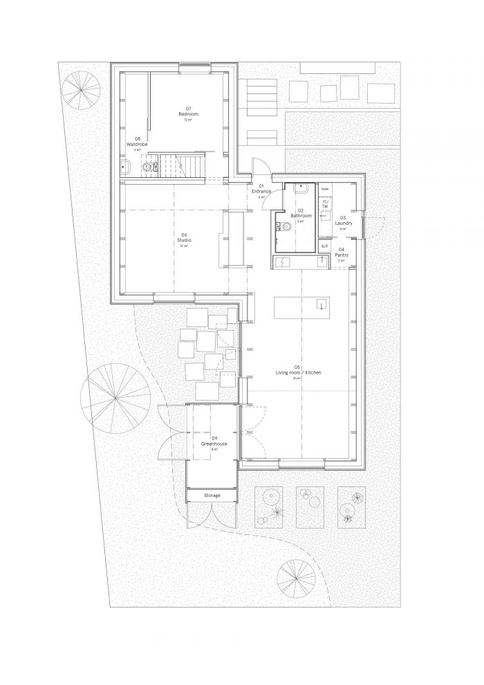
"给母亲的房子 "是一个平衡了空间性和私密性的房子--形式上的简单和强烈的物质性。原始波纹铝的外墙在白天创造了一个可变的光影游戏,丰富的材料与它的简单表达形成对比。木质横梁和桁架以及衬以胶合板的墙壁给室内带来了温暖。混凝土地板是一个耐用和美丽的表面,适合日常使用,沿着建筑的周边折叠成一个低矮的长凳。
"House for mother" is a house that balances spatiality with intimate rooms - formal simplicity with strong materiality. The facade in raw corrugated aluminium creates a variable play with light and shadow during the day, a rich materiality contrasting with it's simple expression. The wooden beams and trusses along with the walls lined with plywood give warmth to the interior. The concrete floor is a durable and beautiful surface for everyday use, folded to a low bench along the perimeter of the building.



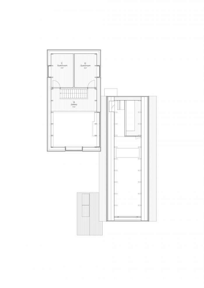
房屋被分成两个体量,彼此稍有偏移,强调了地块的狭窄程度。虽然暂时站在空旷的地方,但未来的城市环境最终不会比屋檐更多地暴露在邻居面前。
The division of the house into two volumes, slightly shifted from each other, emphasizes how narrow the plot is. While standing in the open for now, the future urban context will eventually not expose much more than the gables to the neighborhood.


















Architects: Förstberg Ling
Area: 135 m²
Year: 2016
Photographs: Markus Linderoth
Manufacturers: Hem Design Studio, Vola, AF Snickeri, Fönsterspecialisten i Lönsboda
Structural Engineer: Structor, Ronny Malm
City:Linköping
Country:Sweden