项目 "MOTTAGI 99 "位于首尔市中心的一个住宅区,其物理规定造成了基本的环境限制,"MOTTAGI 99"("MOTTAGI "的意思是切断一个角落:倒角)模糊了周围地区的许多僵硬的边界。它在标准化的城市景观中留下了一个新的缺口。这个项目开始于一个关于城市住房类型学的问题,它已经成为城市法规和个人利润欲望相结合的结果,反对它。MOTTAGI 99 "是一个五层的多户住宅,供五个家庭居住,并在一楼设有零售。
Located in a residential area in downtown Seoul with physical regulations that create fundamental environmental constraints, project ‘MOTTAGI 99’ (The word ‘mottagi’ means cutting off a corner: chamfering) blurs the many rigid boundaries of the surrounding area. It leaves a new gap in the standardized urban landscape. This project started with a question about the typology of urban housing, which has become the result of a combination of urban regulation and individual profit desires against it. ‘MOTTAGI 99’ is a five-story multi-family housing for five families and with retail on the first floor.





大众,重组密度
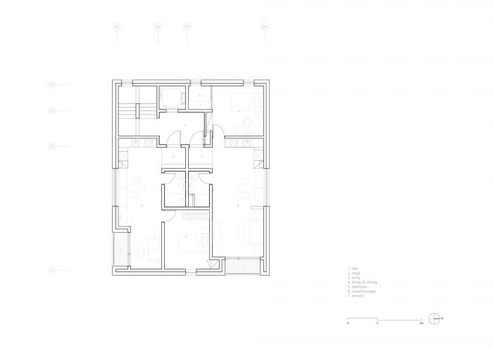
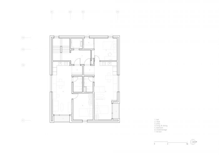
行人在街道上遇到单体建筑,同时在视觉上面对未被占用的地面空间和大部分被拆除的建筑上部空隙。建筑体的这种明显的饱满和空虚是被外部力量定义的结果,就像一个粘土生物。这个地点的外部力量是 "法律、城市密度、公共和私人距离"。这个单一的体量从地面到顶层有机地运作,让人们可以移动和体验。
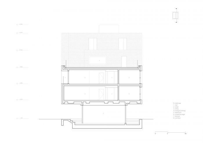
在有限的场地内,第一层猛烈地重组了密度,解决了法律规定的各种距离,包括入口、停车场等。
Mass, Reorganizing density
Pedestrians come across the monolithic mass on the street, while visually facing the unoccupied ground space and the largely removed upper void of the building. This distinct fullness and voidness of the building mass is the result of being defined by an external force, like a clay creature. The external forces on this site are ‘laws, urban density, public and private distance’. This single mass works organically from the ground to the top, allowing the people to move and experience.
Within the limited site, the first floor reorganizes the density fiercely, solving various required distances by law including entrances, parking, etc.

弯曲的体量将游客从街道引向大厅,同时容纳了项目。它为邻居和行人提供了空间,从道路上退后。在水平上降低了700mm,零售店单独吸引了游客。这种水平差异使室外空间和每层楼都能在整个建筑高度的规定下拥有必要的楼层高度。
The curved volume leads visitors from the street to the lobby while accommodating the program. It provides spaces to neighbors and pedestrians, being set back from the road. Lowered 700mm down in level, the retail shop attracts visitors separately. This level difference enables outdoor space and each floor to have the necessary floor height under the regulation of the entire building height.



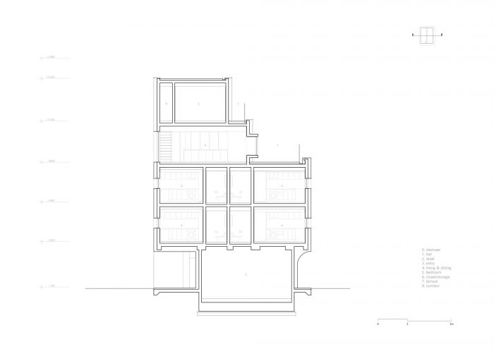
倒角(拱形)剪力墙的比例有点陌生,似乎在支撑一个沉重的臀部,揭示了体量的上部和下部之间的对比。这表明了在承重结构柱之外将体块向上推的方向性。多面倒角的目的是为了软化场地之间的界限,以及缓解建筑部件之间的僵硬程度。
The somewhat unfamiliar proportions of the chamfered(arch-shaped) shear wall that seem to support a heavy buttock reveals the contrast between the upper and lower parts of the mass. This indicates the directionality of pushing up the mass beyond the load-bearing structural column. The multifaceted chamfering was intended to soften the boundaries between sites as well as to relieve stiffness between architectural components.


结构与空间
块体的 "倒角变化 "在内部继续,在客户家人居住的4楼和5楼住宅中被进一步放大。楼梯穿过体块的缝隙,光线从弯曲的天花板流入,创造了丰富的背景和纹理。被用力推开或大胆地从外面移开的部分成为每个住房的私人露台,使他们与周围的邻居有一个舒适的距离。
Structure & Space
The ‘variation of chamfering’ of the mass continues inside, and it is further amplified in the 4th and 5th-floor residences where the client’s family lives. Stairs lie through the gap in mass, and light flows in from the curved ceiling creating abundant context and texture. The parts that are pushed hard or boldly removed from the outside become a private terrace for each housing, allowing them to have a comfortable distance between surrounding neighbors.



建筑的公共楼梯代表着结构美,也是重组密度的结果。位于楼梯中心的墙体通过悬臂结构支撑着楼梯,同时也是一个带有扶手的综合体。这种外观反映了仆人空间的压缩密度。
The public staircase of the building which represents structural beauty is also results from reorganizing density. The wall located at the center of the stairs supports the stairs by a cantilever structure, and at the same time, is an integrated body with handrails. This appearance reflects the compressive density of the servant space.






























Architects: AGIT STUDIO
Area: 436 m²
Year: 2020
Photographs: Kyungsub Shin
Lead Architects: Jamin Seo, Guen-il Huh
Construction: Dami Construction
Structural Engineering: EDEN Structural Engineers
Architects:AGIT STUDIO
City:Gangdong-gu
Country:South Korea