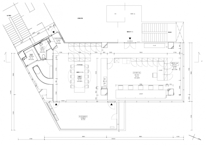
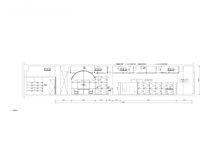
我们为MR_DESIGN设计了一个办公室,作为一个平面设计师Kenjiro Sano而闻名。室内空间是由家具的布局来定义的,这些家具都是经过精心设计的。这使得宽敞的室内空间得到了最佳利用,因为它不需要隔断。
We designed an office for MR_DESIGN, as known as a graphic designer Kenjiro Sano. The interior space is defined by the layout of the furniture, which has been meticulously designed. This enables the optimum use of the spacious interior, as it does not need partitions.


即使在通常需要隔断的会议空间,我们也通过使用雨伞建立了一个自由流动的空间。这些伞通常被用作光线反射器,但它们也具有声波反射收集器的功能,使人们能够在没有隔断的情况下进行交谈。
Even in the meeting space, where partitions are usually required, we have established a free-flowing space by the use of umbrellas. These are commonly used as light reflectors, but they also function as sonic-reflection collectors that enable people to have conversations without partitions.

这个照明系统是为专业工作室的图形编辑而设计的,它的光扩散效果防止阴影投射到桌子的顶部。作为办公室的另一个标志性元素,我们设计了连接内部空间的斜坡。
This lighting system was designed for the editing of graphics in professional studios, its light-diffusion effect preventing shadows being cast onto the top of the table. As a further iconic element of the office, we have designed slopes connecting the interior spaces.














Architects: Schemata Architects
Area: 188 m²
Year: 2010
Photographs: Takumi Ota
City:Tokyo
Country:Japan