这是一个在群马县前桥市为40名1岁至2岁的儿童新建的设施,其概念是 "感受季节的变化"。前桥市位于赤城山脚下,天气随季节的变化而变化很大。例如,在冬天,他们有来自赤城山的强烈而寒冷的风,称为 "赤城大风",他们可以很好地感受到季节的变化。
This is a facility newly built for 40 children who are from 1 year old to 2 years old in Maebashi, Gunma, with the concept ‘Feel the change of seasons. Maebashi city is located at the foot of Mt. Akagi and the weather changes a lot depending on the seasons. For example, in winter they have a strong and cold wind from Mt Akagi, called ‘Akagi Oroshi’ and they feel the change of seasons very well.


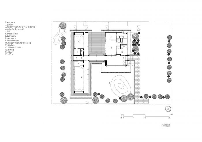
最近单调的苗圃环境似乎在增加。但在这个项目中,我们认为这是一个问题,许多幼儿园的房间被设计成易于成人控制儿童,所以人们在其中度过舒适的时间感受自然的设施。由于环境感觉像自然,所以安装了一些日本传统房屋的元素,这些元素有很多面对自然和管理自然的想法。深屋檐和大窗户可以吸收风和阳光,这取决于季节的变化。泥墙具有隔热和防潮的作用。通过这些方式,孩子们可以发展身体机能,同时即使在室内也能感受到大自然。此外,两个连接的房间也是日本的传统房屋风格。通过将两个房间连在一起,孩子们可以在老师的看护下安全地玩耍。
The recently monotonous nursery environment seems to be increasing. But in this project, we think it is a problem that rooms in many nursery schools are designed to be easy for adults to control children, so the facility where people spend a comfortable time feeling nature. As the environment feels like nature, some elements of the Japanese traditional house are installed which has many ideas to face nature and manage it. Deep eaves and large windows can take wind and sunlight which change depending on the seasons. Mud walls have heat-insulating and moisture-buffering effects. In these ways, children can develop physical function while feeling nature even inside. In addition, the two-adjoining room is also Japanese traditional house style. By making two rooms together, children can play around safely while the teacher watches them over.



在这样一个舒适的环境中,孩子们可以自己感受季节的变化,培养他们的敏感性,同时他们可以有机会接触当地的材料,了解他们的文化。
In such a comfortable environment, children can feel the change of seasons and cultivate their sensitivity by themselves and at the same time they can have chances to touch local materials and learn about their culture.















Architects: HIBINOSEKKEI, Kids Design Labo, Youji no Shiro
Area : 297 m²
Year : 2021
Photographs :Ryuji Inoue
Architects : Youji no Shiro
City : Maebashi
Country : Japan