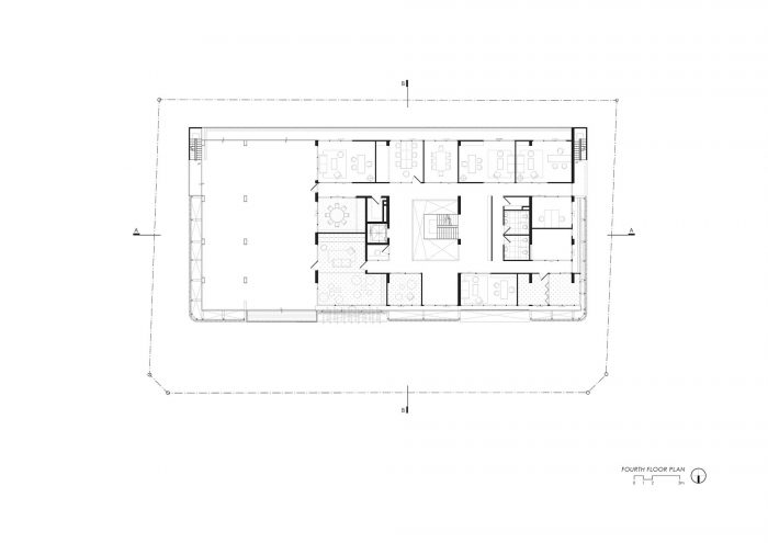
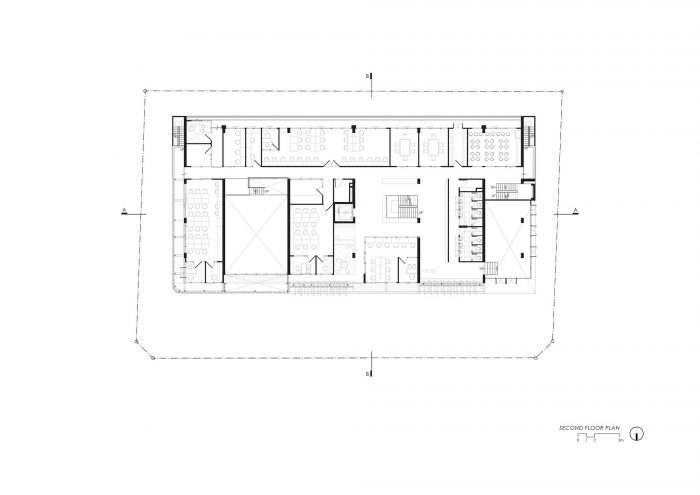
MTL是一个在建筑系统中工作的办公大楼。业主希望他的业务能够反映在建筑中,这栋4层高的建筑有3000平方米的功能区。业主的另一个有趣之处在于,他希望这栋办公楼能给所有的人带来一种家的感觉。
MTL is an office building working on an architectural system. The owner wanted his business to be reflected in the architecture with the 4 story high building with 3000 square meters of a function area. Another interesting aspect of the owner is that he wants this office building to give a sense of hominess to all of his people.







起初,该场地是一片空地,有很多树木。在观察了场地后,设计概念出现了。人们对建筑的感觉应该保持与施工前相同。
At first, the site was vacant land with lots of trees. After observing the site, the design concept came up. The perception of people to the architecture should remain the same as before the construction.

不完美是这个设计的一个重要关键。通过让自然成为设计的一部分,建筑允许其他生物如鸟或杂草在里面生长和生活。此外,流通部分和分区之间的界限是模糊的。每个部分之间没有明确的分隔,而是爆炸性的边界,空间可以根据功能自由调整。
Imperfect is an important key for this design. By letting nature become a part of the design, the building allows other creatures such as birds or weeds to grow and live inside. Moreover, the boundary between the circulation part and zoning is blurred. Instead of having a clear separation between each section, the boundary is exploded, and space can be adjusted freely depending on the function.

对于外墙,我们使用了50,000块砖来创造一个自我组织的外墙,让自然来控制砖的外观,而这以后,将成为建筑的一个特征。
For the facade, we use 50,000 bricks to create a self-organization facade, allowing nature to control the appearance of the brick which later, will become a characteristic of the building.


































Architects: Junsekino Architect and Design
Area: 3836 m²
Year: 2021
Photographs: Spaceshift Studio
Manufacturers: Lamptitude, BPK brick, Bio Wood, L and E lighting, M.V.P. Four Star
Structure Engineer: Next Engineering Design
Architect:Junsekino Architect and Design
Interior Designer:Junsekino Architect and Design
City:Bangkok
Country:Thailand