韩国化妆品品牌MUDE始于 "缪斯 "一词,一个鼓舞人心的存在。我们想创造一个像品牌故事一样的鼓舞人心的空间。我们确立了设计语言,希望它能成为一个表达MUDE的感性和品牌核心价值的空间。
Korean cosmetic brand MUDE started with the word 'muse', an inspirational being. We wanted to create an inspirational space like a brand story. We established the design language in the hope that it would be a space to express MUDE's sensibility and brand core values.



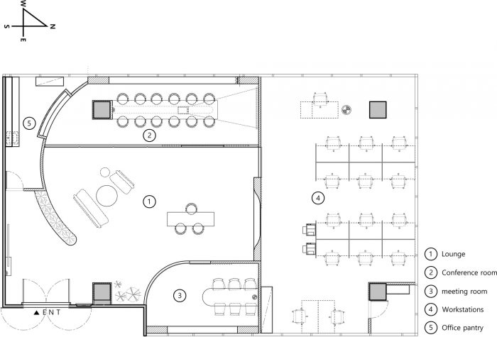
首先是形式。我们形成了一个表达曲线的空间。优雅的曲线表达了MUDE的品牌形象。
第二,材料。我们希望中央空间是一个风景如画的空间,所以我们把美丽的自然元素和纹理放入空间。我们希望在中央空间提供一个舒适和独特的体验。
第三,颜色。深米色和柔和的光线为空间创造了一个舒适的氛围。
First, the form. We formed a space that expresses the curves. Elegant curves express the brand image of MUDE.
Second, the material. We hoped the central space to be a picturesque space so we put beautiful natural elements and textures into the space. We wanted to deliver a comfortable and unique experience in the central space.
Third, the color. The deep beige color and soft light create a comfortable atmosphere for the space.


通过这些计划,我们打算小心翼翼地把轻松、优雅的气氛放在空间里。我们希望它能成为一个在为工人提供更好的工作环境之外还能传递休息和灵感的地方。
Through these plans, we intended to carefully put a relaxed, elegant atmosphere in the space. We hope that it will be a place where we can deliver rest and inspiration beyond providing a better working environment for workers.











Architects: Design Studio Mono
Area : 185 m²
Year : 2022
Photographs :Seeun Park
Lead Architects : Suhyun Oh, Yeun Kang
Interior Design : Design Studio Mono
City : Seongdong-gu
Country : South Korea