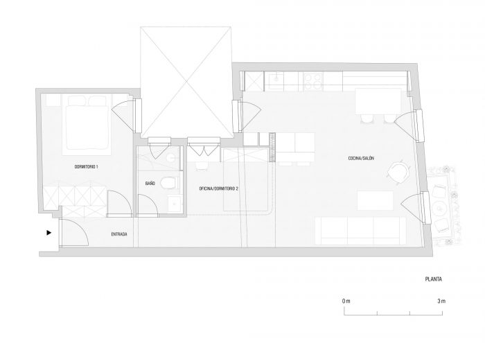
这项任务包括对位于塞维利亚历史中心的一个小公寓进行翻新,面积为55平方米。客户需要创造一个新的空间,包括两间卧室、厨房、餐厅和客厅,这是一个重大挑战。建筑物的外立面在一个朝南的小广场前面,所以白天使用最多的空间被转向它。相比之下,面向夜间的空间则位于内部庭院周围。
The assignment consisted in the refurbishment of a small flat located in the historic centre of Seville, with a surface area of 55m2. The need of the clients to create a new space containing two bedrooms, kitchen, dining room and living room posed a major challenge. The external façade of the building is in front of a small square facing south, so the spaces most used during the day were turned towards it. In contrast, the night-facing spaces are located around the interior courtyard.



以实现灵活和开放的空间为主要目标,一个中间空间被用作铰链,它有时被用作办公室,有时被用作带有折叠床的客卧,有时则被用作主要生活空间的统一部分。通过这种方式,它被设计成一个不确定的空间,可以进行用途的转换。这套公寓的结构是由一件家具构成的,它围绕着平面图,作为一个元素的容器来释放空间。有时它是一个衣柜,有时是一面墙,一张工作桌,一张床和架子,它甚至与厨房本身融合在一起。材料的策略是尽量减少使用的元素的数量,这样材料将有助于统一缩小尺寸的公寓的空间操作。桦木被选作集装箱家具,从而统一了项目的形象。在空间的内部,外窗也是由天然木材制成,在庭院的外表面则是白色漆面。双叶窗被单叶窗取代,以享受更好的视野,并与外部和带有植被的小阳台相连接,保持安达卢西亚的传统。
With the main objective of achieving flexible and open-plan spaces, an intermediate space is used as a hinge, which will sometimes be used as an office, sometimes as a guest bedroom with a folding bed and at other times as a unified part of the main living space. In this way, it is designed as an indeterminate space open to the transformation of uses. The flat is structured by a piece of furniture that surrounds the floor plan as a container of elements to free up the space. Sometimes it is a wardrobe, other times a wall, a work table, a bed and shelving and it even merges with the kitchen itself. The strategy with the material sought to minimise the number of elements used, so that the material would contribute to unify the spatial operation of a flat of reduced dimensions. Birch wood was chosen for the container furniture, thus unifying the image of the project. The exterior windows are also made of natural wood in the interior of the spaces and white lacquered on the exterior face in the courtyard. The 2-leaf windows have been replaced by a single one, to enjoy better views and have a connection with the exterior and the small balcony with vegetation, maintaining the Andalusian tradition.


此外,在地板上,选择了大规格的水泥色石膏,以提供一个同质、连续和实用的感觉。最后,其余的内部被漆成白色,这样房子就可以尽可能多地吸收自然光,再加上选择了浅色的木材,如桦木,以一种愉快的方式完成了空间的装饰。
In addition, for the floor, large-format cement-coloured stoneware was chosen in order to provide a homogeneous, continuous and practical sensation. Finally, the remaining interior is painted white, so that the house can absorb as much natural light as possible, which, together with the choice of a light wood such as birch, finishes off the spaces in a pleasant way.








Architects: Heimat Studio
Area: 55 m²
Year: 2023
Photographs:Ángeles Molina
Manufacturers: Saloni, Garcopró SL, MARAZZI
Design And Execution: Javier Salvador, Yago García
Work Supervision: Javier Salvador
Construction: Garcopró SL
City: Sevilla
Country: Spain