Cupa(Centro Urbano Presidente Aleman)是墨西哥的第一个现代主义住宅综合体,也是世界上最早的社会住房实验之一。该项目于1947年由国家委托给建筑师马里奥-帕尼,他的设计基于勒-柯布西耶的辐射城市的城市和建筑原则,作为一种新的方式来面对墨西哥城日益增长的住房需求。该项目建设仅用了两年时间,创造了墨西哥高层建筑的新纪录。
Cupa (Centro Urbano Presidente Aleman) was the first modernist residential complex in Mexico and one of the first social housing experiments in the world. The project was commissioned by the state to the Architect Mario Pani in 1947, who based his design on the urban and architectonic principles of Le Corbusier`s Radiant City as a new way to face the growing demand of housing in Mexico City. The project construction took only 2 years and set a new record for high rise constructions in Mexico.




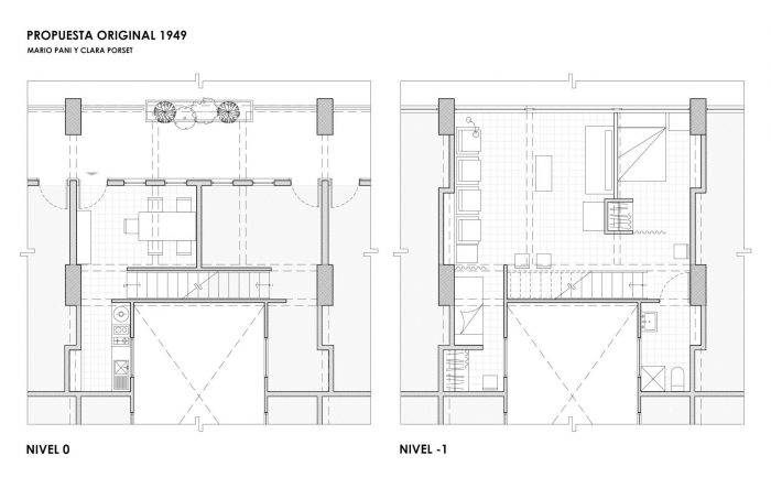
该建筑群包含1080套公寓,分布在一个超级街区的6栋高层建筑和6栋小型建筑中,其建筑占地面积约占街区面积的30%。在底层,这些建筑配备了城市基础设施,如商业空间、体育设施、学校和绿地,供居民使用。这些建筑有一个坚固的、模块化的混凝土梁和柱子的结构系统,避免了结构墙,并允许灵活地重新配置公寓的内部。有5种类型的公寓,面积从48到76平方米不等。我们的客户是一对夫妇,有两个儿子,15年前搬到CUPA。他们的公寓有55平方米,分两层。在通道层(12m²)是厨房和餐厅,在下层(43m²)是一个没有隔墙的空间,用于放置三张床、电视、沙发、一个封闭的浴室/洗衣房、他们的自行车和很多箱子,他们在那里存放衣服和其他物品。在分析了公寓的现状后,我们发现的主要问题是缺乏隐私,缺乏存储空间,以及地板、灰泥、门和窗户的老化。
The complex contains 1,080 apartments distributed in 6 high rise building and 6 smaller buildings within a super block whose built footprint occupies roughly the 30% of the block’s area. On the ground floor the buildings are equipped with urban infrastructure such as commerce spaces, sport facilities, schools and green areas for its inhabitants. The buildings have a robust and modular structural system of concrete beams and columns that avoid structural walls and allow flexibility to reconfigure the interior of the apartments. There are 5 typologies of apartments that range from 48 to 76 square meters. Our clients, a couple with two sons, moved to the CUPA 15 years ago. Their apartment has 55 m² in two levels. In the access level (12m²) the kitchen and dining room and in the lower level (43m²) a space without partition walls for the three beds, the tv, a sofa, an enclosed bathroom/laundry room, their bikes and lots of boxes where they store their clothes and other belongings. After analyzing the current state of the apartment, the main issues that we identified were the lack of privacy, lack of storage space and the deterioration of floors, stuccos, doors and windows.




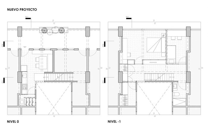
我们的建议是干预原来的木制楼梯,使其更陡峭,更短,以增加通道层的面积,并在楼梯下面的死角处增加高度。通过增加通道层的面积,我们能够增加并建造一个新的餐厅,重新安置新的厨房,并在新的厨房后面生成洗衣房和自行车库。在下层,存放自行车的楼梯下的死角被改造成了一个电视室。为了解决卧室之间的隐私问题和存储空间不足的问题,我们建议通过一块大型的木工制品与存储柜来重新配置空间安排,作为卧室空间、电视室和更衣室之间的分隔元素。这个木工元素尊重混凝土梁的不同高度,允许梁自由通过顶部,以便在电视室有更多的光线,并拥抱混凝土梁的结构连续性。同样的元素也配置了每个卧室的书桌和儿童卧室的新双层床。在相邻墙壁的壁龛中,我们建议采用克拉拉-波塞特在其1947年的家具方案中最初提出的内置存储家具。为了增加屋内的光线,一些隔断墙被朝向公寓后面的通风立方体的体外墙所取代。原有的深色油毡地板也被换成了白色水磨石。梁和天花板上的石膏被移除,以显示混凝土模板的纹理和美感。浴室被重新配置并安装了新的浴室柜和新的瓷砖。改革还包括一个新的照明方案,恢复了原来的大门、窗户和在邻居的楼梯下面的一个新的镀锌钢天花板,以保护公寓免受反复的漏水。
Our proposal intervenes the original wooden staircase by making it steeper and shorter to gain area in the access level and gain height in the dead space below the staircase. By increasing the floor area on the access level we were able to grow and build a new dining room, relocate the new kitchen and generate laundry room and bike storage behind the new kitchen. On the lower level, the dead space under the staircase where the bikes were stored was transformed into a TV room. To solve the problem of privacy between the bedrooms and the lack of storage, we proposed the reconfiguration of the spatial arrangement through a large piece of carpentry with storage cabinets that function as a dividing element between the bedroom spaces, tv room and dressing room. This carpentry element respects the different heights of the concrete beams, allowing the beams to pass freely over the top in order to have more light in the TV room and embrace the structural continuity of the concrete beams. This same element also configures the desks for each bedroom and the new bunk bed in the children bedroom. In the niches of the adjoining walls we proposed to have built-in storage furniture as originally proposed by Clara Porsett in her furnishing proposal of 1947. To increase the amount of light inside the house, some partition walls were replaced by vitroblock walls towards the ventilation cube that is at the back of the apartment. The pre-existing dark linoleum floors were also replaced with a white terrazzo. Plaster was removed from the beams and ceiling to reveal the texture and beauty of the concrete formwork. The bathroom was reconfigured and fitted with new bathroom cabinets and new tile. The reform also included a new lighting proposal, the restoration of the original gates, windows and a new galvanized steel ceiling underneath the neighbor's staircase that protects the apartment from recurring water leaks.












Architects: Escobedo Soliz
Area: 55 m²
Year: 2021
Photographs: Ariadna Polo
Manufacturers: AutoDesk, Helvex, Teka
Lead Architects: Pavel Escobedo, Andrés Soliz
Design Team:Diana Rico, Francesca Lauretta, Alberto Hernández
City:Ciudad de México
Country:Mexico