Randwijk的社区之家、射击俱乐部De Schutters和足球俱乐部EMM都有新的住宿计划,并决定联合起来建造一个新的联合建筑。在Randwijk地区,有许多砖厂,它们让砖块在有马鞍形屋顶和缓坡的长形棚子里干燥。
The community house, shooting club De Schutters and football club EMM in Randwijk all had plans for new accommodation and decided to join forces to build a new, joint building. In the Randwijk area, there are a number of brick factories that let the bricks dry in elongated sheds with saddle roofs and gentle slopes.




此外,该地区还有具有相同原型形状的摩鹿加营房。这些参考资料被用作设计的形式和材料使用的出发点。
In addition, there are also Moluccan barracks in the area with the same archetypal shape. These references were used as a starting point for the design in the form and use of materials.


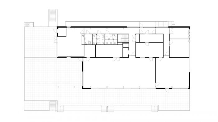
射击场和更衣室位于地下室。这一点一直保持着清醒和有效,所以有更多的预算能够完全用木头建造顶层,就像一个基座上的亭子。新的多功能建筑的东侧是开放和透明的,可以看到足球俱乐部的主球场。
The shooting range and changing rooms are located in the basement. This has been kept sober and effective, so that there was more budget to be able to build the top floor completely in wood, like a pavilion on a pedestal. The east side of the new multifunctional building is open and transparent with a view of the main field of the football club.


西侧则更加封闭和低调。在一楼,有三个不同大小的多功能空间,可以根据用户的需求和同时存在的情况,独立或同时使用。该建筑是能源中立的。
The west side is more closed and understated. On the first floor, there are three multifunctional spaces of different sizes that can be used independently or at the same time according to the demand and the simultaneous presence of the users. The building is energy neutral.








Architects: EVA architecten
Area : 1200 m²
Year : 2020
Photographs :Luuk Kramer
Manufacturers : Accoya, Unilin, Kalzip, VBI
Lead Architects : Jeroen Baars, Maarten Terberg
Assistant Designer : Daniël Grootbekker
Model : Marc van Zantvliet
Builders : Van de Broek, Prefit
Installations E : Staps Elektro
Installations W : Cornelisse Installatiebedrijf
City : Randwijk
Country : The Netherlands