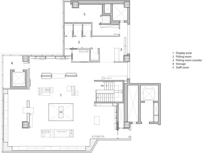
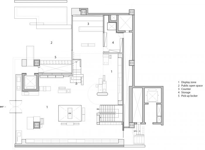
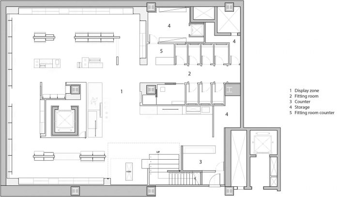
我们Labotory为Musinsa Standard确定了一个标语 "Tear down the time - break down time",因为它用我们自己的设计语言诠释了通过过去、现在和未来的永恒的空间概念。Musinsa Standard Hongdae由4层组成。从地下一楼到二楼,中间是1.5楼。从一楼开始,通向现在(一楼)和未来(1.5楼)、现在(二楼)和地下一层(过去)的循环被表述为对时间的叙述。
We Labotory settled a tagline “Tear down the time - break down time” for Musinsa Standard, as it interprets the spatial concept of timeless through past, present, and future in our own design language. Musinsa Standard Hongdae consists of 4 floors. The first basement floor to the second floor and the 1.5th floor in between. The circulation that starts on the first floor and leads to the present (first floor), and the future (1.5 floor), the present (second floor), and the first basement (past) is expressed as a narrative of the time.






特别是,从地下一层到地上二层的媒体塔,是对斯坦利-库布里克在《2001太空漫游》中的巨石的致敬。同时,它用三种设计语言来表达时间。它们是材料、结构和光线。
In particular, the media tower, which runs from the first basement to the second floor above ground, is a homage to Stanley Kubrick's Monolith in 2001 Space Odyssey. Also, it was expressed in three design languages for expressing time. These are materials, structures, and light.

首先,材料的变化从粗糙的触感到光亮的金属,体现了每层楼的过去、现在和未来的时间变化的遗迹。第二,用大块和小块的重叠和分割结构显示了时间的分散性,并通过楼梯的结构形状抽象地表达了时间之间的联系。
First, the change of the materials from rough touches to glossy metallic embodies the remnants of time change from the past, present, and future on each floor. Second, overlapping and segmenting structures with large and small mass shows the dispersion of time and abstractly expresses the connection between time through the structural shape of the stairs.


第三,我们用不同的表达方式来表现光这个显示时间流逝的物理学元素。天花板上的过滤钢百叶和织物分层表达了梦幻和模糊的感觉,表现为现在,直接投射的光从1.5楼的底部升起,并通过地下一层的光段表达过去。
Third, we represent light, an element that shows the passage of time physics, in various expressions. The filtering steel louvers and fabrics layered on the ceiling express dreamy and ambiguous sensibilities, shown as present, directly projected light rising from the bottom of the 1.5th floor, and expressed the past through light segments on the first basement floor.


因此,Labotory在我们的设计语言中定义了时间的概念,表达了 "撕裂时间,打破时间",并试图向使用Musinsa标准的客户传达一个有价值的永恒的品牌形象,随着时间的推移。
As such, Labotory defined the concept of time in our design language and expressed “Tear down the time, break down time” and tried to convey a valuable timeless brand identity to customers using Musinsa Standard over time.










Architects: LABOTORY
Area: 850 m²
Year: 2021
Photographs: Yongjoon Choi
Direction:LABOTORY, Keemin Park, Jinho Jung
Design And Audit:Seulgi Yoo, SongYi Han, Hyemi Kim, Sojin Lee
Construction And Audit:Sanghoon Lee, Dongbin Kim
Space Design:LABOTORY
City:Mapo-gu
Country:South Korea