2008年,JVA赢得了沃斯附近的Myrkdalen滑雪胜地的新总体规划的竞争。Myrkdalen酒店是该总体规划中第一个实现的项目。该建筑的体量和位置被理解为一个更大的计划的一部分。它拥抱着滑雪场,同时它也是在新的阿尔卑斯山村创造一个公共广场的一部分。
In 2008 JVA won the competition for the new master plan of Myrkdalen ski resort near Voss. Myrkdalen Hotel is the first project from the master plan that is realized. The volume and location of the building is understood as a part of a greater scheme. It embraces the ski slope and at the same time it takes part of creating a public square in the new alpine village.



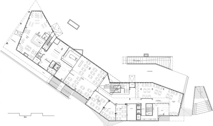
建筑的形状受到南欧传统的高山木屋和美国山地旅馆的启发,而屋顶和平面设计则是为了适应现场现有建筑和周围景观的规模。酒店采用了宽大的水平层压木板,这使大型建筑显得更小。
The shape of the building is inspired by the traditional alpine chalets in southern Europe and American mountain lodges, while the roof and plan is sculptured to adapt to the scale of the existing buildings on site and the surrounding landscape. The hotel is cladded in wide laminated horizontal wood planks and which makes the large building appear smaller.















Architects: JVA
Area : 7600 m²
Year : 2012
Photographs :Nils Petter Dale
City:MYRKDALEN
Country:Norway