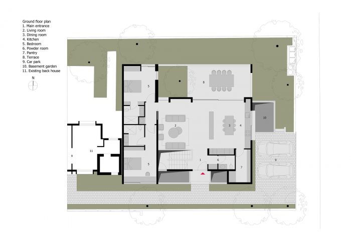
这个房子是为一对夫妇设计的。他们的要求是一个小而舒适的家,有大窗户,让他们在享受花园的同时还能保持隐私,并为他们的艺术收藏品保留充足的墙壁面积。
This house was designed for a couple. Their request was for a small and cozy home, with large windows allowing them to enjoy the garden while still maintaining privacy, and keeping ample wall area for their art collection.


裸露的混凝土是一个主要的材料,因为这是业主的梦想,而绿色作为对比色。
Exposed concrete is a dominant material as it was the owners’ dream to have, and green color serves as a contrasting color.
















Architects: Daniel Arev Architecture
Area: 220 m²
Year: 2022
Photographs:Daniel Arev
Manufacturers: Element Aluminium, Global Carpentry - Arkady Baskin, Metal World, Sade Mari
Lead Architect: Daniel Arev
Garden Design: Eti Gardens
Garden Design And Construction: Karmona
Site Supervision: Elgal
Carpentry: Arkadi Baskin
Metal Works: World of Metal, Sergey Kuzin
Entrance Door: Lior Dahari
Aluminium Contractor: Element Aluminium
City: Yehud-Monosson
Country: Israel