首尔江南的建筑形象是高大的,并且有巨大的街区面向林荫道。另一方面,如果你从主街道往里走一步,你可以在紧邻背街的密集城市结构中面对人性化的建筑。这个项目的目的是提供一个居住者可以在工作和休息之间保持平衡的建筑。
The image of the buildings in Gangnam, Seoul is tall and have huge blocks facing the boulevard. On the other hand, if you take a step inside from the main street, you can face human-scale buildings in the dense urban structure adjacent to the backside road. The purpose of this project is to provide a building where occupants can keep a balance between work and rest.





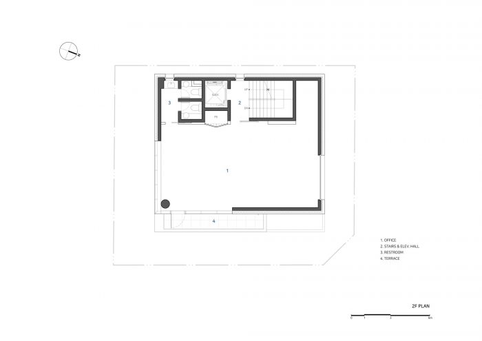
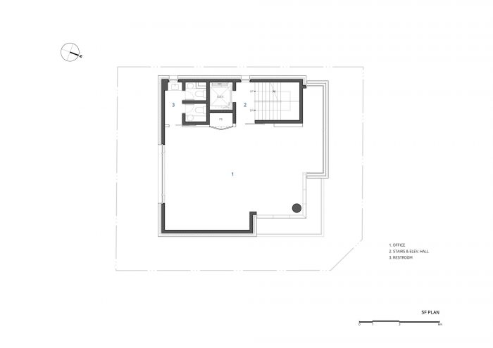
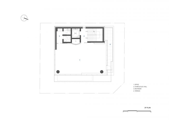
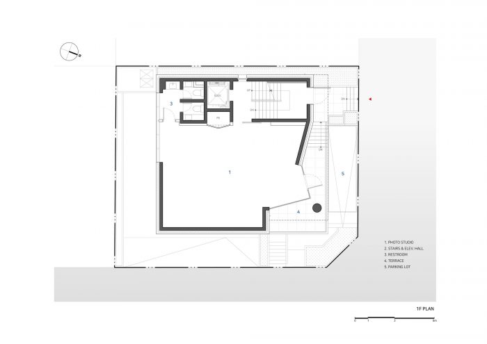
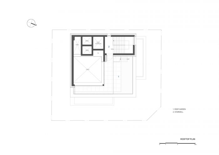
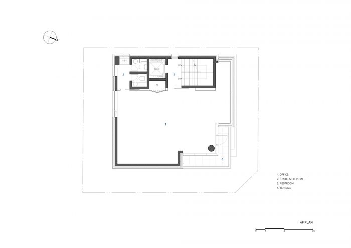
从一个在给定场地内具有最大体积的立方体开始,建筑的建造方式是将质量分解成碎片,并将它们连续堆积起来。碎片逐层交错排列,但每层的外部空间方向都是不同的。因此,露台是自发形成的,具有不同的宽度、长度和方向。外部空间将内部空间扩展到外部,在有限的工作空间中提供了丰富的空间。
Starting from a cube with maximum volume in the given site, the building is constructed by disassembling the mass into the pieces and stacking them up continuously. The fragmented pieces are staggered layer by layer, but the direction of the external space is formed differently for each layer. Therefore, the terrace is spontaneously created with different widths, lengths, and directions. The exterior space expands the interior space to the outside and provides abundant space in the limited working space.


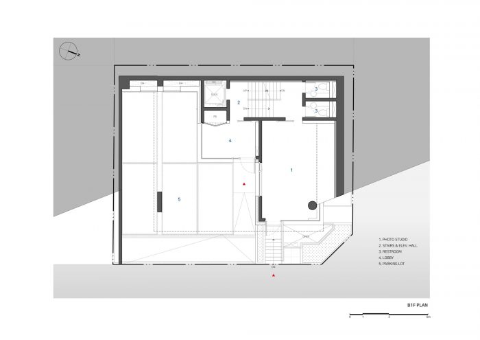
毗邻陡峭道路的场地在北面和东面的道路上形成了一层楼高的水平差。位于道路的交汇处,地下一层类似于地面层。自然光通过位于角落的下沉式花园深入到地下二层。位于一个混合用途的社区,窗户被放置在一个保持隐私的方向,外墙的砖块图案被设计为阻挡住宅区的视野。
The site adjacent to the steep road creates a level difference of one-floor height between the north and east road. Located in the intersection of the road, the first basement floor resembles to be the ground floor. Natural light penetrates deep into the second basement floor through a sunken garden located in the corner. Located in a mixed-use neighborhood, windows are placed in a direction of keeping privacy and the brick pattern of the facade is designed to block the views of the housing areas.



建筑总是根据社会所追求的价值而改变。与只重视经济和效率的时代不同,当今社会对工作条件和舒适度的要求与居住环境一样高。当建筑在现场落户时,它所创造的形象是非常关键的。 N3315 “将成为一个满足这些不同社会需求的空间。
Architecture always transforms accordingly to the values pursued by society. Unlike the era when only economy and efficiency were important, the present-day requires pleasant working conditions and comfort as much as the living environment. As the architecture settles down in the site, the image it creates is very crucial. 'N3315' will become a space where these various social needs are fulfilled.























Architects: Joh Sungwook Architects
Area : 793 m²
Year : 2022
Photographs :Kim Yong Kwan, Sungwook Joh
Structural Engineer : Eden Structural Engineering Group
Mechanical & Electrical Engineering : Suyang Engineering
Civil Engineering : CETS ENG
Project Designers : Sungwook Joh, Wanggeon Kim, Yeonjae Jang
Assistant Designer : Eunyoung Oh
City : Gangnam-gu
Country : South Korea