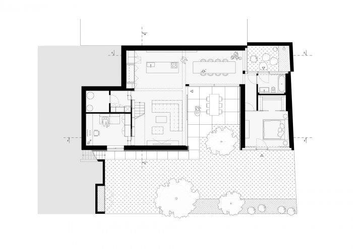
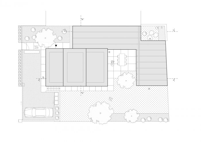
该住房项目--为一个年轻的四口之家设计的家庭住房--必须在布拉迪斯拉发老城区靠近Horský公园的一块相对较小的土地上建造。我们试图在这个地点、周围的发展和土地的现有发展的背景下,敏感地执行这项任务,这也是一个挑战。最初,现场有两个建筑。
The housing project – a family house for a young family of four – had to be created on a relatively small plot of land in the Old Town of Bratislava near the locality Horský park. We tried to carry out this task, which was also a challenge, sensitively in the context of the location, the surrounding development, and the existing development of the land. Originally, there were two buildings on site.




这个住房项目--为一个年轻的四口之家设计的家庭住房--必须在布拉迪斯拉发老城区靠近Horský公园的一块相对较小的土地上建立。我们试图在这个地点、周围的发展和土地的现有发展的背景下,敏感地执行这项任务,这也是一个挑战。最初,现场有两座建筑。
The housing project – a family house for a young family of four – had to be created on a relatively small plot of land in the Old Town of Bratislava near the locality Horský park. We tried to carry out this task, which was also a challenge, sensitively in the context of the location, the surrounding development, and the existing development of the land. Originally, there were two buildings on site.



在最初关于保留原有建筑的争论之后,经过对事实的重新评估--分析现有的支持结构和立法的可能性,我们决定选择新建的道路,但要对原有的解决方案进行跟进。因此,我们能够在一小块土地上为投资者创造一个高于标准的用户价值的住房,并对环境采取敏感的态度。
After the initial polemic about the preservation of the original buildings, after re-evaluating the facts - analyzing the existing supporting structures and legislative possibilities, we decided to choose the path of new construction, but with a follow-up to the original solution. Thus, we were able to create an above-standard user value of housing for the investor on a small plot of land with a sensitive approach to the environment.


在原有建筑的占地面积上建造新建筑的概念,目的是尽量不给地块及其周围的稳定区域带来负担,并保留原有开发的规模和特征。在分析之后,我们进行了两个基本的出发点。解决方案的第一个出发点代表了与物体的原始质量的联系,由此产生的第二个出发点是在它们的原始足迹上创建一个新的布局方案。
The aim of the concept of the new building on the footprint of the original buildings was to try not to burden the plot and its surroundings in a stabilized area and to preserve the scale and character of the original development. After the analysis, we proceeded to two basic starting points. The first starting point of the solution represented the connection to the original mass of the objects, and the second resulting from this was the creation of a new layout scheme on their original footprint.






































Architects: NOIZ architekti
Area : 140 m²
Year : 2022
Photographs :Tomáš Manina
Manufacturers : Kaldewei, Duravit, Grohe, Markilux, Menu, B&B Italia, B.I.C., Carl Hansen and Son, FLOS, Fosacarini, Jánošík, Molteni & C, Muuto, Nesia, Nikari, Osmont, Skagerak, Thermory, Viabizzuno, VitrA
Building Contractor : BBC Domy
Carpentry : MM interier
Lightning : Iluma
Furniture : Konsepti
Garden Design : ML atelier
Architectual Study, Design, Planning, Supervision : Samuel Zeman
Design, Planning, Supervision : Andrej Šabo
Architectual Study : Lukaš Kordik, Štefan Polakovič
Site Manager : Martin Lobodas
Program / Use / Building Function : Family house
Project Planning : Miestor
City : Bratislava
Country : Slovakia