Japoneza Retreat的Casa Nakamura是一个离墨西哥城仅两小时车程的退休住宅,位于Atlangatepec泻湖脚下。受武士文化以及相扑和柔术练习的启发,中村是一个简单的、沉思的建筑概念,在这里你可以体验到无与伦比的放松和休息的时刻。
Casa Nakamura by Japoneza Retreat is a retirement home located just two hours from Mexico City at the foot of the Atlangatepec Lagoon. Inspired by the samurai culture and the practices of sumo and jiu-jitsu, Nakamura is a simple, contemplative architectural concept where you can experience unparalleled moments of relaxation and rest.



它的概念是寻求日本古代建筑和墨西哥大自然的特性的混合。其审美是基于相扑运动员成长的heyas或马厩,以及其他形式的武术诞生的地方,在日本的极简主义和墨西哥工匠用木头和皮革创造的温暖的物体之间形成一个构图,在他们的粗暴主义和表达空间中寻求。在Fausto Terán的建筑中,他作为一个武术家对可以转化为训练场所的沉思空间的探索是值得注意的;特别是在柔术和他在日本和韩国逗留期间的道馆的明显影响,他在那里有被称为BUJUTSU的柔术学校。中村的正面有两幅由Carlos Segovia制作的壁画,代表了墨西哥和日本之间的相似之处,也代表了这个养老院的守护者。
Its concept seeks the mixture of ancient Japanese architecture and the identity of Mexican nature. The aesthetic is based on the heyas or stables where Sumo wrestlers grew up and where other forms of martial art were born, making a composition between Japanese minimalism and the warmth of objects created with wood and leather by Mexican artisan hands seeking in their brutalism and expression space. In the architecture of Fausto Terán, the search for him as a martial artist in spaces for contemplation that can be transformed into places of training is notable; specifically in Jiujitsu and the notable influence of the Dojos during his stay in Japan and Korea where he had Jiujitsu schools called BUJUTSU. Nakamura has 2 murals on the front made by Carlos Segovia that represent the parallels between Mexico and Japan and represents the guardians in this retirement home.


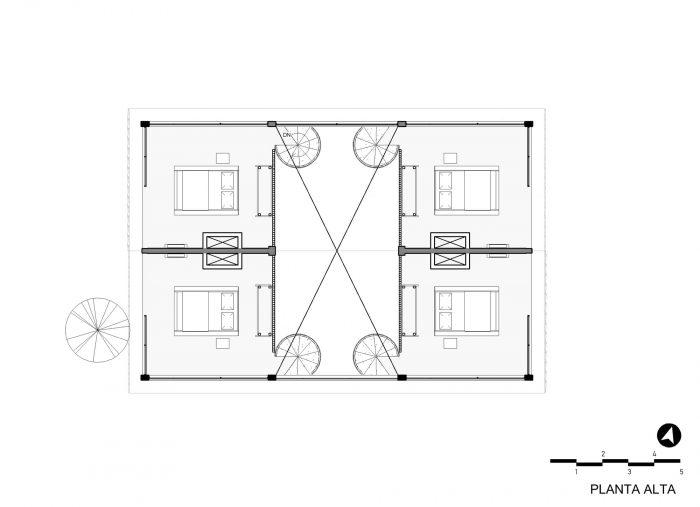
中村由两层的4个房间组成,其中两个房间可以看到泻湖和日出,另外两个房间可以看到日落和山脉。一楼是带水泥浴缸和Tzalam木的浴室,一个壁炉,一个露台,一个客厅,以及房子中央的一个榻榻米空间,上面有皮革的Ottoman坐垫,邀请客人享受欢聚的时刻。优雅而简单。这个古老的绿洲被一个13米长的混凝土温水游泳池与另一所房子Japoneza Retreat区分开来,白天客人可以在自然景观中游泳和放松,晚上则被温暖的灯光包围。
Nakamura is made up of 4 rooms on two levels, of which two have views of the lagoon and sunrise, and the other two have views of the sunset and mountains. On the ground floor are the bathrooms with a concrete tub and Tzalam wood, a fireplace, a terrace, a living room, and a tatami space in the center of the house with leather Ottoman cushions that invite guests to enjoy moments of conviviality. with elegance and simplicity. This ancient oasis is divided from the other house, Japoneza Retreat, by a 13-meter-long heated concrete pool, available for guests to swim and relax amid natural landscapes during the day, or surrounded by warm lights at night.


在Casa Nakamura,时间在完全的宁静中流动,非常适合从城市的混乱中休息,并远离喧嚣、压力、污染和Covid。一个为对抗个人焦虑而创建的地方,迫使你坐在地板上产生污垢。由于它的混凝土结构和木梁,它的外部给人以日本堡垒的印象,内部则成为一个被和平包围的温暖和谐的空间,有香、木、柴、壁炉和薰衣草的气味。在这个养老院里,你可以在山水之间享受与大自然的充分联系,并享受所有的豪华舒适。是休息、沉思和宁静几天的理想选择。另一个关键概念是 “Shinrin-Yoku",这是一种日本的做法,包括在大自然中散步,目的是改善健康、福祉和幸福。我们会发现马、驴、狗,以及从鹰、兔子、路人、小狼到响尾蛇的野生动物。
At Casa Nakamura time flows in complete tranquility, perfect for taking a break from the city chaos, and getting away from tumults, stress, pollution, and Covid. A place created to fight personal anxiety and force you to sit on the floor generating dirt. Due to its concrete structure and wooden beams, it gives the impression of being a Japanese fortress on the outside and inside it becomes a warm and harmonious space surrounded by peace, with smells of incense, wood, firewood, fireplace, and lavender. In this retirement home, you can enjoy a full connection with nature in the middle of mountainous landscapes and with all the luxury comforts. Ideal to take a few days of rest, contemplation, and serenity. Another key concept has been “Shinrin-Yoku”, a Japanese practice that consists of taking a walk in nature with the aim of improving health, well-being, and happiness. We will find horses, donkeys, dogs, and wildlife from hawks, rabbits, roadrunners, coyotes to rattlesnakes.



















Architects: Fausto Terán, Toro
Area : 361 m²
Year : 2021
Photographs :Jaime Navarro
Manufacturers : CASTEL, Cemex, Comex, Polyform
Architects In Charge : Fausto Terán
Design Team : Andrea Santibañez
Textile Design : Atzin Hernandez
Clients : JapoNeza retreat
Engineering : Joaquin Su Machado, Cookie García
Landscape : Constantino Saenus, Patricia Quintanilla
Consultants : Yoshi Fukumori, Edgar Navarrete S.
Collaborators : Samantha Su, Joaquin Su, Gimena Lara,
Mural Artist : Carlos Segovia
Operations : Daniela De la Garza, Edgar Alcazar
PR : Kimi Ishiwara