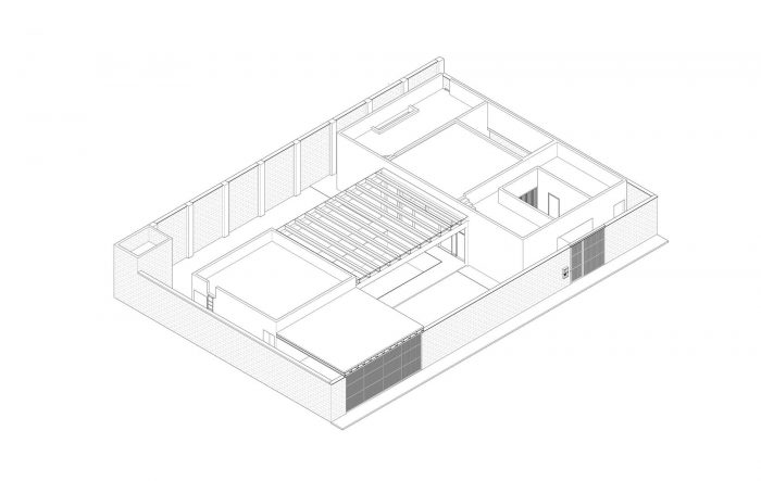
客户的要求包括一个度假屋。在此基础上,我们在物业的两端创造了两个体量,通过一个水体,与一系列的天井和绿地衔接起来;同时,建立了周边的循环,以划分相邻建筑的体量。
The client's request consisted of a holiday home. Based on this, we created two volumes at the ends of the property, which are articulated, through a body of water, with a series of patios and green areas; At the same time, perimeter circulations were established to demarcate the volumes of the adjoining buildings.




外立面由一堵墙组成,包含了行人和车辆的入口,这些是唯一的开口,分别与外部共存,创造了一种封闭性的感觉。然而,一旦进入,被分割的体量就开始显现。
The façade is made up of a wall that contains the pedestrian and vehicular entrance, these being the only openings that, separately, coexist with the exterior, creating a sensation of hermeticity. However, once entering, the sectioned volumes begin to be revealed.


第一个体量是入口天井,作为一个分配器,它允许车辆和行人之间的交流。该空间具有传统的高度,产生了一种阴谋的气氛,是白天区域的前奏。
The first volume houses the entrance patio, which, as a distributor, allows communication between vehicular and pedestrian access. Said space, with a conventional height, generates an atmosphere of intrigue and a preamble to the day area.


日间区域在一个半高处打开,拥抱了客厅和餐厅,揭示了与游泳池现有的视觉和物理联系。反过来,这个区域成为厨房、早餐庭院和夜间区域的交汇点。后者是在一个嵌入木质隔墙的微妙通道后面发现的,这有助于扩大房间和它们共享的浴室的高度。
The day area opens at a height and a half that embraces the living room and dining room, revealing the existing visual and physical connection with the pool. In turn, this area becomes a meeting point between the kitchen, the breakfast patio, and the night area. The latter is found behind a subtle access embedded in a wooden dividing wall, which helps to scale the height of the rooms and the bathroom they share.


由于现有的循环,游泳池空间成为一个汇合点,在这里建立了两个体量的程序。这个区域的盖子是由玻璃制成的,使它能够创造出既是外部空间又是内部空间的感觉,反过来,由于项目的定位与太阳方向有关,它也是一个发热体。
Due to the existing circulations, the pool space becomes a point of convergence, where the program that builds the two volumes connects. The cover of this area, being made of glass, allows it to create the sensation of being in both an exterior and interior space and, in turn, works as a heat generator thanks to the positioning of the project with respect to solar orientation.


第二个体量是由一个带有相应服务的露台空间组成的,它与景观空间和游泳池直接共存。Casa Naranjo是以房屋天井的概念开发的,其方向、材料和分布允许用户爬到他们的体验仪式中。
The second volume is made up of a terrace space with its corresponding services, which coexists directly with the landscaped spaces and the pool. Casa Naranjo is developed with the concept of a house patio, where the orientation, materiality, and distribution allow the user to climb into their ritual of experience.










Architects: Taller Michoacán
Area: 324 m²
Year: 2022
Photographs:Alberto Figueroa
Design Team: Jaime Guillén Castañeda, Bruno Lomelín Gomez
Construction Management: Jaime Guillén Castañeda, Bruno Lomelín Gomez
Team: Johana Domínguez, Edgar Daniel Orozco
City: Peribán de Ramos
Country: Mexico