塞特的新项目,位于圣路易痣的尽头。它的目的是供当地的航海协会和公司使用。该建筑,由简单和冷静的形式组成,用混凝土建造,以确保耐用。这个项目是通过重新使用牡蛎壳作为地板覆盖物来实现材料的反射和短路的意愿。该产品取名为Colstab Ostréa。
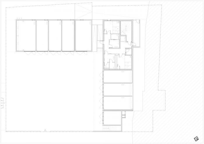
The new project of the nautical pole of Sète, is located at the end of the mole St Louis. It is intended to be used by local nautical associations and companies. The building, made of simple and sober forms, is built in concrete to ensure durability. This project was realized in a will of reflection of materials and short circuits through the reuse of oyster shells for the floor covering. The product taking the name of Colstab Ostréa.


该航海柱位于塞特港的圣路易斯摩尔尽头的一个标志性地点。它具有协会、塞特航海协会(SNS)和SNSM的多种用途,它通过将航海活动集中在其基地来确保必要的功能,以适应上层的办公和社交空间。通过其定位和材料,该项目旨在融入景观,同时揭示它。从接待室可以看到远处的地平线,接待室通向一个巨大的露台。
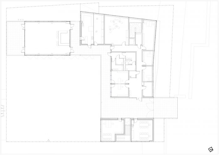
The nautical pole is located in an emblematic site at the end of the Saint Louis mole in the port of Sète. With multiple uses for associations, the Société Nautique de Sète (SNS) and the SNSM, it ensures the necessary functionality by grouping together nautical activities in its base to accommodate office and social spaces on the upper floor. By its positioning and its materiality, the project aims to blend into the landscape while revealing it. It is from the reception room, which opens onto a vast terrace, that the distant horizon is revealed.


该项目汇集了塞特的航海协会、塞特航海协会和SNSM。它也是一个组织航海活动的空间,如帆船比赛,接待区广泛开放到一个巨大的露台,提供了一个特殊的海洋景观。
The program brings together the nautical associations of Sète, the Société Nautique de Sète and the SNSM. It is also a space for organizing nautical events, such as regattas, and the reception area is widely open onto a vast terrace that offers an exceptional view of the sea.



选择简单的混凝土材料,是考虑到与大海的接近和常年的利益,并尽量减少建筑的维护。它更倾向于简单和冷静的形式。
The choice of a simple materiality in concrete was established with regard to the proximity with the sea and the stakes of perenniality and minimize the maintenance of the building. It was preferred simple and sober forms.


该建筑在景观中被插入,从远处的景观中显示出来,并与法国建筑的建筑师紧密合作,以使其意图获得成功,特别是在塞特市和圣克莱尔山。
在对材料和短路的反思中,我们使用了一个重新使用当地生态废物的装置,以了解牡蛎的外壳。为此,我们与COLAS公司进行了合作,该公司开发了一种使用牡蛎壳的地板产品。该产品被称为Colstab Ostréa。摘自Colas公司的介绍文件: "Colstab Ostrea是由Colas公司开发的,目的是回收Thau盆地贝类养殖活动中的牡蛎壳废料。
The building was worked in a will of insertion in the landscape which is revealed since the distant landscape and a close collaboration with the Architect of the Buildings of France was led in order to make a success of its intention in particular since the city of Sete and Mont Saint Clair.
In a will of reflection on materials and short circuit, we worked with a device of reuse of the local eco-waste to know the shells of oysters. To do this, a collaboration was undertaken with the company COLAS, which has developed a flooring product made from the use of oyster shells. The product is called Colstab Ostréa. Extract from the Colas presentation document: "Colstab Ostrea was developed by Colas with a view to recovering oyster shell waste from shellfish farming activities in the Thau Basin.









Architects: NBJ architectes
Area: 850 m²
Year: 2023
Photographs:Jean Luc GIROD
Study Phase: NAS Architectes
Contracting Authority: Port of Sète – Occitanie Region
Collaboration: COLAS company. Public works company
Collaborators: Quentin BRION
City: Sète
Country: France