Eskişehir-Konya道路的轴线将安卡拉的这一地区转变为城市发展最迅速、最有价值的部分。这个位于主要交通干线上的南北和西东交汇点同时也发展成为一个城市空间,不仅商业世界和社会生活在这个中心相遇,而且作为一个新的时尚住宅区吸引着人们。Next Level被设计成土耳其首都的第一个混合地产项目,包括办公室、住宅和一个购物中心。Next Level的设计灵感来自于它的战略位置,在总体布局和建筑外立面上反映了该地区的蓬勃发展和活跃的生活。
The axis of the Eskişehir-Konya roads transforms this area of Ankara into the city's most rapidly developing and valuable part. This north-south & west-east intersection point on the main transportation arteries has at the same time developed into an urban space where not only the business world and social life meet at this center, but also attracts people as a new and trendy residential area. Next Level has been designed as the Turkish Capital's first mixed property project and comprises offices, residences, and a shopping mall. The design of the Next Level is inspired by its strategic location and reflects the region's vigorous development and active life in the general layout and the facade of its buildings.




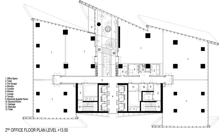
凭借其当代和创新的建筑设计,Next Level将为安卡拉的现代主义做出贡献,并为该市的城市生活注入活力。通过其标志性的结构和作为一个整体的气势,办公大楼反映了Next Level的经济潜力,其30层位于购物中心的顶部。Next Level办公大楼最独特的特点之一是它在所有楼层创造性地构思了公共区域的部分,以满足日常的便利。所有楼层的套房设计创造了开放给公众使用的等候区,为日常需求提供解决方案。这一特点也为办公室业主提供了额外的工作空间。
With its contemporary and innovative architectural design, Next Level will contribute to Ankara’s modernism and invigorate the city’s urban life. Through its iconic structure and imposing form as a monolithic mass, the Office Tower reflects the economic potential of Next Level and is located with its 30 floors on top of the Shopping Mall. One of the most distinctive features of the Next Level Office Tower is its creatively conceived section of common areas on all floors accommodating daily conveniences. Suites designed on all floors create waiting areas that are open to common usage and provide solutions for daily needs. This feature also delivers extra workspace for office owners.


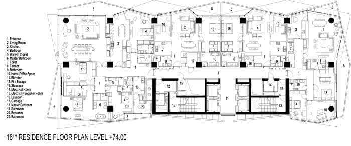
另一方面,住宅楼通过其精心设计的玻璃外墙和与众不同的20层个人生活空间,在其设计中体现了人文元素。由于其4米高的天花板、落地玻璃板和独特的露台,该空间使其居民充分享受到日光。住宅楼的休息区还提供娱乐设施,如咖啡馆/酒吧、图书馆和露台。这两座塔楼被设计成一个避开周围世界的吸引人的社交场所,位于一个具有吸引力的露天概念的裙楼之上。由150家商店组成的购物中心位于该建筑群的这一部分,它也是一个公共花园。
The Residence Tower, on the other hand, reflects the human element in its design through its meticulously designed glass facade and the distinguishing 20 floors of individual living spaces. Thanks to its 4-meter ceiling heights, floor-to-ceiling glass panels and distinct terraces the space allows its residents to fully benefit from daylight. The lounge area of the Residence Tower also offers recreational amenities such as café/bars, a library, and a terrace. These two towers, designed as a social venue of attraction sheltered from the surrounding world, are located on top of a podium with an attractive open-air concept. The Shopping Mall consisting of 150 stores is situated within this part of the complex, which also serves as a communal garden.


这个区域还包括一个2500平方米的电影院,并与透明的装饰池和绿色区域相连接,由人行道分隔。构成Next Level中心的透明装饰池通过水面折射的日光照亮购物中心,为游客提供了一个宁静的氛围。在7500平方米的景观区域内,公共和私人生活被封闭起来,共同转变为一个城市区域,提供文化、娱乐、商业和社交的机会。Next Level在建筑上有别于其他项目,所有这些独特的功能将为安卡拉的社会生活增添活力和新意。
This area also contains a 2.500 sqm movie theater and is aligned with transparent decorative pools and green areas separated by walkways. The transparent decorative pools constituting the heart of Next Level offer a serene atmosphere to visitors by illuminating the shopping mall with the reflection of daylight refracted through water. The common and private life, enclosed within a 7.500 sqm landscape area, together transform into an urban zone that offers cultural, entertainment, commercial and socializing opportunities. Next Level architecturally distinguishes itself from other projects with all those unique features which will add dynamism and novelty to Ankara’s social life.






































































Architects: Brigitte Weber Architects
Area: 196000 m²
Year: 2014
Photographs:Cemal Emden, Engin Aydeniz
Manufacturers: ALPOLIC, Dornbracht, Technowood, Duravit, Granitaş, Guardian Glass, Schüco
Lead Architect: Brigitte Weber
Landscape Design: DS Architects
Electrical Engineer: Hb Technical
Structure Engineer: Kinaci Engineering
Mechanical Engineer: Okutan Engineering
Lighting Design: Studio Lighting Design
City:ANKARA
Country:TURKEY