Nextech是一家提供信息技术基础设施和数据存储解决方案的公司。
服务。他们以前的办公室位于曼谷商业区的中心,在长期支付昂贵的办公楼租金后,他们决定是时候建立自己的总部。
在长期支付昂贵的办公楼租金后,他们决定是时候建立自己的总部了。在科技行业成为迈向无纸化工作环境的领导者期间,在线工作和云存储已经证明,工作可以在任何地方完成。这一新概念对传统的办公空间设计和利用提出了挑战。
Nextech is a company that provides Information Technology infrastructure and data-storage solution
services. Their previous office was at the heart of Bangkok’s business district and after a long period of
paying the costly rental prices in an office building, they decided that it was time to build their own headquarters. During the time that tech industries are the leader in moving towards a paperless working environment, online working and cloud storage have proven that work can be done from anywhere. This new concept has challenged traditional office space design and utilization.


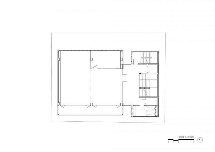
新总部位于一块400平方米的土地上,隐藏在一个小巷子里,靠近
Punnawhiti BTS站附近的一个小巷内。由于离曼谷市中心有一段距离,建筑法规规定高度不超过15米。
高度不超过15米。楼层规划是最大化的,但不是因为传统的原因。该建筑
被分为两个部分:办公空间和服务核心。两者之间有一条风道相隔。
贯穿整个建筑的高度,让自然光和通风进来。这创造了一个愉快的
这在露天空间中创造了一种愉快的气氛,不仅在进入办公室前迎接访客,而且还提供了工作时间之间小憩的休闲区。
工作时间之间的小憩或休闲讨论的休闲区。它还作为一个空间
从建筑学角度划分,连接不同楼层的工人,并打破了标准办公大楼通常的僵化状态。
在标准办公大楼中发现的僵化现象。在建筑中被动地创造舒适的另一个关键因素是
服务核心区的位置,其战略方向是面向南方,以提供一个缓冲区,避免阳光直射。
阳光。这也使过多的热量远离了建筑的主要可使用空间。
The new headquarters is situated on a 400 square meters plot of land, tucked inside a small soi near
Punnawhiti BTS station. With some distance away from central Bangkok, building codes regulate the height
at a maximum of 15 meters. The floor plans are maximized but not for conventional reasons. The building
is divided into two masses: office space and service core. Separating between the two is a breezeway that
runs through the whole height of the building, letting in natural light and ventilation. This creates a pleasant
atmosphere in open-air spaces which not only greet visitors before entering the office but also provide
leisure areas for small breaks between working hours or casual discussions. It also acts as a space that
architecturally divides the building, connects workers from different floors, and breaks the rigidness typically
found in standard office blocks. Another key element that passively creates comfort in the building is the
placement of the service core, which is strategically oriented to face the south to provide a buffer from direct
sunlight. This also keeps the excessive heat away from the main occupiable space of the building.


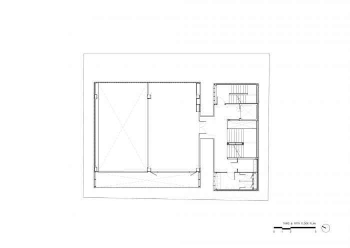
在内部,2-5层提供了灵活的开放式空间,供各种用途使用。这些空间支持
这些空间支持不同的活动,以适应现代工作环境的需要,在这种环境中,对个人办公桌的需求不再决定整个楼层。
这些空间支持各种活动,以适应现代工作环境的需要,个人办公桌的需求不再决定整个楼层的大小。多用途空间可以容纳研讨会、活动和未来的变化。
变化。除了灵活性之外,办公空间的关键建筑元素是双高的
天花板。牺牲了3楼和5楼的一半面积,高高的天花板创造了一个明亮和通风的氛围,充分利用了自然光。
充分利用自然光。高低天花板之间的动态变化提供了
愉快的规模变化,以及不同功能的空间。在需要隐私和封闭空间的地方
在需要隐私和封闭空间的地方,房间被放置在天花板高度较低的空间之间,而多用途和休息区
而多功能区和休息区则可以充分利用较高的天花板空间的好处。空调设备被仔细地放置在最有效的位置上,以避免任何干扰。
摆放在最有效的位置,避免对空间的开放性产生任何干扰。带有通风装置的内置家具
栅栏的内置家具被精心设计,以隐藏空调机组,达到美观的效果,并允许方便的
维护。
On the interior, the 2nd - 5th floor provides flexible open-plan spaces for various usages. The spaces support
diverse activities to suit the need of a modern working environment where the need for individual desks no
longer dictates the whole floor. Multi-purpose space can accommodate workshops, events, and changes in
the future. Apart from the flexibility, the key architectural element of the office space is the double-height
ceiling. Sacrificing half of the floor area on the 3rd and 5th floors, the high ceiling creates a bright and airy
atmosphere, taking full advantage of natural light. The dynamics between low and high ceiling heights offer
a pleasant change of scale as well as spaces for different functions. Where privacy and enclosed space are
required, rooms are placed between spaces with lower ceiling height, while multi-purpose and lounge areas
can take the full benefit of the higher ceiling spaces. Air-conditioning units are carefully placed in the most
effective location, avoiding any interruption to the openness of the space. Built-in furniture with a ventilation
grille was carefully crafted to conceal the AC units to achieve aesthetic quality and allow convenient
maintenance.



在外部,金属边框几乎包住了建筑外墙的所有区域,特别是在服务核心区周围。
服务核心。这不仅保持了室内温度的平衡,而且还提供了美观的触感。
经得起天气的考验,并且需要最少的维护。立缝的表面质量和垂直脊线
竖缝的表面质量和垂直脊创造出的图案与建筑的其他两个外部元素结合在一起。在
东侧,U型玻璃通道模糊了附近公寓楼的不受欢迎的景色,同时允许自然光进入建筑。
光线进入建筑。在西侧,不锈钢网隔断了阳光直射,并提供了一个愉快的外部视野。
愉快的外部视野。
Externally, metal sidings wrap the building on almost all areas of the exterior wall, especially around the
service core. Not only keeps the inside temperature balance, but also provides aesthetic touch which
withstands the weather and requires minimum maintenance. The surface quality and vertical ridges of the
standing seams create patterns that come together with the other two exterior elements of the building. On
the east side, U-Glass channels blurred off undesired views of nearby apartment blocks while allowing natural
light into the building. On the west side, stainless steel mesh screens off direct sunlight and provide a
pleasant view of the outside.









Architects: Skarn Chaiyawat
Area : 1100 m²
Year : 2022
Photographs :DOF Sky|Ground
Manufacturers : Lamberts, Alumet, COTTO, Lysaught, TGSG
Lead Architects : Skarn Chaiyawat, Krit Chatikavanij
Architects : Skarn Chaiyawat, Krit Chatikavanij, Supakorn Chantakitwattana
Structure Engineer : Jedsada Ard-ong
Mep Engineer : Ruttavee Tangmanyutitham, Termsak Asaiboon, Jaturong Meewong
City : Bangkok
Country : Thailand