该项目是一个建在河内黄梅的6层服务式公寓项目。延伸的外墙是一个由绿色和木质阳台组成的系统,在外部和内部之间创造了一个传统的分隔,放在一个裸露的混凝土基座上。
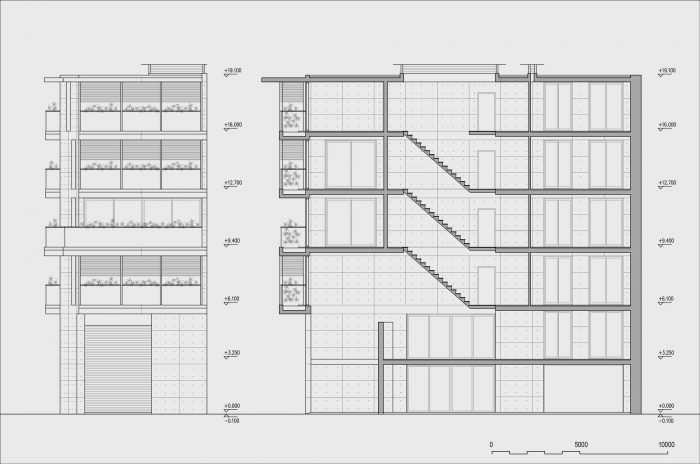
The project is a 6-storey serviced apartment project built in Hoang Mai - Hanoi. The extended façade is a system of green and wooden balconies, creating a conventional separation between the outside and the inside, placed on a base block with bare concrete.




在接待大厅,我们创造了一个橡木胶合板楼梯,它可以旋转45度上到上层,这是一个拥有天然橡木地板的咖啡馆空间。在一个人口相当密集的地区的背景下,在上层生活空间外的立面上,有一个大的玻璃门系统和一排排绿色的树木延伸,这个建筑将带来和平和轻松的感觉。为里面的居民承担和放松,他们将有一个非常宁静的地方可以返回。
In the reception hall, we created an Oak plywood staircase that rotates 45 degrees to go up to the upper floor, which is a cafe space with natural oak floors. In the context of a fairly densely populated area, with a system of large glass doors and rows of green trees stretching all over the façade outside the living spaces of the upper floors, the building will bring peace and a sense of ease. Bear and relax for the residents inside, they will have a very peaceful place to return to.




每层楼的面积为160平方米,我们交织着一室一厅和两室一厅的公寓组合,所有的公寓都铺设了木质地板和Veneer木质家具,结合了现代设计的细微差别,温和而优雅。
With an area of 160m2 on each floor, we interweave a combination of one-bedroom and two-bedroom apartments, all of which are tiled with Wood floors and Veneer wood furniture, combined with a contemporary design with nuances gentle, and elegant.

由于该建筑位于潮湿的季风性热带气候中,为了在夏天给房子降温,木质百叶窗和树木,除了给每个公寓的空间贡献美感外,还将其基本工作是减少阳光直射大玻璃板和冷却室内空间。屋顶被设计成了一个额外的绝缘层。这是一层网状物,石头铺在上面,与混凝土天花板形成一个缝隙,使热量在太阳下山后迅速释放。
Because the building is located in a humid monsoon tropical climate, in order to cool the house in the summer, the wooden louvers and trees, in addition to contributing beauty to the space of each apartment, will also work its basic is to reduce direct sunlight on large glass panels and cool interior space. The roof has been designed with an extra layer of insulation. It's a layer of mesh and stone is spread over it, creating a gap with the concrete ceiling, allowing heat to be released quickly when the sun goes down.








Architects: Nguyen Thanh Trung Architects
Area : 960 m²
Year : 2022
Photographs :Nguyen Thanh Trung
Manufacturers : AutoDesk, Eidai wood flooring, Son Ha
Lead Architect : Nguyen Thanh Trung
Design Team : Doan Thi Thu Trang, Nguyen Thanh Trung
Engineering : Doan Thi Thu Trang
Landscape : Doan Thi Thu Trang
Country : Vietnam