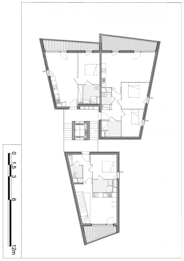
在一个狭小的地块上(1190平方米),有一个非常有限的几何形状,以及由于汽车和火车基础设施造成的强烈的噪音污染,13个住房单元和地下室停车场的建设是由三个四层的集体住宅楼组成,建在一个共同的地下。该项目旨在将场地周围不同尺度的建筑联系起来。
On a confined plot (1190 square meters) with a very constrained geometry and a strong noise pollution due to car and train infrastructures, the construction of 13 housing units and parking in basement is composed of three collective housing blocks of four levels built on a common underground. The project aims to create a connection between the different scales surrounding the site.





在俯视图上,每栋建筑的路权与场地上游的个人住房相似,而在立面视图上,体量的高度和城市形态则参考了主要位于马蒂斯城市公路南侧的建筑。
On the top view, the right-of-way of each building is similar to that of individual housing upstream of the site, while on the elevation view, the height and the urban form of the volumes are refering to buildings mainly located on the south of Mathis urban highway.



由于基础设施的噪音和污染扰民,本项目建议在南北两侧采用低通透性的外立面,并通过冬季花园主要向东西两侧的观景台开放。
Because of noise and pollution nuisances of infrastructures, the project proposes facades of low-permeability on the north and south sides and opened largely onto the viewpoints on the east and west sides through winter gardens.














































建筑师:Comte & Vollenweider
面积 : 748 m²
年份:2014年
摄影:Milèle Servelle
项目经理团队:COMTE & VOLLENWEIDER, GLI
能源性能 : BBC RT 2012 - CERQUAL LABEL H & E PROFIL A
城市 : 尼斯
国家:法国
Architects: Comte & Vollenweider
Area: 748 m²
Year: 2014
Photographs: Milèle Servelle
Project Manager Team:COMTE & VOLLENWEIDER, GLI
Energy Performance:BBC RT 2012 - CERQUAL LABEL H & E PROFIL A
City:Nice
Country:France