自从Béres建筑事务所设计了其第一个已实现的项目--位于匈牙利Kőszeg的Hideg房屋以来,仅仅过去了几年的时间。客户Attila Hideg最近发现了另一处有趣的房产,他打算在中世纪的背景下创造一些不寻常的东西。正如他所解释的:"这栋有近400年历史的建筑中的公寓需要进行彻底的翻新,因为它的大部分价值在20世纪80年代的最后一次重建工程中被损坏或隐藏。我们必须实际上回到过去,回忆并保存房子的价值。
Only a few years have passed by since Béres Architects designed its first realized projekt, the Hideg house in Kőszeg, Hungary. The client, Attila Hideg recently found another interesting property where he intended to create something unusual in a medieval context. As he explains „The apartment in the nearly 400-year-old building needed a thorough renovation after most of its values were damaged or hidden during the last reconstruction works in the 1980's. We had to virtually step back in time to recall and save the values of the house”




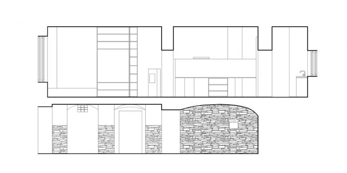
Kőszeg的中世纪老城是独一无二的,以其整体性和迷人的气氛而闻名。Jurisic家族的城堡和防御工事有着极其有趣的历史。最令人难忘的日期是1532年,土耳其军队袭击了该镇。我们找到了战后几年的最新资料。这座房子就建在护城河的外墙之上。这个结构的一部分仍然可见,并暴露在建筑的外部。一个小酒窖和上层的房间是在1684年之前的某个时候添加到房子里的。在18世纪,Niczky家族买下了这处房产,并将面向城堡的小公寓出租给旅行艺术家和商人。
The medieval oldtown of Kőszeg is unique and famous for its intergrity and charming atmosphere. The castle and fortification of the Jurisic family has an extremely interesting history. The most memorable date is 1532 when the Turkish army attacked the town. We found the latest information on the property from the years right after the battle. The house had been built right on top of the outer wall of the moat. Parts of this structure is still visible and exposed on the exterior of the building. A small wine cellar and the rooms of the upper floor were added to the house some time before 1684. In the 18th century the Niczky family bought the property and rented out the small apartment facing the castle for travelling artist and merchants.

在装修公寓时,主要目标是将该单元再次改装为客房。"我们打算远离常规公寓计划的僵化,为了重新创造酒店套房或招待所的轻盈和优雅,我们设计了一个相对开放的计划。通过使用简单的解决方案,我们旨在创造干净和有价值的空间,反映和突出背景的历史。"
At the renovation of the apartment the main goal was to convert the unit into a guest house again. „We intended to stay away from the rigidity of regular apartment plans and to re-create the lightness and elegance of a hotel suite or a guest house we designed a relatively open plan. By using simple solutions we aimed to create clean and worthy spaces that reflect and highlight the history of the context.”

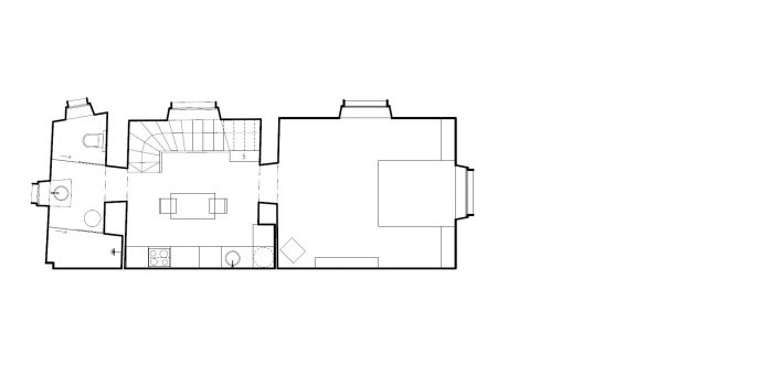
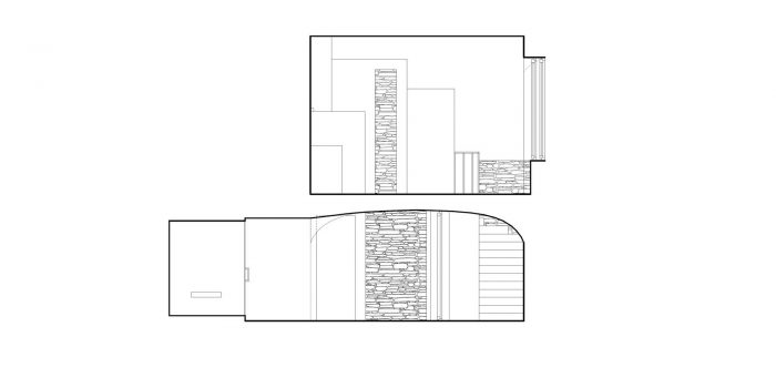
公寓内的空间安排有些不同寻常。地下室的大部分被开放给小的私人花园。它作为内部和外部之间的过滤空间,结合了四季的各种功能,如酒窖、休闲空间、桑拿和存储。游客一到这里,就会立即感受到古老的墙壁和厚重的拱顶,讲述着房子和城堡区的历史故事。
The arrangement of spaces within the apartment is somewhat unusual. Most of the basement is opened to the small private garden. It acts as a filter space between inside and outside combining various functions for all four seasons such as a wine cellar, relaxation space, sauna and storage. At arrival, visitors immediately experience the ancient walls and the heavy vaults that tell stories about the history of the house and the castle district.

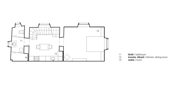
上层由3个主要空间组成。在外墙的框架下,公寓被分为客厅-卧室区、厨房-餐厅区和一个浴室。没有隔断墙或室内门来分隔这些空间。房间之间甚至外部的视觉联系创造了某种古典的优雅。
The upper floor consists of 3 main spaces. Framed by the given envelope of the exterior walls, the apartment is divided into a living room-bedroom area, a kitchen-dining area and a bathroom. There are no partition walls or interior doors to separate these spaces. The visual links between the rooms and even the exterior create some sort of classical elegance.

尽管公寓位于建筑的北端,但它有三个不同方向的窗户。周围的国家纪念碑、教堂和防御墙以意想不到的有趣方式将光线反射到房间里。
Even though the apartment is situated on the north end of the building, it has windows to three different directions. The surrounding national monuments, churches and fortification walls reflect light into the rooms in unexpected and interesting ways.

"空间气候的本质是由几个世纪以来修复的石墙赋予的。其他一切都是次要的,有助于突出真正的价值,"建筑师Attila Béres解释了建筑概念背后的想法。墙壁随着它们的上升而变得年轻。每一层都有一个关于过去的故事--土耳其的围困、大火和复兴时期。它们带有工艺质量甚至是必要性的标记。
„The essence of the climate of the space is given by the centuries-old restored stone walls. Everything else is secondary and helps to highlight the real values,” explains architect Attila Béres the thoughts behind the architectural concept. The walls become younger as they rise. Every layer has a story about the past - the Turkish siege, the great fire and periods of resurgence. They carry marks of craftmanship quality or even necessity.

大多数新的表面是白色的,适度的和简单的。地板上涂油的落叶松木板又作为内置家具的装饰件出现。"我们用小而简单的标志和手势来连接空间的元素。我们在新旧部分之间定义了清晰但不苛刻的界限。沉默的色调,"阿提拉-贝雷斯说。
Most of the new surfaces are white, moderate and simple. The oiled larch boards of the flooring return as decorative parts of the built-in furniture. „We used small and simple signs and gestures to link the elements of the space. We defined clear but not harsh boundaries between old and new parts. Silent tones,” says Attila Béres.

建筑师将这一过程描述为令人振奋和特别的过程。"我们知道,建筑的价值隐藏在灰泥层后面。我们和Attila Hideg一起,在设计和施工的各个阶段不断地更新和重新评估我们的想法,以获得最佳效果。几乎不可能将这种方法与新建房屋的设计演变进行比较。对我们来说,这是一个棘手而有趣的领域,可以测试我们在建筑舒适区之外的表现"。
The architect describes the process as uplifting and special. „We knew that the worth of the building is hiding behind the layers of plaster. Together with Attila Hideg we kept updating and re-evaluating our thoughts along the phases of the design and construction to get the best result. It is almost impossible to compare this method with the evolution of the design of a newbuilt house. A tricky and interesting field for us to test how we behave outside our architectural comfort zone.”












































Architects: Béres Architects
Area: 75 m²
Year: 2017
Photographs: Tamás Bujnovszky
Manufacturers: Baumit, Siemens, DPS, Edilkamin, Falco
Lead Architects: Attila Béres, Jusztina Balázs
Client And Builder:Attila Hideg
City:Kőszeg
Country:Hungary