该项目旨在实现卓越的环境。尼基-德-圣法勒中学的设计采用了被动式建筑方法(Passivhaus),采用了木质框架和保温稻草。它是大东地区第一所正能量学院,也是法国第一所用木材和稻草制成的R+3的ERP。简洁--在材料的选择或程序的紧凑和功能的分布上打开了自由:体积,灵活和可扩展,适应了中学的内部生活的不断更新"。
The project aims for environmental excellence. Niki de Saint Phalle middle school is designed with a passive approach in the construction (Passivhaus), with its wooden frame and insulation straw. It is the first positive energy college in the Region Grand Est and the first ERP in R+3 made of wood and straw in France. The simplicity - in the choice of materials or the compact and functional distribution of the program opens up to freedom: the volumes, flexible and scalable, adapt to the always renewed interior life of a middle school.’’




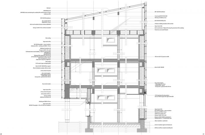
一个木制建筑。如果说木材让森林得以生存并与温室效应作斗争,那么它就是一种温暖、轻盈、坚实的材料,具有很强的吸热能力。木材的使用和生物来源的绝缘材料(稻草、木纤维和纤维素絮状物)的使用大大减少了项目的碳影响,同时提高了其能源效率。此外,由于许多元素都是在车间里预制和组装的,所以 "外壳 "地段的重量也大大减少。
A wooden architecture. If wood allows forests to live and fight against the greenhouse effect, it is a warm, light, and solid material, with high hygrothermal power. The use of wood and the use of bio-sourced insulation (straw, wood fiber, and cellulose wadding) considerably reduce the carbon impact of the project, while improving its energy efficiency. In addition, the weight of the ‘shell’ lot has been greatly reduced since many elements have been prefabricated and assembled in the workshop.

还有稻草。在其招标中,订约当局要求实施生物来源的材料,而没有指定这些材料。在洛林地区旅行时,MU建筑公司确定了那些生产用于建筑的稻草的行为者。当地生产者的机器生产出36厘米厚的草包,这种慷慨的尺寸超出了必要的范围。这些比例要求开发一个完全适应的木结构。通过这个项目,木匠们能够在使用稻草方面进行培训,稻草与棉絮和纤维素纤维相结合。
And straw. In its call for tenders, the contracting authority requested the implementation of bio-sourced materials without these being specified. Traveling through Lorraine, MU Architecture identified actors whose production of straw is intended for construction. Local producers’ machines produce bales 36 centimeters thick, a generous size that goes beyond what is necessary. These proportions required the development of a perfectly adapted wooden structure. Through this project, the carpenters were able to train in the use of straw, which was combined with wadding and cellulose fiber.


为生态过渡服务的设备。风扇和绝热发电厂通过在一年中保持恒定的温度来确保学院内的热舒适。整体的设计也使其不需要供暖和制冷,并且能源需求低于15千瓦时/平方米("法国几乎一半的建筑都是在1975年以前建造的。他们的平均消耗量约为240千瓦时/平方米/年,而目前的要求约为50千瓦时/平方米/年"。) 从这个意义上说,厚墙已经被设计出来;它们的厚度为60厘米,其中36个是用稻草填充的。所有的技术细节,特别是结构和围护结构之间的连接处,都经过了完美的研究,以获得完全的气密性,从而满足Passivhaus标签。
Equipment at the service of the ecological transition. Fans and an adiabatic power plant ensure thermal comfort within the college by maintaining a constant temperature throughout the year. The whole has also been designed so that there is no need for heating and cooling and that energy needs are less than 15 kWhEP/m² (“Almost half of the buildings in France were built before 1975. Their average consumption is around 240 kWh primary energy/m²/year, whereas current requirements are around 50 kWh/m²/year” Source Ministry for Ecological Transition). Thick walls have, in this sense, been designed; they are 60 centimeters thick, 36 of which are filled with straw. All the technical details, in particular the junctions between the structure and the envelope, have been perfectly studied to obtain complete airtightness and thus meet the Passivhaus label.


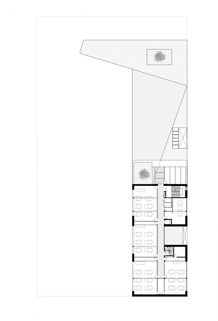
空间的可读性。尼基-德-圣法尔学院的规划设计使每个人都能轻松找到自己的路。对空间的直接理解和它们的衔接是该项目的一个基本原则。从入口处,一个宽阔的视角通向院子和庭院。大的入口大厅也慷慨地开放给上面两层。使其充满活力的楼梯为循环提供了舞台。该计划的这种可读性是在
The readability of spaces. The plan of the Niki de Saint Phalle College has been designed so that everyone can find their way around easily. The immediate understanding of the spaces and their articulation is a founding principle of the project. From the entrance, a wide perspective leads to the courtyard and the courtyard. The large entrance hall is also generously open to the two upper levels. The staircase that animates it stages the circulations. This readability of the plan is underlined by the treatment of the whole. The wooden soffits of the hall are turned over in particular on the walls inside. This materiality contributes to easy reading of space. The circulations are also dilated to offer more comfort but also free areas, open to any type of use.






















Architects: MU Architecture
Area: 4890 m²
Year: 2022
Photographs:11H45
Manufacturers: HASSLACHER NORICA TIMBER, Egoin, Interface, Saint-Gobain, AMSTRONG, Arcelor Mittal, Birkenmeier, Climacelle, Deya, Escao, France Douglas, Helios, Hunsinger, Knauf, Krono France, Piveteau bois, Roma, SIGA, Sapa, Steicoflex
Lead Architects: Ludovic MALBET
Structural Engineer: SCOP Gaujard Technologie
Landscape Architect: Atelier Moabi
Project Leader: Frederic Gay, Laura Houssin
Client: Département de Meurthe-et-Moselle
City: Nancy
Country: France