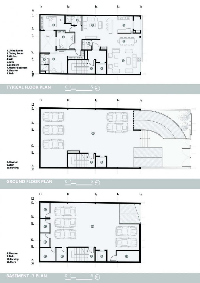
当雇主在2015年5月开始与建筑小组讨论该项目时,他打算设计一栋建筑,细节如下:一栋七层的钢结构建筑,包括地下一层的停车场、储藏室、锅炉房;底层分配给停车场;以及其他五层,每层有一个面积为165平方米的公寓,有三个卧室,总建筑面积为1365平方米,外部景观符合必要标准,以提高生活空间的质量,分配有限的预算,加快项目进度,尽快出售公寓。
When the employer began discussions about the project with the architectural group in May 2015, he intended to have a building designed with details as follows: a seven-storey building with steel structure consisting of one underground floor for parking lots, storerooms, boiler room; the ground floor allocated to parking lots; as well as five other floors with one apartment of 165 sqm in area and with three bedrooms on each floor, creating a total built area of 1365 m2 with an external view in compliance with necessary standards to improve qualities of living spaces, allocating a limited budget and accelerating the project to sell the apartments as soon as possible.



首先,我们开始设计计划,考虑到正在建设中的预设钢结构,以及保护通道箱和楼层高度的问题。接下来,由于雇主分配的预算,我们计划将分体式设备作为冷却设施,并为每间公寓的独立使用提供私人的加热系统包。
At first we embarked on designing plans taking into consideration the preset steel structure, which was in process of construction, and protection of the access box and heights of floors. Next, because of the budget allocated by the employer, we planned split units as chilling facilities and private packages of heating systems for independent use of every apartment.

最后,由于所考虑的建筑三面受阻,建筑只能从南面利用阳光,而且雇主决定尽快出售公寓,所以我们不仅要注意规划和空间关系,而且要创造一个杰出的美丽的外部景观。
Finally, as the considered building is blocked on three sides and the building can use the sun light only from the south side, and as the employer decided to sell the apartments at soonest possible time, not only we were to pay attention to the planning and spatial relationships, but also to create a distinguished beautiful external view.


通过对宝贵的伊朗建筑的考察,我们提出了如下的设计目标。
使用传统的模式来创造一个符合当今社会需求的建筑;注意简单性和与周围纹理的同质性;使用伊朗建筑的功能元素,如 "SHOBAK "和 "OROSI "来调节光线和创造家中的隐私;注意从内部适当的外部景观。
With a glance at the invaluable Iranian architecture, we presented the design with objectives as follows:
To use traditional patterns to create an architecture consistent with needs of the today’s community; to pay attention to simplicity and homogeneity with the surrounding texture; to use functional elements of Iranian architecture, such as “SHOBAK” and “OROSI” to adjust light and to create privacy at home; and to pay attention to appropriate outside views from inside.

在总结了上述情况后,设计有三个步骤。(1)让光线进入公寓;(2)创造隐私;(3)从内部创造适当的外部景观。因此,每层楼都使用了一个透明模块和一个格子模块,以调整进入公寓的光线渗透率。另一方面,我们考虑了进入公寓的阳光穿透率,调整光线,创造遮阳,并通过使用铝制格子板和数控切割的纹理来减少白天的阳光,并通过调整遮阳为居民创造愉快的变化空间,使内部区域多样化。
After summing up of the above, the design was made with three steps: (1) To allow light to go to the apartments; (2) To create privacy; and (3) To create appropriate outside views from inside. Therefore, a transparent module and a latticed module were used on every floor to adjust the rate of light penetration into the apartments. On the other hand we considered penetration rate of sunlight into the apartments, adjusted light, created shades, and diversified internal areas by using aluminum latticed plates together with a texture cut by CNC to reduce sunlight during the day and to create pleasant varied spaces for inhabitants with adjustments of shades.

最后,我们注意到院子里现有的坡道,作为停车场进入地面和地下楼层,由于没有足够的绿色空间,我们试图增加人均绿色空间。因此,我们决定在楼层上分布花箱,不仅是为了提供最少的绿色空间,也是为了创造一个符合城市纹理的相对漂亮的空间。因此,我们试图将外部装修的某些部分带回来,以便为小树创造一个地方,为公寓提供绿色空间。这一方面有助于为路人创造更美好的景色,另一方面也为居民提供了在自己家里创造的绿色空间。
Finally, we paid attention to the ramps existing in the courtyard to access the ground and underground floors as parking lots and, as there was no sufficient green space, we tried to increase the per capita green space. Therefore, we decided to distribute flower boxes on floors not only to provide the least green space but also to create a relatively nice space in accordance with the urban texture. Therefore, we tried to bring back some part of the external finishing in order to create a place for a small tree to provide the apartments with green spaces. This contributed to create a nicer view for passers-by, on one hand, and to provide the inhabitants with the green space created in their own homes.

产品说明。
使用传统的模式来创造符合当今社会需求的建筑;注意简单性和与周围肌理的同质性;使用伊朗建筑的功能元素,如 "SHOBAK "和 "OROSI "来调整光线和创造家庭的隐私;注意从内部适当的外部景观。
Product Description:
To use traditional patterns to create an architecture consistent with needs of the today’s community; to pay attention to simplicity and homogeneity with the surrounding texture; to use functional elements of Iranian architecture, such as “SHOBAK” and “OROSI” to adjust light and to create privacy at home; and to pay attention to appropriate outside views from inside.










Architects: Alidoost and Partners
Area : 2000 m²
Year : 2016
Photographs :Parham Taghioff
Manufacturers : Arian Choob, Homareshtan
Assistant Technical Architect : Amir Niknafs
Team : Mika Group, Hamideh Raoufzadeh, Mehdi Beheshti, Behnaz Behbahani
Client : Mika Group
Architects In Charge : Shahab Alidoost, Sona Eftekharazam
City : Tehran
Country : Iran