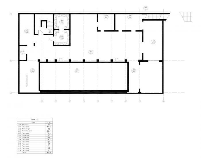
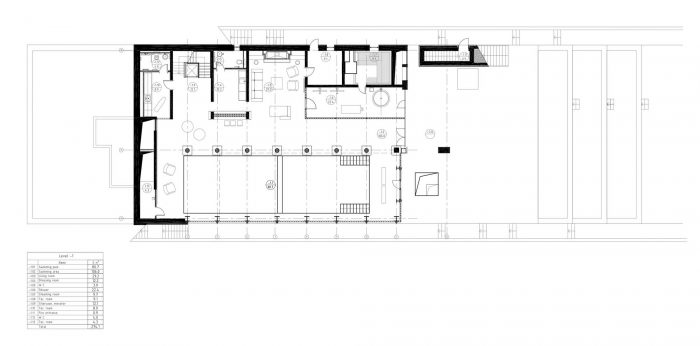
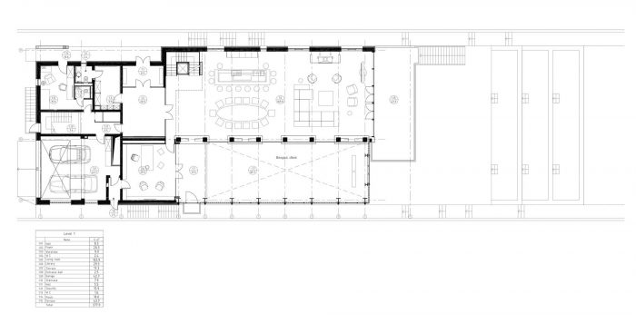
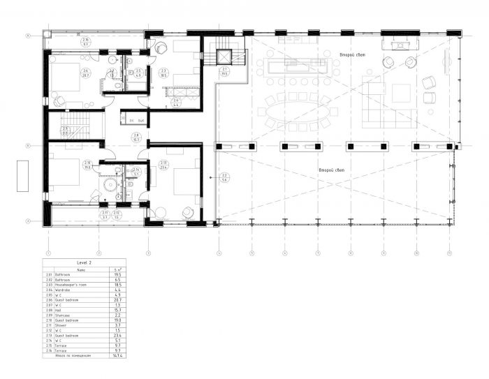
我们工作室的目标是在一个高尔夫俱乐部的领土上创建一个私人酒店的内部。这个项目从一开始就引起了我们的兴趣,但在参观了施工现场后,我们感到非常高兴! 我们必须处理一个辉煌的空间,看起来像一个 "埋在森林中心 "的工业建筑。该建筑被明确划分为卧室区和宽阔的娱乐空间。
The aim of our studio was to create the interior of a private hotel on the territory of a golf club. The project was of interest to us from the very beginning, but after visiting the construction site, we were absolutely delighted! We had to deal with a brilliant space that looked like an industrial building "buried in the heart of a forest". The building was clearly divided into a bedroom area and wide-open space for entertainment.





来自客户的设计规范说,该建筑应该给客人带来惊喜,提供娱乐,并充满各种技巧性的特技和幻想。荷兰的艺术酒店,如鹿特丹的纽约酒店和阿姆斯特丹的温斯顿酒店被指出作为参考点。在保留了工业背景后,我们将 "昂贵 "的表面和材料引入室内装饰。其结果是粗犷的材料、现浇混凝土、粗糙的地板、烧制风格的特征以及氧化铜、大理石和威尼斯铸造玻璃的表面的平衡组合。
The design specifications from the clients said that the building should surprise guests, entertain and be filled with various tricks stunts and illusions. Dutch art hotels such as the New York Hotel in Rotterdam and the Winston in Amsterdam were indicated as points of reference. After preserving the industrial background, we brought in “expensive” surfaces and materials for the interior trim. The result is a balanced mix of rugged materials, cast-in-place concrete, rough floorboards, burnished-style features and surfaces made of oxidized copper, marble and Venetian cast glass.

我们需要更详细地谈谈用穆拉诺玻璃板面对柱子的情况,因为这显然突出了泳池空间和公共区域。一块古代手机大小的铸造玻璃在车间的桌子上躺了很多年;它非常漂亮,我们在讨论我们在斯特罗加诺夫卡(莫斯科设计和应用艺术学院)的玻璃车间的一些项目时得到了它。
We need to talk in more detail about facing the pillars with Murano glass slabs since this clearly accentuates the pool space and the common area. A piece of cast glass the size of an ancient mobile phone lay for many years on a table in the workshop; it is very beautiful and we got hold of it when discussing some project of ours in the glass workshops at the Stroganovka (Moscow Academy of Design and Applied Arts).



从那时起,在室内使用铸造玻璃板的想法就一直伴随着我们,现在这个时刻已经到来了!"。使用玻璃的草图立即得到了批准,然后最困难的部分开始了--寻找一个承包商。一家来自穆拉诺岛的公司和一些捷克玻璃工匠参加了制造招标,但我们选择了俄罗斯的Nickel Collective公司,它开发了最清晰的玻璃固定和保险系统。
The idea of using cast-glass slabs in the interior has stayed with us since that time, and now the moment has come! Sketches using glass were instantly approved, and then the most difficult part began - looking for a contractor. A company from the island of Murano and some Czech glassblowers took part in the manufacturing tender, but our choice fell on the Russian company Nickel Collective, which developed the clearest system for fastening and insuring the glass.





































Architects: Nefa Architects
Area: 1600 m²
Year: 2019
Photographs: Ilya Ivanov
Manufacturers: AutoDesk, Fritz Hansen, B&B Italia, Living Divani, Modular Lighting Instruments, Viabizzuno, Vitra, Trimble, Zava
Lead Architects: Dmitry Ovcharov, Elena Potemkina
Engineering: Lightning DK project
Design Team:Margarita Kornienko, Sergey Kurepin, Viktoriya Nagurnaya, Daria Turkina
Collaborators:Nickel Collective - glass columns
City:Pirogovo
Country:Russia