诺曼-贾菲的格鲁斯住宅于1978年完工,是他自称的 "宙斯风格 "的代表作。参照神话中的天神,贾菲从东长岛的天空、云彩和海岸沙丘中找到了正式的灵感。
Completed in 1978, Norman Jaffe's Gruss House is a representative example of his self-described "Zeus style". Referencing the mythological god of the sky, Jaffe found formal inspiration in the sky, clouds, and coastal dunes of the Eastern Long Island.





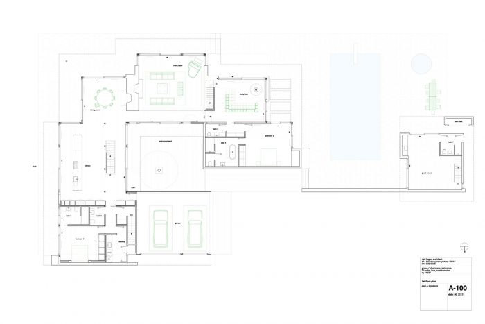
这座房子有大胆的瓦片屋顶和独特的田纳西州砂岩包墙,经历了几次不幸的内部装修。再加上其过时的规划和尴尬的流通,房子通过拆除其两个巨大的砖石壁炉中的一个而得到改变。
With its bold shingle roof and distinctive Tennessee sandstone-clad walls, the house had undergone several unfortunate interior renovations. Together with its outdated planning and awkward circulation, the house was transformed by the removal of one of its two enormous masonry fireplaces.



这些改变使得内部的重组没有改变外部。面向入口的无窗立面被保留了下来,而房子面向大海的一面则通过新的大型不间断的玻璃窗得到了改善。随着这种新发现的开放性,入口处的院子变得更加重要,并通过重新铺设木质装饰板与内部更好地联系起来。
These changes allowed for a reorganization of the interior without altering the exterior. The windowless façade facing the entrance was preserved while the ocean-facing side of the house was improved with new large uninterrupted glazing. With this newfound openness, the entry courtyard took on improved importance and was better linked to the interior by being resurfaced with wood decking.


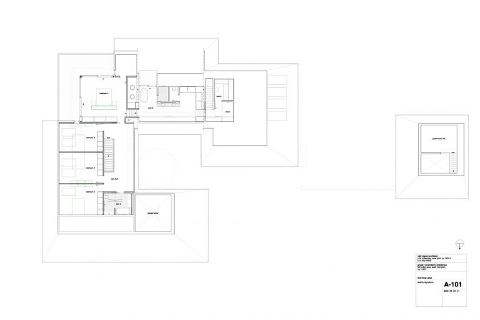
新的窗户,一个岛式厨房,以及橡木包覆的墙壁和地板完成了室内的装修。随着壁炉和额外楼梯的拆除,巨大屋顶下的二楼空间被改变了。增加了三间卧室和一间浴室,以及一个带有蒸汽房和桑拿房的大型主浴室。游泳池的房子,周围的石墙,新的外部石板铺成的区域,以及新的花园设计完成了翻新。
New windows, an island kitchen, and oak-clad walls and floors completed the interior. With the removal of the fireplace and additional stairs, the second-floor space below the enormous roof was transformed. Three bedrooms and a bathroom were added as well as an extensive and master bathroom with a steam room and sauna. The pool house, surrounding stone-clad walls, new exterior stone-paved areas, and new garden design completed the renovation.
















Architects: Neil Logan Architect
Area : 6250 m²
Year : 2020
Photographs :Christopher Sturman
Landscape Architect : Farm Landscape Design
General Contractor : Trunzo Building Contractors
Architect : Neil Logan
Project Architect : Max Golden
Project Assistant & Model : Helga Hansen
City : East Hampton
Country : United States