NORTH不是一家广告公司。他们是一个由设计师、作家、创意总监、电影和音乐制作人组成的团队,由一支远征军在太平洋西北部登陆。他们要求Skylab建筑公司帮助他们创造一个不是办公室的空间。
NORTH is not an advertising agency. They are a team of designers, writers, creative directors, film, and music makers joined by an expeditionary force landing them in the Pacific Northwest. They asked Skylab Architecture to help them to create a space that was not an office.


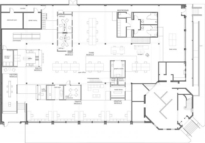
根据极地研究探险队到边疆的想法,设计了一个10,000平方英尺的基地营。该设计响应了替代性的社会互动--烹饪、饮食、休息和游戏,从而激发了创造性的工作。工作台被模块化的结构、家具和设备所取代。协作的基础是便携性和按需集群,脱离了传统的静态办公室。
Based on the idea of a polar research expedition to the frontier, a 10,000 square foot basecamp was designed. The design responds to alternative social interactions-cooking, eating, lounging, and gaming-that inspire creative work. Workstations are replaced with modular structures, furniture and equipment defined around activity. Collaboration is based on portability and a cluster-on-demand breakaway from the traditional static office.

基地营的帐篷,一个白色的现有建筑外壳,没有被触动。内部墙壁和结构来到边缘,但没有固定在外壳上。一个连接点提供了光缆和公共设施功能。该建筑是一家印刷企业的旧址,被列入国家历史遗迹名录。
The basecamp tent, a white existing building shell, is left untouched. Interior walls and structures come to the edge, but are not fixed to the shell. A single connection point provides fiber cable and utility function. The building, a former home to a printing business, is on the National Register of Historic Places.

松木镶板、原钢和地板上的地毯瓷砖壁画是主要的内部特征。就像一个收集可以应对未知挑战的设备的探险队一样,可移动办公室不拘一格的材料的选择是为了能够解决设计问题的不同方案。
Pine paneling, raw steel and a carpet tile mural on the floor are the predominant interior features. Like an expedition that collects equipment that can handle the unknown challenge, the eclectic materiality of the movable office is selected for the ability to tackle different solutions to the design problem.

一个悬臂式的思考模块被垂直地堆放在空间的中心。它通过建筑中的夹层窗户揭示了新的衔接西山的景色。类似于NORTH的创意过程,揭示了客户品牌的一些可能一直存在但尚未沟通的东西,这个观点需要提升,但一直存在。碎花窗帘和迷彩肥仔豆袋让人可以 "围着篝火 "进行思考。
A cantilevered think module is vertically stacked in the center of the space. It reveals a newly articulated view of the West Hills through clerestory windows in the building. Similar to the NORTH creative process that reveals something about a client's brand that may have always been there but not yet communicated, this view required elevation but was always there. Floral drapery and camouflage Fatboy beanbags allow for reflecting ‘around a campfire'.

一系列穿插的玻璃和金属板定义了编辑模块,两个没有门的隔音室。烟雾缭绕的毛绒地毯和镜子般的编辑台使编辑成为一个不浪费碳的目的地。它既是私人的又是透明的。
A series of interspersed glass and metal panels define the edit module, two soundproof rooms without doors. Smoke plush carpeting and mirror-like edit stations make editing a destination without wasting carbon. It's dually private and transparent.

媒体模块采用了快速创意思维和交流的通用图标,是便利贴的黄色。一个商业级的厨房和邻近的用餐区,配有野餐桌、墙面壁画和地形地毯,重新定义了室内的户外。一个由烟墙和冰白色灯光组成的访客模块被策划为印刷品、声音和新媒体的灵感,促进了一个不断变化的创意论坛和与当地社区的联系。
Taking a universal icon for quick creative thought and communication, the media module is Post-it Note yellow. A commercial grade kitchen and adjacent dining area with picnic tables, wall mural, and topographic carpet tiles redefines out-of-doors inside. A visitor module of smoke walls and ice-white lighting is curated with print, sound, and new media inspirations, fostering an ever-changing creative forum and connection with the local community.

Architects: Skylab Architecture
Area : 929 m²
Year : 2007
City:Portland
Country:UNITED STATES