东北地区内部的社会住房的生产,几乎无一例外的都是
关于单层住宅的建设,有2个房间,一个浴室,一个卫生间。
小厨房和一个客厅(或更多)。本节目是如此复制,以至于
因为很多时候,它可能会抑制创业者创造替代方案。
知道了这一主题的反复出现,并被不同类型的产品的需求所说服,下一步就是试图说服施工方。这并不是一个困难的任务,因为在建筑事务所和建筑商之间有一种信任关系,可以提出产品和不同的模型,从这个市场提供的。
The production of Social Housing inside the Northeast, almost invariably, it is
about the construction of One-Story Houses, with 2 rooms, a single bathroom, a
kitchenette and one living room (or more). This program is so reproduced that
for many times it can inhibit the entrepreneurs from creating alternatives
typologies.Knowing about the recurrence of that theme and convinced by the need of different types of products, the next step was to try to convince the constructor. This was not a difficult task because there was a trusting relationship between the Architecture office and the constructor for the proposition of products and different models from the ones offered by this market.



将土地合二为一的想法得到了批准,增加了使用双胞胎Sobrados的单位数量,每个单位都有自己的街道通道。但它是必要的,公寓,一个公共区域:一个小广场,开放和公共的,被认为是一个休闲区的公寓成员,也是一个社会融合与邻里,让他们的邻居成为该地区的一部分,给它的生活和有效的使用,在一个地方,有一个缺乏共享空间。
The idea to join the lands into one, increasing the numbers of units using the twinned Sobrados, where each one has its access to the street, was approved. But it was necessary, to the condominium, a common area: a small square, open and public, was thought to be a recreation area for the condominium members and also a social integration with the neighborhood, allowing their neighbors to be part of that area, giving it life and effective use, in a place which has a lack of shared spaces.

广场将有一个由网格保护的空间,供孩子们玩游戏,另一个则是在树下休息。然而,来自市级许可和规划机关的一位值班经理--而非技术人员--拒绝了这一想法,他说。"市政府不想要这个广场"。就这样,给这个城市一个公共空间的想法被关闭了。
The square would have a space protected by grids, for the kids to play games and another one, to rest under the trees. However, a manager on duty from the Municipal Organ of Licensing and Planning – not a technician – rejected the idea by saying: “The city does not want this square”. And by that, the idea of giving this city a public space was shut down.

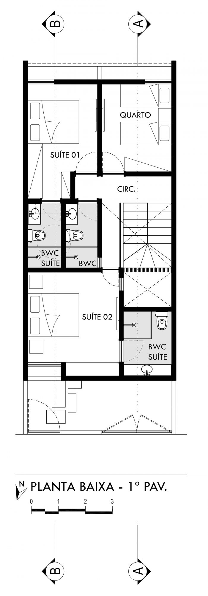
这些房子颠覆了传统的逻辑,房间通向后院,通向室内,通向亲近,而让房间与室外和街道相连。起居室得到了启迪,因为它们不仅连接到外部,还连接到后院,后院可以变成一个小兰花,一个花园或一个欢乐的区域,有一个烧烤架或一个小游泳池。社会区、服务区和私人区划分得很好,因为在底层,有房间、厨房和服务区,在较高的人行道上,有房间、社会卫生间和套房。
The houses subvert the traditional logic where the rooms leads to the backyard, to the inside and the intimacy, and leave it to the rooms to connect with the outside and the streets. The living rooms get enlighten because they are not only connected to the outside bu to the backyard, which can be transformed into a small orchid, a garden or a joyful area, with a grill or a small swimming pool. The social, service and private areas are well delimited because on the ground floor, there are rooms, kitchen and a service area and on the higher pavement, there are rooms, a social bathroom and a suite.



外立面采用了伯南布哥现代建筑学校的典型组件。Cobogó,一个中空的组件,允许永久的空气流通,并在楼梯上创造了一个不寻常的光影游戏。它可以用色彩打破单调和夸张的反复出现的被剥夺了自己身份的生活形象。扩大房子的可能性被提出来了,一个更舒适的套房走向街道的项目。而由于该计划的扩展,在购买行为上提供给客户,两个原有的浴室都是通风和照明的天顶开光。 这种实施将允许创建一个有盖的车库或与客厅的扩展,都高达3米的初始要求下降的限制。
市场动态,它的情绪和不断变化的政治和金融策略建议一些单位的变化,sobrados,最初被认为是地形单位,保持从原来的sobrado,作为房间,打开到外面和后院,例如,一些特点。总之,尽管试图通过颜色和网格区分,比通常的墙更高的 - 在一个地区,正在变得更强大的城堡,并期望改变的愿望被软化,现实表明,是很难期望的建设者保持项目的原始特征,因为他们寻找一个虚假的安全感。这些变化打破了房屋的单元感,使我们的街道更加不安全。
The facades incorporates a typical component from the Pernambuco Modern Architecture School: The Cobogó, a hollow component that allows permanent air circulation and creates an unusual game of lights and shadows on the stairs. It can play with colors breaking the monotony and the exaggerated recurrence of the image of living stripped of its own identity. The possibility of expanding the house was brought up with the project of a more comfortable suite heading to the street. And because of that planned expansion, offered to the client on the act of the buying, both original bathrooms are ventilated and illuminated by an zenith open lightning. This implementation is going to allow the creation of a covered garage or with the expansion of the living room, both up to the limit of the initial required decline of 3 meters.
The market dynamic, its mood and constant changings on the political and financial tacks suggested the change of some of the unit, the sobrados that were initially thought to the terrain units, keeping some of the characteristics from the original sobrado, as the rooms that open to the outside and to the backyard, for example. In conclusion, despite the attempts to distinguish through the colors and the grids, with higher walls than the usual ones – on an area that are becoming stronger as a citadel, and expecting the desire of change to be softened, reality shows that is very hard to expect the constructor to keep the original characteristics of the project, as they search for a false sense of security . These changes break the sense of unit of the houses making our streets even more unsafe.















建筑师:Jirau Arquitetura
面积:1275平方米
年份:2016年
摄影:Antonio Preggo
首席建筑师:Pablo Patriota, Bernardo Lopes e Mariana Caraciolo
补充项目(结构、基础、电气和水力):Sebastião Neto
建设:Construtora Vilar
城市 : Jardim Boa Vista
国家:巴西
Architects: Jirau Arquitetura
Area: 1275 m²
Year: 2016
Photographs: Antonio Preggo
Lead Architects: Pablo Patriota, Bernardo Lopes e Mariana Caraciolo
Complementary Projects (Structure, Foundations, Electrical And Hydraulic):Sebastião Neto
Construction:Construtora Vilar
City:Jardim Boa Vista
Country:Brazil