这是一个在综合医院前面的药店的新建筑。
This is a new construction for a pharmacy in front of a general hospital.



我们考虑到它本身的建筑如何能成为镇上的一个象征,但又不像其他药店用大而炫耀的图形招牌填满街道。
We considered how the architecture it self could become a symbol in the town, but unlike other pharmacies filling the streets with big, showy graphic signage.

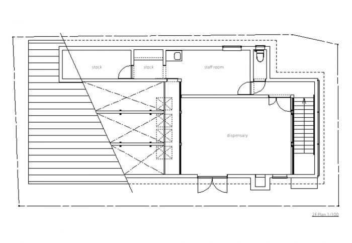
你从街上可以看到的一个单一的倾斜屋顶是由木材制成的,几年后它将完全被草覆盖。我们像周围的屋檐一样降低了屋檐的边缘,用带钢制斜杆的桁架使天花板从那里延续到二楼。当你进入药房时,你可以环顾四周,看到另一边的天空。
A single sloping roof you can see from the street is made of timber and it will be completely covered with grass in a few years. We lowered the edge of the eaves like the surrounding eaves and made the ceiling continue from there to the second floor with a truss with steel diagonal rods. You can look around to the sky on the other side when you enter the pharmacy.

我们认为屋顶背面温暖的木质天花板会轻轻地迎接前来取药的人们。
We think the warm timber ceiling on the back of the roof will gently greet the people coming in for medicine.

如果市民记住了这是 “木顶药房",对他们来说,这就成了药房的一道处女风景,我们就很高兴了。
We are happy if citizens remember this as ‘the Wood Roofed Pharmacy’ and for them this becomes a virgin landscape of pharmacy.








Architects: ninkipen!
Area : 172 m²
Year : 2013
Photographs :Hiroki Kawata
City:OGAKI
Country:Japan