当被要求为位于比利时布鲁塞尔历史悠久的Tour & Taxi建筑内的黑曜石画廊设计空间时,所面临的挑战是如何在两个同时举办的展览之间创造一种对话,同时保持各自的身份和与物理空间的关系。该建筑是一座19世纪的仓库,其建筑历史的存在感很强,我们选择了在原始空间中为展览提供场景化的机会,而不是将白色的空间作为空白页。
When asked to design the space for Obsidian Gallery, located within the historic Tour & Taxi building in Brussels, Belgium, the challenge became to create a dialogue between two exhibitions that would be hosted simultaneously, whilst keeping their own identity and relation to their physical space. The strong presence of the building, a 19th-century warehouse, and its architectural history was chosen to be respected by proposing scenographic opportunities for the exhibitions within the raw space, rather than a clean white space acting as a blank page.



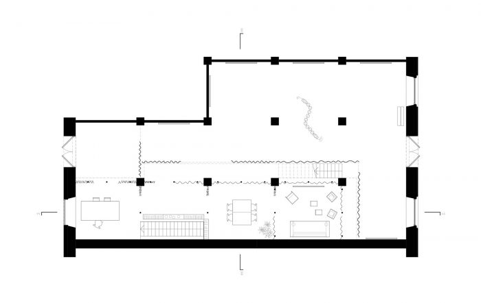
画廊的方案非常简单明了。两个展览空间,和 "办公 "空间。在某种程度上,我们很容易将其定义为两类:展览空间与办公空间。然而我们认为,每一个展览都要通过自己的场景复杂性来展现自己的特性。由于空间大而开放,这就产生了一个挑战,既要给两个展览空间足够的挪用,又不能忽视空间整体的统一性。位于夹层下的办公空间,是通过一组不锈钢脚手架结构创造的。
The gallery has a very straightforward program: Two exhibition spaces, and "office" spaces. In a way, it was easy to define it into two categories: exhibition space vs office space. Yet we believe that every exhibition has to show its own identity through its own scenographic complexity. Since the space was large and open, this created a challenge, to give both exhibition spaces enough appropriation, without ignoring the unity of the space as a whole. The office spaces, located under the mezzanine, were created through a set of stainless steel scaffolding structures.



这些结构撑起了窗帘,容纳了灯光,并通过悬挂系统承载了艺术作品。这些元素的重复产生了一系列连续的房间:一个办公室,一个画廊商店,一个会议室和一个客厅。为了界定和围合这些房间,我们使用了家用窗帘,同时使房间之间能够连续可见。通过这些窗帘,我们创造了房间、门和走廊,这些都被重新诠释,以满足对话和身份的需要。在这个房间的计划中,计划的布局是僵化的,但正是它们的执行改变了它们的挪用和模式。
These structures hold up the curtains, house the lights and host art pieces through a hanging system. The repetition of these elements generated a series of consecutive rooms: an office, a gallery shop, a meeting room, and a living room. In order to define and enclose them, we worked with domestic curtains, that would at the same time enable continuous visibility between the rooms. With these curtains, we created rooms, doors, and hallways that were reinterpreted to answer to a need for dialogue and identity. The layout of the plan is rigid within this program of rooms, but it is the execution of them that changes their appropriation and modalities.

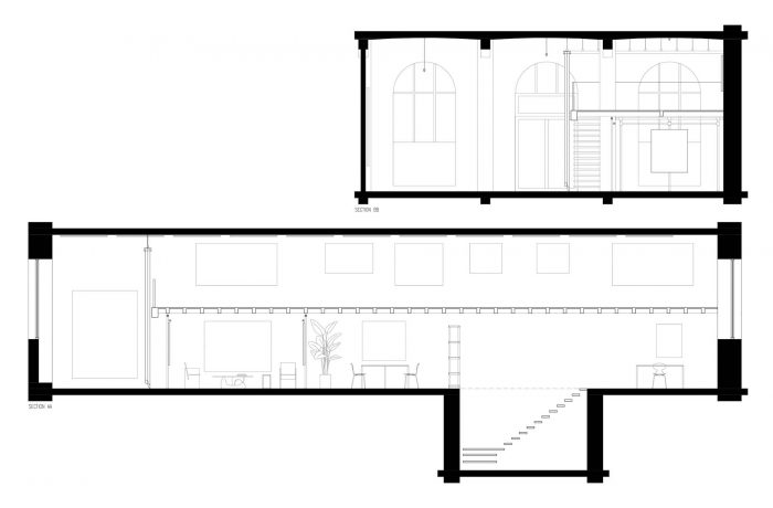
为了解决空间的工业规模问题,我们引入了一个双高的透明厚重的幕布的使用,这种幕布通常在工厂里会被发现,用来分隔不同的活动,在这种情况下,它不仅是一个分隔器,也是空间之间的整合器。透明的幕布作为夹层的玻璃幕墙,使两种气候保持分离,同时保持它们之间的对话。对我们来说,重要的是了解纺织品作为空间制造者可以引入的一系列可能性。
To address the industrial scale of the space, we introduced the use of a double-height transparent heavy curtain, that would commonly be found in a factory to separate different activities, in this case, it is not only a separator but also an integrator between the spaces. The transparent curtain acts as a glass facade to the mezzanine, keeping the two climates separate while maintaining a dialogue between them. It is important for us to understand the range of possibilities that textile could introduce as a spacemaker.


设计鼓励窗帘四处移动,创造不同的运动模式和场景设置。窗帘可以创造额外的空间,形成灵活的墙壁,改变声学和整个氛围。因此,通过大量的材料、规模和空间,引入了一种异样的感觉,而且不担心空间的转换,因为我们的目的是让每个展览都能根据自己的需要调整和转换空间。
The design encourages the curtains to be moved around, creating different movement patterns and scenographic setups. Curtains can create extra spaces, form flexible walls, change the acoustics and the entire atmosphere. Therefore, an otherness is introduced, by the generous amount of material, scale, and space, and there is no fear of transforming the space since the intention is that every exhibition could adapt and transform the space to its needs.









建筑师:Midnight Green
面积: 320 m²
年份:2020年
摄影:Eline Willaert
制造商:Kvadrat, Meta, Wuyts International
城市: 布鲁塞尔
国家:比利时
Architects: Midnight Green
Area: 320 m²
Year: 2020
Photographs: Eline Willaert
Manufacturers: Kvadrat, Meta, Wuyts International
City: BRUSSELS
Country: BELGIUM