Octo Restaurante是一个在瓜达拉哈拉最传统的地区之一Colonia Lafayette出现的空间。这是一座60年代初的房子,建筑师路易斯-费尔南多-埃尔南德斯(Luis Fernando Hernández)和创意人路易斯-曼努埃尔-埃尔南德斯(Luis Manuel Hernández)对其进行了彻底的改造,以适应餐厅的需求,其中尊重产品、其可追溯性和技术是主要的设计轴。砖、黄铜、Tzalam木、花岗岩和吹制玻璃是建造该空间的外墙、两个楼梯、阳台、露台和屋顶以及开放式厨房和服务区的几种材料。2021年11月开业的Octo三层楼的每一个细节都与之前的姐妹餐厅Bruna形成对比,后者位于它的旁边,是一个充满植被的地方,有几个雕塑般的花园。
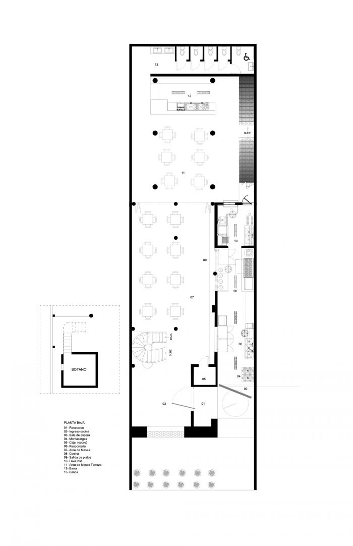
Octo Restaurante is a space that came to life in one of the most traditional areas of Guadalajara, Colonia Lafayette. It is a house from the early 1960s, which the architect Luis Fernando Hernández and the creative Luis Manuel Hernández reformed completely to adapt it to the needs demanded by a restaurant where respect for the product, its traceability and technique were the main design axes. Brick, brass, tzalam wood, granite, and blown glass are several of the materials that built the facade of the space, its two staircases, balconies, terraces, and roof, as well as its open kitchen and service areas. Every detail that characterizes the three levels of Octo, opened in November 2021, speaks of a contrast to the sister restaurant called Bruna that preceded it and that is located next to it, a place full of vegetation with several sculptural gardens.



在这个新的建筑中,墙面包层是一个对比鲜明的印章,指的是无机物和它的美,使用的砖块形成了六边形,并赋予一朵赤土花以生命,其中第七部分是中心,上面刻着一个立方体。这朵花的八个部分是Octo的具体化,Octo在拉丁语中是八的意思。这朵花在整个项目的铁制品、斜面玻璃窗和不朽的花岗岩条中重复出现。这是一个主导外部、外墙和院子的设计。为此使用了15万块手工砖。开放式厨房框住了第一个空间,这个空间一直延伸到一个庭院,庭院里有一个长长的酒吧,被一个可伸缩的屋顶所覆盖。由于墙壁的高度和光线的自然下降,实现了在户外而不在室外的感觉。一个夹层提供了整个建筑的全景,是二楼的一部分,通过两个楼梯到达,另一个是一个无限的楼梯,通向屋顶,在那里食客与艺术家Sofía Crimen的雕塑共存,还有几个花盆,贡献了一个有机的世界,特别是由紫色仙人掌和红色安息香组成。
In this new construction, the wall cladding is a contrasting seal, referring to the inorganic and its beauty, with the use of bricks that form hexagons and give life to a terracotta flower, where the seventh part is the center that has a cube engraved on it. The eight parts of the flower is a materialization of Octo, which means eight in Latin. This flower is repeated throughout the project in its ironwork, bevelled glass windows and monumental granite bars. It is a design that dominates the exteriors, facades and courtyards. 150,000 handcrafted bricks were used for this. The open kitchen frames the first space that continues to a courtyard with a long bar that is covered by a retractable roof. The sensation of being outdoors without being outdoors is achieved thanks to the great height of the walls and the natural fall of light. A mezzanine that offers a panoramic view of the entire building is part of a second floor that is reached by two staircases, the other one being an infinite one that leads to the rooftop where diners coexist with sculptures by the artist Sofía Crimen as well as several planters that contribute that organic world, especially composed of purple cacti and red anthuriums.


所有的墙壁都是艺术展览的场所,因为它也是一个拥有莫妮卡-莱瓦(Mónica Leyva)等人才的画廊,在拯救土坯上的书法的练习中,她展出了几个带有Octo字样的标志。在一个可容纳六人的私人地下空间的体验桌显示了对设计的特别奉献,通过一个窗户可以看到中间的地板,这证明了瓜达拉哈拉由粘土和浮石层组成的地形特征。
All the walls are the setting for art exhibitions, as it is also a gallery with talents such as Mónica Leyva, who, in an exercise to rescue calligraphy on adobe, exhibits several signs with the word Octo. An Experience Table in a private underground space for six people shows a special dedication to the design, with a window through which the middle floor is visible, which testifies to the topographical characteristics in Guadalajara composed of layers of clay and pumice stone.

















Architects: Herre Arquitectos
Area : 439 m²
Year : 2021
Photograph:Gilberto Hernández
Lead Architects : Luis Fernando Hernández, Luis Manuel Hernández
City : Guadalajara
Country : Mexico