off.o是一家位于韩国釜山的咖啡馆。整体建筑面积为588.17平方米,分布在两层。入口位于第一层,是一个由3个独立建筑组成的综合体。位于中心建筑的入口处,以咖啡馆和面包店接待处迎接顾客,而两个附属建筑提供不同类型的座位空间。随着下层也给予顾客多样化的空间体验,该项目追求在整个空间内为顾客提供一个轻松而耐人寻味的空间体验。
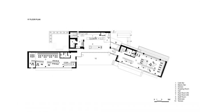
off.o is a cafe located in Busan, South Korea. The overall floor area of 588.17 square meters spreads on two-floor levels. The entrance is located on the first level, which is a complex of 3 separate buildings. Located in the center building, the entrance greets customers with a cafe and bakery reception, while two annex buildings offer different types of seating spaces. Along with the lower level which also grants customers a diverse spatial experience, the project pursues to provide customers with a relaxed yet intriguing spatial experience throughout the space.




由于该项目位于釜山机张的海岸边,所有三座建筑都面向海岸线。这丰富了空间体验,让人在浏览空间时看到无尽的海洋画框。与城市环境不同,项目的郊区方面,特别是被自然环境所包围,导致设计团队创造了最小和简单的空间。在空间保持平静和安宁的同时,自然环境更接近客户。
As the project is located on the shore of Gijang, Busan, all three buildings are oriented towards the shoreline. This enriches the spatial experience with an endless picture frame of the ocean while navigating the space. Unlike urban surroundings, the suburban aspect of the project, especially being surrounded by a natural environment, leads the design team to create minimal and simple space. While the space remains calm and serene, the natural surroundings come closer to the customers.

对现有空间的简单和线性形式,设计团队在天花板设计中加入了曲线元素,以激起舒适的气氛。与其说是复杂和动态的,不如说是对几何元素的重新诠释,如点、线、面,激发了空间设计的灵感,创造了一个轻松和简约的氛围。
To the simple and linear forms of the existing space, the design team incorporates curved elements in the ceiling design to provoke a comfortable atmosphere. Rather than being complex and dynamic, the reinterpretation of geometric elements, such as point, line, and plane, inspired the spatial design, creating a relaxing and minimal ambiance.


空间结构和形式是以简单的词汇来处理的。在保持现有空间的简单几何形状的同时,设计团队引入了对比强烈的各种家具类型。同时,通过选择性的材料调色板,控制了各种类型可能产生的喧闹声。这就避免了该项目出现装饰性或浮夸的情况。空间中环保木材和奶油色调的整体使用,为顾客在整个空间中产生了舒适和放松的空间体验。
The spatial structure and form are approached in a simple vocabulary. While the simple geometry of the existing space is maintained, the design team introduces a contrasting variety of furniture types. At the same time, a potential cacophony from the variety is controlled by the selective material palette. This prevents the project from appearing decorative or flamboyant. The overall use of eco-friendly wood and cream tone colors in the space generates a comfortable and relaxing spatial experience for the customers throughout the space.








Architects: mttb
Area : 588 m²
Year : 2022
Photographs :Yongjoon Choi
Construction : mttb, Design Bono
Design Team : Dohan Kim, Chaeyoon Cho
Branding : mttb
City : Gijang-gun
Country : South Korea