带有夏季记忆的城市房屋。地中海 "风格能否有新的解读?一个城市的房子能不能提供一个夏天的氛围而不陷入审美的话题?
Urban house with summer memories. Can the “Mediterranean” style have a new reading? Can an urban house offer a summer atmosphere without falling into aesthetic topics?




我们满足了客户的愿望,希望有一个清新、愉快、舒适的房子,有一个非常现代的房间组织、材料和几何形状,但来自我们的起源。
We attended to the wishes of our clients to have a fresh, pleasant, and comfortable house with a very contemporary organization of rooms, materials, and geometries but from our origins.




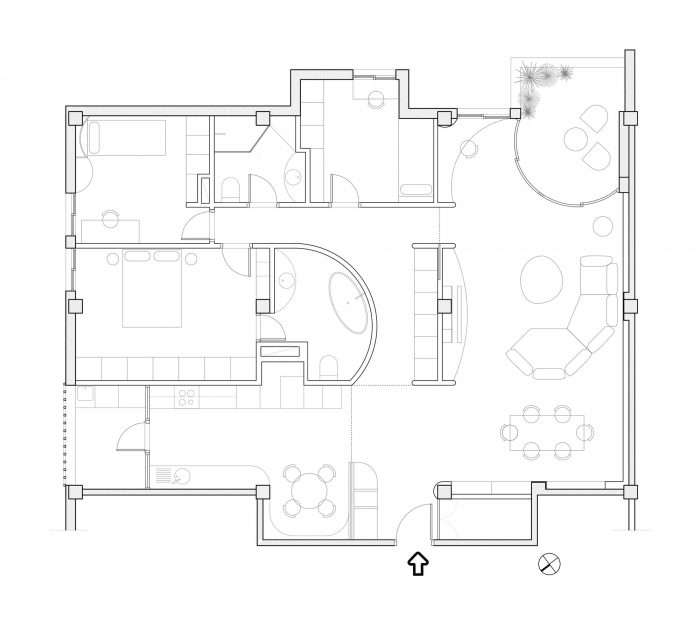
有两个入口,但我们决定取消其中一个,所以现在的入口在房子的中间。像一种螺旋(或贝壳),房子是围绕着一个弯曲的中心组织的,让你滑入房间。这条路线是通过一个海蓝色调的压缩空间进行的,当你 "走出去 "到相邻的房间时,会造成一种扩张的效果。
There were two entrances but we decided to cancel one of them, so the access now is in the middle of the house. Like a kind of spiral (or seashell), the house is organized around a curved center that slides you into the rooms. This route is carried out through a compressed space in an aquamarine green tone that causes an expanding effect when you “go out” to the adjoining rooms.



在设计过程中,"海蓝色 "的绿色成为房子的癖好颜色,客户非常喜欢它,我们把它带到所有的空间,泼洒在家具的某些点上,以实现一个连接和对话的室内设计。
During the design process, “aquamarine” green became the fetish color of the house, the clients liked it so much that we took it to all the spaces, splashing certain points of the furniture to achieve a connected and dialogic interior design.


另一个关键部分是用一个弯曲的滑动阳台来扩展露台,这是一个非常特别的东西,创造了一个你真正想去的户外角落。所选的植物具有热带风情,彩虹色的瓷砖天花板让人想起大海的倒影。
Another key piece was to extend the terrace with a curved sliding balcony, something very special that creates an outdoor corner where you really want to be. The selected plants have a tropical look and the iridescent tile ceiling brings to mind the reflections of the sea.


最后,对餐厅墙上的艺术作品进行了特别设计。我们知道,在那面墙上应该出现一些闪光点、反射点或吸引眼球的东西,以平衡大的客厅-餐厅空间。另一个特殊的消失点。为此,我们与Garra工作室合作,该工作室设计和制造了一个 "特定地点 "的作品--OH! 灯。这件作品玩弄了观众的感知,从一只蝴蝶、一只海洋动物或一颗敞开的心,反射和纹理在整个房间创造了一个令人兴奋的氛围。
Finally, a special design was made for the art piece on the dining room wall. We knew that some sparkle, reflection, or eye-catcher should appear on that wall to balance the large living-dining room space. Another special vanishing point. For this, we collaborate with Garra Studio which designs and manufactures a “site-specific” piece, the OH! Lamp. This piece plays with the perception of the viewer, from a butterfly, a marine animal, or an open heart, the reflections and textures create an exciting atmosphere throughout the room.













Architects: Laura Ortín Arquitectura
Area : 1507 ft²
Year : 2022
Photographs :David Frutos
Manufacturers : AutoDesk, JUNG, Adobe Systems Incorporated, Arkoslight, Artemide, Cement Design, Garra studio, ICONICO, Inma Peroli, Mutina, Ondarreta, Porcelanosa Grupo, Robert McNeel & Associates, Sancal
City : Murcia
Country : Spain