"房子是关闭修复的[......],是围绕着一个开口关闭的" S. Petrosino
这座房子将建在一个300平方米的地块上,位于一条小巷的底部。设计一个 "经典 "形状的别墅,意味着将建筑放在地块的中间,在附近房屋的背面或侧面看风景,花园则是房屋和边界墙之间的空隙。在塞内加尔的文化中,天井,即 "介于 "街道的暴露和房间的私密之间的空间,是当地生活和文化的一个重要元素。 天井是一个安全的聚会场所,房子的所有成员都可以在这里交谈、放松和享受社区。翻转房子的体积,可以把集体空间,天井,放回生活的 "中心 "位置。
"The house is what closes to repair [...] and is closing around an opening" S. Petrosino
The house will be built on a 300 square meter plot at the bottom of a cul-de-sac. Designing a villa in its "classic" shape meant having the building in the middle of the plot and the view on the backs or sides of nearby houses, with a garden that is the result of the gap between the house and the boundary wall. In the Senegalese culture the patio, the space "between" the street’s exposure and the room’s intimacy is an essential element of local life and culture. The patio is a safe meeting place where all members of the house can talk, relax and enjoy the community. Flipping the house’s volume allows to put back the collective space, the patio, into a “central” position for living.




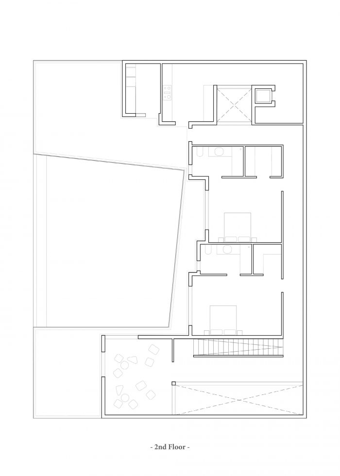
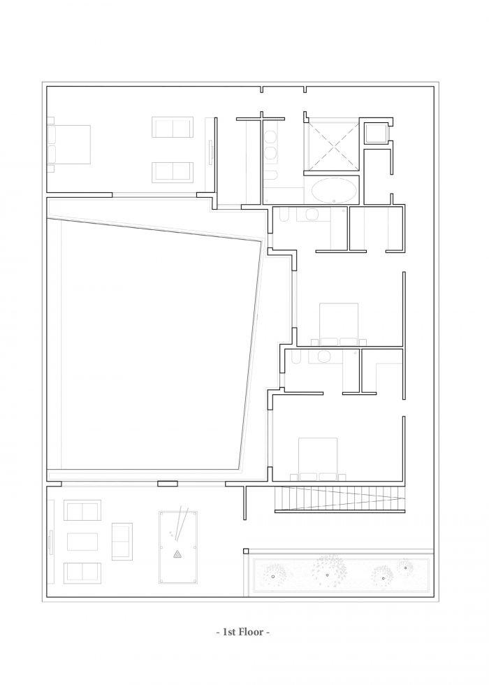
这个项目,在这样做的时候,把他的背交给了其他房子的背,在街道和房间之间重新创造了一个受保护的环境和过滤器:一个围绕着封闭的开放。房子分布在3层:体积的前后取决于卧室的空间。一个阳台将所有的空间连接在一起,使上层的视野可以看到天井。在一楼是客厅和厨房,可以俯瞰整个天井。在一楼和二楼,卧室和其他家庭公共空间共享空间。
The project, in doing so, gives his back to the others houses’ back and recreates a protected environment and filter between the street and the room: an opening around a closure. The house is spread over 3 levels: the back and forth of the volumes is depending on the bedroom spaces. A balcony holds all the spaces together allowing the view on the patio for the upper levels. On the ground floor the living room and kitchen overlooking, throughout its length, the Patio. On the first and second floors bedrooms with other common spaces for the family share the space.




该地块只有一个俯瞰公共道路的5米。在这个宽度上,别墅的入口被放置在顶部,故意用抽象的几何体来标记盲墙。这意味着从外面是不可能理解这个项目的。只有Teranga,塞内加尔家庭的典型接待方式,可以揭示空间的核心。墙壁和窗框使用的白色与完全透明的玻璃栏杆相结合,象征着我们可以在生活中找到最深的亲密感。外立面的顶部覆盖着瓷砖,将房子与外面、街道、Oikos外的生活重新联系起来。
The plot has only one overlooking on the the public road of 5 meters. In this width was placed the entrance of the villa marked at the top for a deliberately blind wall with abstract geometric volumes. The fact means that from outside is not possible to understand the project. Only the Teranga, the hospitality typical of Senegalese families, can reveal the core of the spaces. The white color used for walls and windows frames combined with the completely transparent glass railings symbolizes the deepest intimacy we can find in living. The top of the exterior facade is covered with ceramic tiles that brings back and reconnects the house with the outside, the street, the life outside the oikos.
















Architects: MOST Monti Studio
Area : 680 m²
Year : 2020
Photographs :Andrea Ceriani
Manufacturers : Grespania, XAM DESIGN
Architect In Charge : Mirco Monti
Design Team : MOST Monti Studio
City : Dakar
Country : Senegal