Oka Haus销售画廊位于曼谷市中心Rama 4路的黄金位置,与Sansiri PCL的项目Oka Haus公寓一样。一个像斗篷一样的内部空间,用近3000个铰链木箱装饰,以塑造内部体积,给客人留下兴奋的印象。它们安装在高于地面5米的金属网格系统上。
Oka Haus sales gallery situates in the prime location on Rama 4 road in Bangkok downtown as same as the Oka Haus condominium, a project by Sansiri PCL. A cape like interior space, decorated with almost 3,000 pieces of hinging wooden box to shape the internal volume and to impress the guests with excitement. They installed on metal grid system at 5 meters above floor level.





木质元素随处可见,给人以温暖的感觉,并与项目的概念 "撤退和反弹 "相一致。 甚至在投影室的天花板上也用巧克力色的实心柚木装饰板进行装饰。这是一种不寻常的地板产品的使用方式。
Wooden elements can be found everywhere to gives a warm feeling and in-line with the project concept of Retreat & Rebound. Even on the projection room ceiling is decorated with solid teak decking panel in chocolate bar pattern. An unusual way of using decking product.



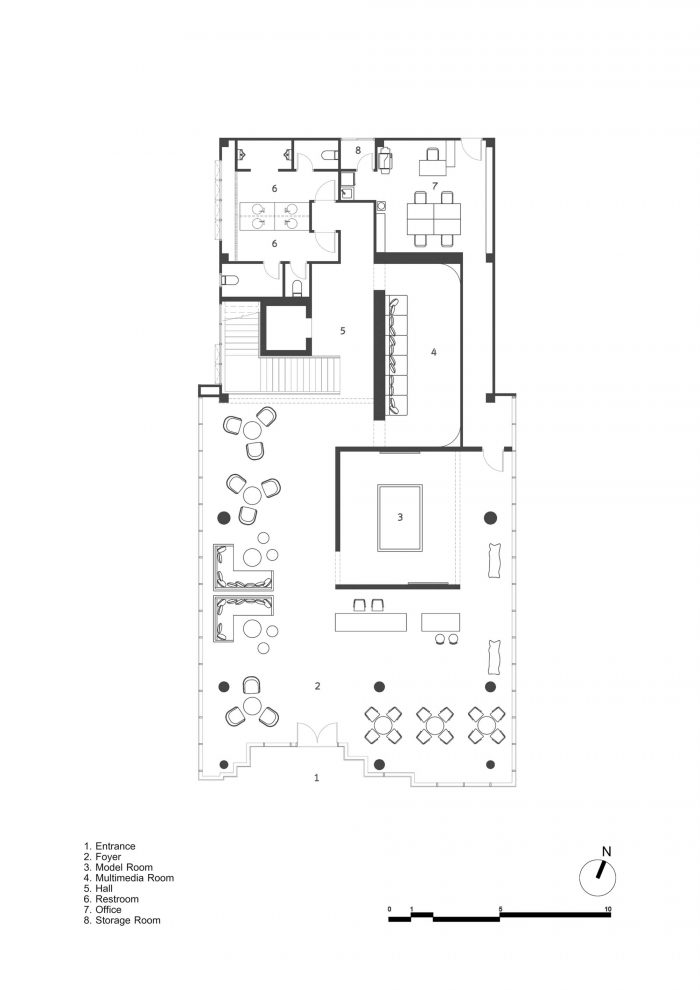
设计师的意图是在客人参观售楼处时给他们带来旅行的体验,带领他们穿过空间,从大堂休息室到投影室,上到二楼参观3个样板间,然后下来看公寓模型,完成这个旅程。大堂休息室内的样板间采用封闭式隔断,客人只有在参观结束后才能看到样板间,但它可以看到外面的花园。一面墙配备了6米长的LED屏幕,向客人提供项目信息。
It is designer’s intension to give journey experience to the guests when visit the sales gallery and lead them through the space from the lobby lounge to the projection room, go up to the second floor to visit 3 show flats and the come down to see the condominium model to complete the journey. The model room inside the lobby lounge with enclose partitions that allow the guest to see the model only when they finish the tour but it gives and open view to the outside garden. One wall equipped with LED screen of 6 meters long to provide project information to the guests.








Architects: Anonym
Area: 580 m²
Year: 2017
Photographs: W workspace
Manufacturers: Armstrong Ceilings, Lamitak, BSG, BSG Glass, Curtain fabric, Plato
City:BANGKOK
Country:Thailand