站在村子的入口处,老磨坊不仅是一个重要的地标,也是一个文化、民族、世代和思想的交汇点。2022年,它被改造成一个文化中心,唤醒了该村和该地区的社会和文化生活。磨坊经历了从一个废弃的废墟到一个充满活力的公共空间的戏剧性转变,重新回到了它所属的社区。
Standing at the very entrance of the village, the old Mill is not only an important landmark but also a meeting point of cultures, nationalities, generations, and ideas. In 2022, it was converted into a cultural center awakening the social and cultural life in the village and the region. The Mill underwent a dramatic transition from an abandoned ruin to a vibrant public space, regained back to the community it belongs.




老磨坊最初建在附近的村庄。后来,它被一路搬到卡尔帕切沃,并重建到现在的地方。在它关闭后,它被遗弃并遭受严重的破坏。2019年,德维塔基高原协会决定让磨坊重新获得生命。
The old Mill was initially built in the nearby village. Later on, it was moved all the way to Karpachevo and rebuilt to the place it stands now. After it closed down it was abandoned and suffered serious damages. In 2019 the Devetaki Plateau Association decided to bring life back to the Mill.


该项目的主要目的是通过使用当地的天然材料和回收可用的材料来改造和重新利用这座废弃的建筑。(木板、屋顶瓦片、土坯砖和石膏、烤砖、石头等)基本概念是保持原有结构的原始、乡村美学。同时,以一种整体合理的方式整合新的功能,以满足新的需求。
The main aim of the project was the adaptation and repurposing of the abandoned building by using local natural materials and recycling the available ones. (wooden planks, roof tiles, adobe bricks and plaster, baked bricks, stone, etc.) The essential concept was keeping the raw, rural aesthetics of the original fabric. At the same time integrate the new function in a holistic sensible manner to meet the new needs.

新干预的主要设计理念是采用对比和平衡的原则。遵循这一理念,白色的金属元素被引入到室内,与质朴粗糙的旧木材结构形成对比。新添加的元素不仅增强了旧结构的自然外观,而且还将光线引入到室内空间。一个温柔的金属 "花边 "被用来框住栏杆和禁欲主义的家具。
The main design concept for the new intervention was adopting the principle of contrast and balance. Following this idea metal elements painted in white were introduced to the interior as a contradiction to the rustic rough old timber structure. The newly added elements not only enhance the natural look of the old structure but also introduce light to the interior space. A tender metal “lace” was used to frame the banisters and the ascetic furniture.


它在提供安全和新功能的同时,仍然允许游客看到它背后的真实元素。新与旧、暗与明、"干净 "与 "肮脏 "之间的游戏,创造了尊重该地真实精神的和谐与平衡的特殊氛围。整体的结果是--一个混合的空间,设法保持其独特和真实的特征,但也满足所有新增加的功能的现代需求。
It offers safety and new functionality at the same time, still allowing the visitor to see the authentic elements behind it. The play between old and new, dark and light, ‘clean’ and ‘dirty’ create the special atmosphere of harmony and balance with respect to the authentic spirit of the place. The overall result – a hybrid space that managed to keep its unique and genuine character, but also satisfy all the contemporary needs of the newly added function.


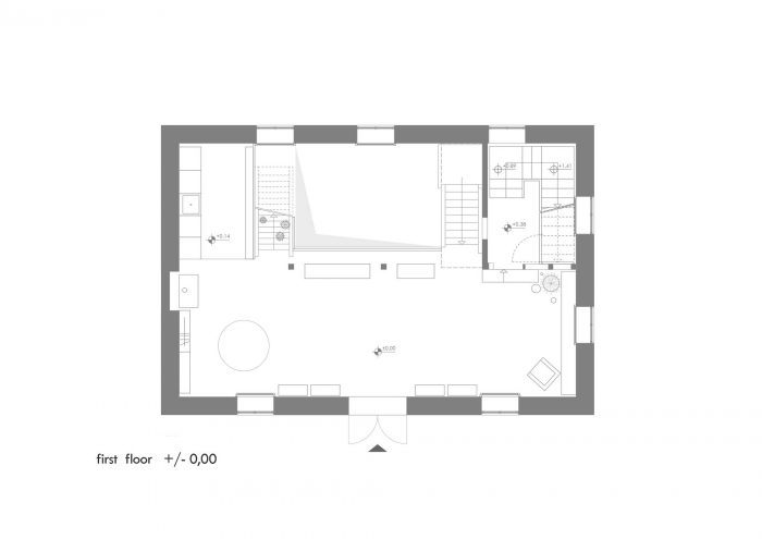
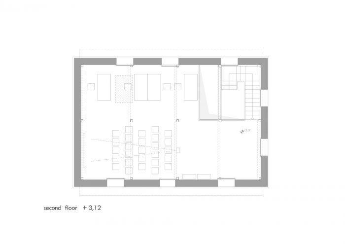
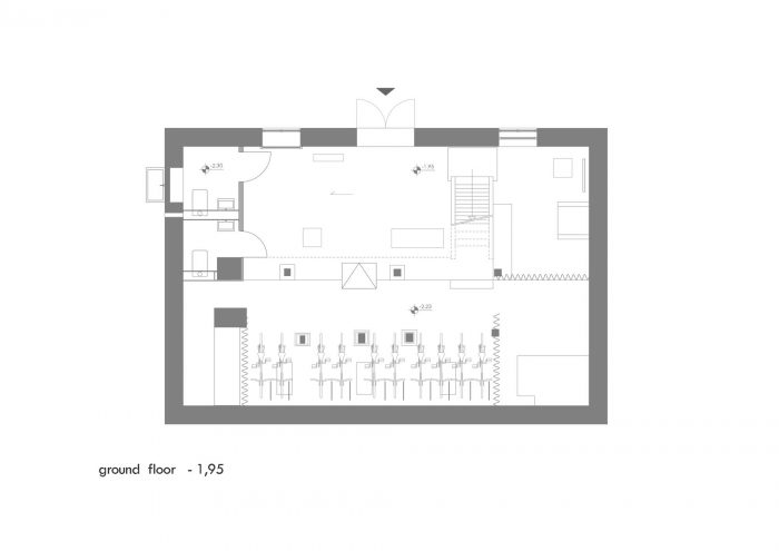
3层楼的木质结构保持了原有的状态--为了给游客提供安全,需要进行结构加固。穿过楼层的开口允许多层的垂直视觉连接和交流。1楼可以从南面的主入口进入,由3个区域组成--信息点、小厨房和公共区域--所有世代的聚会场所。2楼作为一个多功能空间,为不同类型的文化活动提供舞台--培训、演讲、研讨会、讲座、公共讨论和联合办公空间。一楼有供游客使用的厕所、存储空间和租借自行车的设施。为了确保通往二楼的通道,增加了新的楼梯和栏杆。木制窗户按照原来的布局进行了改造,并在里面加装了铝制双层玻璃窗以确保节能。
The 3-story timber structure was kept in its original state – undergoing structural reinforcement was needed to provide safety for the visitors. Openings through the floors allow multi-story vertical visual connection and communication. The 1st floor, accessible from the main entrance to the south, consists of 3 zones – information point, kitchenette and communal area – a meeting place for all generations. The 2nd floor acts as a multifunctional space that provides a stage for different kinds of cultural events – training, presentations, workshops, lectures, public discussions, and co-working space. Lavatories for visitors, storage space, and rent-a-bike facilities are positioned on the ground floor. To secure access to the 2nd floor a new staircase and railings were added. The wooden windows were remade in their original layout and doubled on the inside with aluminum double-glazed windows to ensure energy saving.

曾经是一个被遗弃的废墟,现在回到了当地社区,为一个古老的地标增添了新的意义。
What was once an abandoned ruin is now returned to the local community adding new meaning to an old landmark.













Architects: studio nada
Area : 285 m²
Year : 2022
Photographs :Todor Todorov
Architect And Designer : Antonina Tritakova, Georgi Subev
Client : The Devetaki Plateau Association
City : Karpachevo
Country : Bulgaria