这个项目是一个配药店的室内设计,面对的是一条街道,上面有一些竞争的药店。因此,它也被要求创造一个与众不同的外墙。
This project is an interior design of a dispensing pharmacy facing a street on which some competing pharmacies are located. So it was also requested to create a distinguished facade.



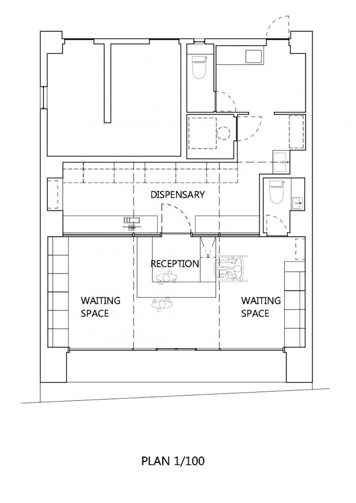
主要有两个元素,玻璃隔断和三层拱形天花板,构成了这个空间。
药店中间的玻璃隔断将其分为前后两部分,即顾客区和配药区。而三层拱顶的形状轻轻地表明了接待和等待病人的空间。
Mainly two elements, glass partition and three-vaulted ceiling, form the space.
The glass partition in the middle of the pharmacy separates it into two parts, front and back, customers’ zone and dispensing zone. And the three-vaulted shape gently indicates reception and waiting space for patients.

在拱形天花板的覆盖下,病人可以感受到舒适和放松的气氛。
三层拱顶的形状可以从外面辨认出来,这样的设计使药店与街上的其他药店有所区别。
Covered with the vaulted ceiling, patients can feel cosy and relaxed atmosphere.
The three-vaulted shape can be recognized from outside and the design differentiate the pharmacy from others on the street.





Architects: MAMM DESIGN
Year: 2015
Photographs: Takumi Ota
City: Tokyo
Country:Japan