在喀拉拉邦郁郁葱葱的背景下,On the Brooks以其线性的形式和质朴的砖块外墙而引人注目。这座位于高知县的单层三居室是传统与现代的结合,在构思时强调了对当地材料的循环利用。设计意图是在家中创造有意义的体验。
概念: 该设计基于一条流动的小溪的概念,水渠环绕并流经建筑,水的节奏运动在形式上得到了表达。在季风期间流经这些渠道的水,加上空间内创造的远景,有助于在家中创造一种多感官的体验。
Set against the lush backdrop of Kerala’s greenery, On the Brooks stands out with its linear form and rustic brick facade. The single-story house for three located in Kochi is an amalgamation of the traditional and contemporary and has been conceived with an emphasis on upcycling vernacular materials. The design intent deals with the creation of meaningful experiences within the home.
Concept: The design is based on the concept of a flowing brook, with water channels flowing around and through the building, and the rhythmic movement of the water being expressed in the form. The water flowing through these channels during the monsoon coupled with the vistas created within the space aids in the creation of a multi-sensory experience within the home.




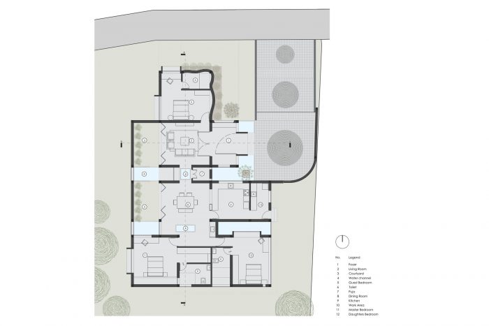
设计理念: 该设计涉及对传统喀拉拉邦建筑的重新诠释。这些传统元素的现代化转化为更多的现代风格,与根据Vastu原则保留这些空间的价值并驾齐驱。其中一个例子是设置在一个突出的混凝土围墙中的入口门,它让人联想到传统的 "padippura "门,其规模和意义都很强大。院子和阳台是喀拉拉邦乡土建筑的一个突出部分,对创造和谐的住宅生活空间至关重要。该计划涉及到创造细长的视觉走廊,由通往院子的水渠突出。院子是这条视觉轴线的终点,是一个半开放的花园,由带有节奏感的空隙的花纹砖墙围成,与渠道中的水流相得益彰。Thinnai "是该地区老式住宅中的一个过渡和社交空间,已被改造成与该空间相邻的一个露台。
Design Philosophy: The design involves a reinterpretation of traditional Kerala architecture. Modernization of these traditional elements to translate to a more contemporary style goes hand in hand with retaining the value of these spaces as per vastu principles. One such example is the entrance doorway set in a protruding concrete enclosure that is reminiscent of the traditional “padippura” doorway in its imposing scale and meaning. Courtyards and verandahs, a prominent part of Kerala’s vernacular architecture are vital to creating harmonious living spaces in the house. The plan involves the creation of elongated visual corridors, highlighted by the water channels leading toward the courtyard. The courtyard, the terminal of this visual axis is a semi-open garden, enclosed by patterned brick walls with rhythmic voids complimenting the flow of water through the channels. The “thinnai”, a transitional and social space in the region’s older homes, has been transformed into a deck adjoining the space.


材料性: 该建筑使用了当地的砖,并以混凝土、钢、藤条和玻璃作为点缀。汽车门廊的顶棚由当地手工切割的甘蔗芦苇制成,以几何图形排列在一个钢架内,是向回收利用这种经常被忽视的材料迈出的一步。砖,另一种本地材料被用于蜿蜒的焦点墙,由半圆形的拱门组合而成,仿佛小溪中的水流动。曲线与形式的线性特征并列。整个结构由一个混凝土阳伞屋顶覆盖,似乎漂浮在墙上,这种错觉是由它下面的狭长窗户创造的。
Materiality: The building utilizes locally sourced brick, accented by concrete, steel, cane, and glass. The car porch, with its canopy made of locally sourced hand-cut cane reeds arranged in a geometric pattern within a steel frame, is a step towards upcycling a material that is often overlooked. Brick, another locally sourced material is used in the sinuous focus wall, made of combining semi-circular arches, that emulate the flow of water in a brook. The curves juxtapose the linear character of the form. The entire structure is capped by a concrete parasol roof that seems to float over the wall, an illusion created by the provision of slit windows right beneath it.


可持续性: 太阳伞屋顶突出的角形轮廓有助于其作为雨水收集区的功能。雨水被引向环绕房屋并进入室内的渠道,最后通向院子。然后,这些水被排放到房屋外的果园中用于灌溉。
Sustainability: The protruding angular profile of the parasol roof aids its functionality as a rainwater catchment zone. The rainwater is then directed to the channels running around and into the interiors of the house, finally leading to the courtyard. The water is then discharged into the orchard beyond the house for irrigation purposes.



虽然创造一个精心制作的住宅是首要的,但该项目努力创造一个和谐的空间集合,与环境和气候很好地结合在一起。这座以谦逊的态度精心打造的房子旨在与普通人沟通,强调创造足够的、可负担的空间。因此,On the Brooks以其精致的细节重申了建筑中简约的价值。
Though the creation of a well-crafted home is primary, the project strives to create a harmonious collection of spaces that are well-integrated with the context and climate. The house, crafted with humbleness aims to communicate with the common man, with its emphasis on creating sufficient, affordable spaces. Thus, On the Brooks with its refined details reaffirms the value of simplicity in architecture.









Architects: Monsoon Collective
Area : 2900 ft²
Year : 2022
Photographs :K. Midhul
Manufacturers : Hybec, Kohler, Schneider
Lead Architects : Manoj Madhu, Rafi Shakeer, Dona Jenn George, Anupama B, Afrosa Kamal
Structural Design : Triangle Design Studio
Construction : Notion Roots
Furniture : Malhar Spaces
Interior Design : Anjali. A.S
Metal Fabrication : Elements Fab
City : Angamaly
Country : India